

作品包括:
Word版说明书1份,共37页,约14000字
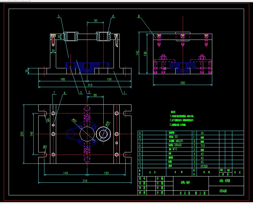
CAD版本图纸,共5张
工序卡一张
工艺过程卡一张
目 录
第一章 绪论 5
1.1 引言 5
1.2 机械加工工艺过程基本知识 5
1.3粗基准选择原则 6
第二章 零件的分析 7
2.1产品零件的功用 7
2.2机图纸及技术条件分析 8
2.3基准的选择与分析 9
第三章 机械加工工艺方案、路线 10
3.1产品零件主要加工方案 11
3.2加工余量的确定 11
3.3工艺路线的制定 12
3.4机床的选择 13
3.5工艺装备的选择 14
3.6切削用量的确定 14
第四章 机械加工工艺规程设计 15
4.1 机械加工余量、工序尺寸及毛坯尺寸的确定 15
4.2 确定切削用量及基本工时 16
4.2.1 工序1 16
4.2.2 工序2 16
4.2.3 工序3 16
4.2.4 工序4 19
4.2.5 工序5 22
4.2.6 工序6 23
4.2.7 工序7 26
4.2.8工序8 28
4.2.9工序9 28
4.2.10 工序10 29
4.2.11 工序11 30
4.2.12 工序12 31
4.2.13 工序13 31
4.2.10 工序14 32
4.2.10 工序15 33
4.2.16 工序16 34
4.2.17 工序17 34
第五章 专用夹具的设计 34
4.1夹具方案的确定 35
4.2工件在机床上定位方式的选择 35
4.3本次设计夹具方案说明 36
结 论 36
致 谢 37
参 考 文 献 37
温馨提示:
1、题目前面的备注【字母数字编号】为本站整理分类的编号,与课题内容无关,请选题时忽视;
2、若题目上备注三维,则表示文件里包含三维源文件,由于三维组成零件数量较多,为保证预览截图的简洁性,本站将三维文件夹进行了打包。三维及CAD预览截图,均为本站电脑打开软件进行截图的,保证能够打开,下载原件超高清,下载后解压即可;
3、本站所有资源如无特殊说明,都需要本地电脑安装Office2007。图纸软件为AutoCAD,PROE,UG,SolidWorks,CATIA等;
4、本站所有图文资料仅供用户学习参考,不作为任何商用或其他用途;
5、本站不保证下载资源的准确性、安全性和完整性, 不包修改,不支持退换,同时也不承担用户因使用这些下载资源对自己和他人造成任何形式的伤害或损失;
6、 下载文件中如有侵权或不适当内容,请与我们联系,我们立即纠正。