

作品包括:
Word版设计说明书1份,共22页,约6000字
CAD版本图纸,共4张
工序卡一套
过程卡一套

摘 要
本课程设计主要培养学生综合运用所学的知识来分析处理生产工艺问题的能力,使学生进一步巩固有关理论知识,掌握机械加工工艺规程设计的方法,提高独立工作的能力,为将来从事专业技术工作打好基础。
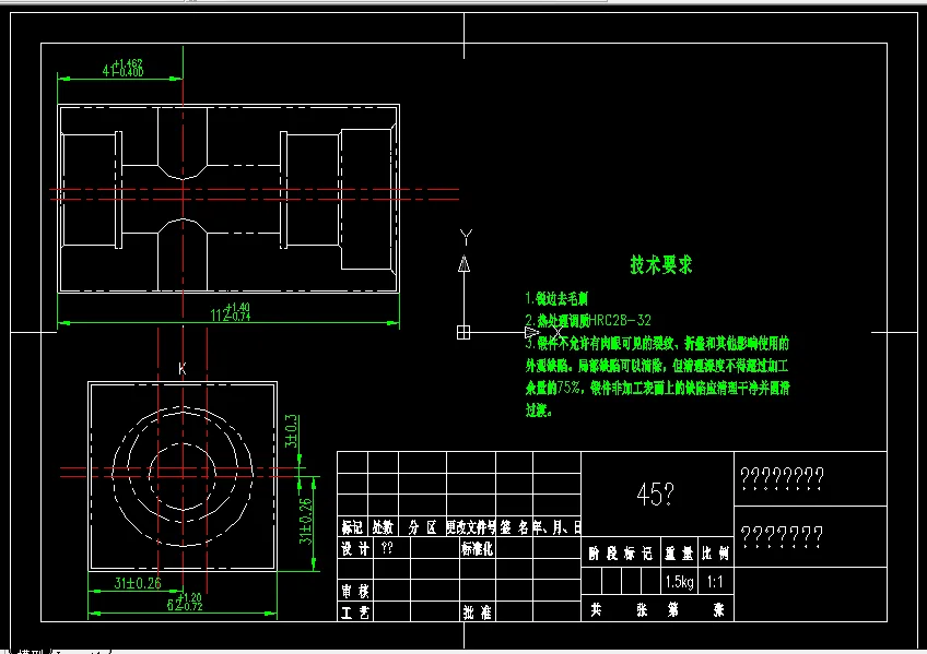
这次设计的是偏心阀体,分别绘制了零件图、毛坯图、夹具体图、装配图各一张,机械加工工艺过程卡片和与所设计夹具对应那道工序的工序卡片各一张。在熟悉被加工零件偏心阀体的基础上。了解偏心阀体的作用,接下来根据零件的性质和零件图上各端面和内部结构的粗糙度确定毛坯的尺寸和机械加工余量。然后我们再根据定位基准先确定精基准,后确定粗基准,最后拟定偏心阀体的工艺路线图,制定该工件的夹紧方案,画出夹具装配图。通过查阅各种书籍完成本次课程设计任务。
目 录
1、零件的分析…………………………………………………………………………1
1.1零件的作用及特点……………………………………………………………....1
1.2零件的形状......…………………………………………………………………..1
2、零件的工艺分析……………………………………………………………………2
3、毛坯设计…………………………………………………………………………….2
3.1毛坯的选择………………………………………………………………………..2
3.2确定机械加工余量、毛坯尺寸和公差…………………………………………2
3.3确定毛坯尺寸……………………………………………………………………...2
3.4确定毛坯尺寸公差………………………………………………………………..3
4、选择加工方法,拟定工艺路线 ………………………………………………...4
4.1粗基面的选择…………………………………………………………………....4
4.2精基面的选择…………………………………………………………………….4
4.3制定机械加工工艺路线……………………………………………………….. 4
5、加工设备及刀具、量具的选择 ………………………………………………...6
5.1选择机床,根据不同的工序选择机床…………………………………………6
5.2选择刀具………………………………………………………………………….7
6、切削用量的选择…………………………………………………………………….7
7、基本时间的确定……………………………………………………………………..8
8、夹具设计……………………………………………………………………………..9
8.1设计思想…………………………………………………………………………10
8.2定位分析…………………………………………………………………………10
8.2.1定位基准的选择…………………………………………………………..11
8.2.2定位误差的分析…………………………………………………………..11
8.3夹具操作说明…………………………………………………………………..11
9、导向原件设计………………………………………………………………………11
10、设计的感想与体会……………………………………………………………….12
11、参考文献设计资料及主要参考书………………………………………………14
温馨提示:
1、题目前面的备注【字母数字编号】为本站整理分类的编号,与课题内容无关,请选题时忽视;
2、若题目上备注三维,则表示文件里包含三维源文件,由于三维组成零件数量较多,为保证预览截图的简洁性,本站将三维文件夹进行了打包。三维及CAD预览截图,均为本站电脑打开软件进行截图的,保证能够打开,下载原件超高清,下载后解压即可;
3、本站所有资源如无特殊说明,都需要本地电脑安装Office2007。图纸软件为AutoCAD,PROE,UG,SolidWorks,CATIA等;
4、本站所有图文资料仅供用户学习参考,不作为任何商用或其他用途;
5、本站不保证下载资源的准确性、安全性和完整性, 不包修改,不支持退换,同时也不承担用户因使用这些下载资源对自己和他人造成任何形式的伤害或损失;
6、 下载文件中如有侵权或不适当内容,请与我们联系,我们立即纠正。