

作品包括:
说明书一份,共27页,约9500字
CAD版本图纸,共4张
三维图一份
摘 要
本次设计内容涉及了机械制造工艺及机床夹具设计、金属切削机床、公差配合与测量等多方面的知识。
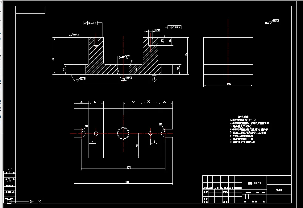
盘套加工工艺及其钻孔的夹具是包括零件加工的工艺设计、工序设计以及专用夹具的设计三部分。在工艺设计中要首先对零件进行分析,了解零件的工艺再设计出毛坯的结构,并选择好零件的加工基准,设计出零件的工艺路线;接着对零件各个工步的工序进行尺寸计算,关键是决定出各个工序的工艺装备及切削用量;然后进行专用夹具的设计,选择设计出夹具的各个组成部件,如定位元件、夹紧元件、引导元件、夹具体与机床的连接部件以及其它部件;计算出夹具定位时产生的定位误差,分析夹具结构的合理性与不足之处,并在以后设计中注意改进。
关键词:工艺,工序,切削用量,夹紧,定位,误差分析
目 录
摘 要 I
ABSTRACT II
第1章 零件结构的工艺性分析 1
1.1 零件的结构特点 1
1.2 零件的主要加工要求 1
1.3 零件的工艺性分析 2
第2章 零件毛坯的选择 3
2.1选择毛坯应考虑的因素 3
2.2 毛坯的种类选择 3
2.3 毛坯的形状和尺寸的确定 3
第3章 机械加工工艺路线的确定 4
3.1 盘类零件基准的选择与判定 4
3.2 零件加工方法的选择 5
3.4 零件的工序划分 5
3.5 确定装夹方法 7
3.6加工设备的确定 7
3.7 刀具的选择 8
3.8加工切削用量及加工工时计算 8
3.8.1以右平面与外圆为基准,装夹工,车右端外圆,保证图示工序尺寸 8
3.8.2以左平面与外圆为基准,装夹工,粗精镗内孔成型,保证图示工序尺寸 9
3.8.3以右平面与外圆为基准,装夹工件,铣63mm台阶面 10
3.8.4以两端中孔为基准,装夹工件,钻攻M8孔,保证图示工序尺 11
3.8.5:以左平面与外圆为基准,装夹工件,钻扩3-φ7孔,保证图示 13
等工序尺寸 13
第4章 专用钻3-φ7孔夹具设计 15
4.1问题的提出 15
4.2 定位方案设计 15
4.2.1盘套类零件的定位方案设计 15
4.2.2定位元件的选择 15
4.2.3定位误差计算 15
4.3夹紧方案设计 16
4.3.1夹紧力计算 16
4.3.2 切削力计算 17
4.4夹具操作使用 18
结束语 20
致 谢 21
参 考 文 献 22
温馨提示:
1、题目前面的备注【字母数字编号】为本站整理分类的编号,与课题内容无关,请选题时忽视;
2、若题目上备注三维,则表示文件里包含三维源文件,由于三维组成零件数量较多,为保证预览截图的简洁性,本站将三维文件夹进行了打包。三维及CAD预览截图,均为本站电脑打开软件进行截图的,保证能够打开,下载原件超高清,下载后解压即可;
3、本站所有资源如无特殊说明,都需要本地电脑安装Office2007。图纸软件为AutoCAD,PROE,UG,SolidWorks,CATIA等;
4、本站所有图文资料仅供用户学习参考,不作为任何商用或其他用途;
5、本站不保证下载资源的准确性、安全性和完整性, 不包修改,不支持退换,同时也不承担用户因使用这些下载资源对自己和他人造成任何形式的伤害或损失;
6、 下载文件中如有侵权或不适当内容,请与我们联系,我们立即纠正。