

作品包括:
word说明书一份,46页,约24000字左右
开题报告一份
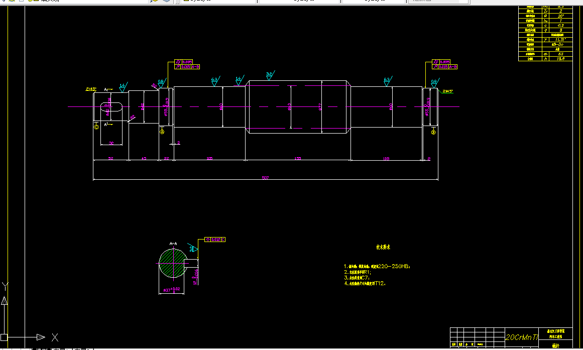
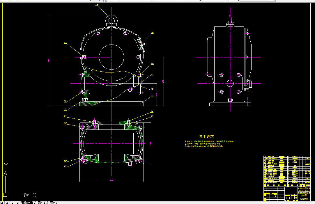
CAD版本图纸,共4张
摘 要
汽车制动性能的检验是机动车安全技术检验的重要内容之一,随着我国汽车保有量快速增长,汽车对环境的影响受到人们的普遍关注。汽车制动性能的好坏直接关系到人们的生命安全。因此有必要研究出快捷、准确地检测汽车制动性能的方法和工具。本论文的内容就是对汽车制动试验台的关键技术进行研究。首先论文对国内外汽车制动试验台的现状和今后发展方向进行了综述。通过对汽车制动过程的分析,提出检测汽车制动性能的方法,比较了各种检测方法的特点,分析了评价汽车性能的指标及国家标准。对汽车在制动试验台上的受力情况进行了分析,提出检测汽车制动性能的原理,分析了影响制动性能检测的因素。对汽车制动试验台总体结构进行了分析,提出选择试验台滚筒尺寸,转速及表面材料的方法,给出选择试验台电机、减速器等主要部件的依据。
关键词:汽车制动试验台;制动性能;检测;滚筒;反力式
目 录
摘要………………………………………………………………………………………Ⅰ
Abstract………………………………………………………………………………Ⅱ
第1章 绪论……………………………………………………………………………1
1.1 课题研究的目的和意义…………………………………………………………1
1.1.1 课题研究的目的…………………………………………………………1
1.1.2 课题研究的意义…………………………………………………………1
1.2 国内外相关领域研究现状及发展方向…………………………………………2
1.2.1 平板式制动试验台………………………………………………………2
1.2.2 反力滚筒式制动试验台…………………………………………………3
1.2.3 发展方向…………………………………………………………………4
1.3 论文主要研究内容及技术途径…………………………………………………4
1.3.1 课题主要研究内容……………………………………………………… 4
1.3.2 技术途径与方法………………………………………………………… 4
第2章 反力式滚筒试验台与平板式试验台对比分析…………………………5
2.1 反力式滚筒制动性能试验台的结构及工作原理………………………………5
2.1.1 结构…………………………………………………………………… 5
2.1.2 工作原理…………………………………………………………………5
2.2 平板式制动性能试验台的结构及工作原理……………………………………6
2.2.1 平板式制动试验台结构…………………………………………………6
2.2.2 工作原理…………………………………………………………………6
2.3 反力式滚筒试验台与平板式试验台优缺点分析………………………………7
2.3.1 反力式滚筒试验台………………………………………………………7
2.3.2 平板式制动试验台………………………………………………………8
2.4 本章小结…………………………………………………………………………8
第3章 汽车制动试验台总体方案…………………………………………………9
3.1 引言……………………………………………………………………………9
3.2 汽车制动试验台总体构成………………………………………………………9
3.3 制动试验台工作原理……………………………………………………………12
3.4 制动试验台力学分析……………………………………………………………14
3.5 影响制动性能检测的因素分析…………………………………………………15
3.6 本章小结…………………………………………………………………………16
第4章 汽车制动试验台结构设计………………………………………………17
4.1 引言………………………………………………………………………………17
4.2 设计依据和要求 …………………………………………………………………17
4.3 滚筒设计…………………………………………………………………………18
4.4 滚筒式制动试验台测试能力分析………………………………………………21
4.5 制动力测量装置主要参数的选择………………………………………………22
4.6 减速箱设计及零件选择…………………………………………………………24
4.6.1 蜗轮蜗杆的设计…………………………………………………………24
4.6.2 轴的设计…………………………………………………………………27
4.7 本章小结…………………………………………………………………………28
结论………………………………………………………………………………………29
参考文献…………………………………………………………………………………30
致谢………………………………………………………………………………………31
附录………………………………………………………………………………………32
温馨提示:
1、题目前面的备注【字母数字编号】为本站整理分类的编号,与课题内容无关,请选题时忽视;
2、若题目上备注三维,则表示文件里包含三维源文件,由于三维组成零件数量较多,为保证预览截图的简洁性,本站将三维文件夹进行了打包。三维及CAD预览截图,均为本站电脑打开软件进行截图的,保证能够打开,下载原件超高清,下载后解压即可;
3、本站所有资源如无特殊说明,都需要本地电脑安装Office2007。图纸软件为AutoCAD,PROE,UG,SolidWorks,CATIA等;
4、本站所有图文资料仅供用户学习参考,不作为任何商用或其他用途;
5、本站不保证下载资源的准确性、安全性和完整性, 不包修改,不支持退换,同时也不承担用户因使用这些下载资源对自己和他人造成任何形式的伤害或损失;
6、 下载文件中如有侵权或不适当内容,请与我们联系,我们立即纠正。