

作品包括:
Word版说明书1份,共66页,约11000字
S7-300 PLC程序一份
Wincc触摸屏画面一份
IO分配
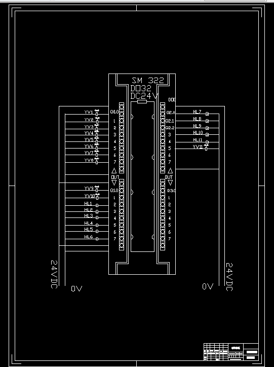
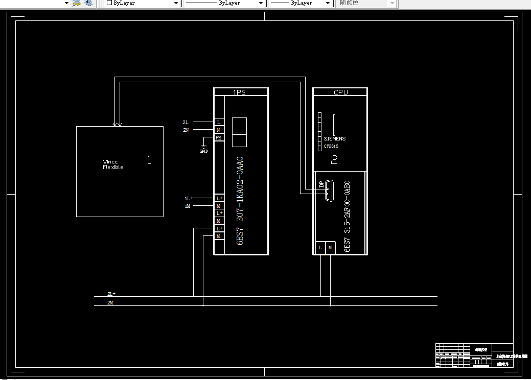
电气CAD图纸,4张
![1742344835655160.png ~NF~DQ)5]()XV1ST[16C{HK.png](/uploadfiles/20250319/1742344835655160.png)
摘 要
本毕业设计基于PLC的滚珠分拣自动分拣控制系统的设计。传统的人工滚珠分拣存在着浪费劳动力、工作繁重、测量误差较大等缺点,故设计了一套基于PLC的滚珠自动分拣控制系统。此自动控制可以满足高精度需求和代替大量的单调繁复的工作。选择西门子S7-300 中型PLC为核心进行控制,通过使用滚珠测量传感器,将滚珠直径信号转成-10V到10V的电压信号,经EM331模拟量输入模块,转成-32768~+32768的数字量整数值,经PLC计算转成-100~100直径值。将滚珠按直径分成8个等级,测量完成后,使用推杆推出,沿斜坡滚下,斜坡下有8个不同的仓位,每个仓位都有独立控制的仓门,根据测量的结果,打开相应的仓门,其他的仓门关闭,滚珠自动滚入正确的仓里,达到了分拣滚珠的目的。使用西门子的S7-300 编程软件编写了梯形图和语句表程序,最后使用西门子触摸屏Wincc Flexible进行监控,和仿真测试,达到了设计的目标。
关键词:自动分拣,梯形图,触摸屏
目录
第一章 绪论 1
1.1研究背景 1
1.2 研究的目的和意义 2
第二章 方案设计 3
2.1 自动分拣系统组成 3
2.2系统的硬件设计组成 4
2.3 系统的软件设计 5
第三章 硬件设计 6
3.1 PLC型号的选择和确定 6
3.2 I/O地址分配 7
3.3 PLC接线图 8
第四章 软件设计 13
4.1 内部地址 13
4.2 PLC梯形图 14
4.3 语句表程序 33
4.4 上位机触摸屏画面设计 55
第五章 总结 61
参考文献 62
致谢 63
温馨提示:
1、题目前面的备注【字母数字编号】为本站整理分类的编号,与课题内容无关,请选题时忽视;
2、若题目上备注三维,则表示文件里包含三维源文件,由于三维组成零件数量较多,为保证预览截图的简洁性,本站将三维文件夹进行了打包。三维及CAD预览截图,均为本站电脑打开软件进行截图的,保证能够打开,下载原件超高清,下载后解压即可;
3、本站所有资源如无特殊说明,都需要本地电脑安装Office2007。图纸软件为AutoCAD,PROE,UG,SolidWorks,CATIA等;
4、本站所有图文资料仅供用户学习参考,不作为任何商用或其他用途;
5、本站不保证下载资源的准确性、安全性和完整性, 不包修改,不支持退换,同时也不承担用户因使用这些下载资源对自己和他人造成任何形式的伤害或损失;
6、 下载文件中如有侵权或不适当内容,请与我们联系,我们立即纠正。