

作品包括:
Word版说明书1份,共27页,约8800字
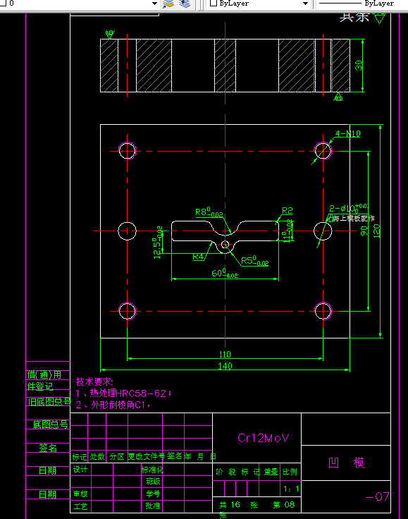
工艺卡2张
CAD版本图纸,共5张

摘 要
随着模具制造的技能化逐步向科学化发展,逐渐由以前手动方式发展为利用软件等高科技方式来辅助设计的完成。冷冲模是其中的一种。
课程设计是在模具专业理论教学之后进行的实践性教学环节。是对所学知识的一次总检验,是走向工作岗位前的一次实战演习。其目的是,综合运用所学课程的理论和实践知识,设计一副完整的模具训练、培养和提高自己的工作能力。巩固和扩充模具专业课程所学内容,掌握模具设计与制造的方法、步骤和相关技术规范。熟练查阅相关技术资料。掌握模具设计与制造的基本技能,如制件工艺性分析、模具工艺方案论证、工艺计算、加工设备选定、制造工艺、收集和查阅设计资料,绘图及编写设计技术文件等。
本次设计是在指导老师认真、耐心的指导下,对模具的经济性、模具的寿命、生产周期、及生产成本等指标下进行全面、仔细的分析下而进行设计的。在此,我表示衷心的感谢他们对我的教诲。
冲模是模具设计与制造专业的主要专业课程之一。它具有很强的实践性和综合性,通过学习这门课程,使我对冲压模具有了新的认识,从中也学到了不少知识,激发了我对冲压模具的爱好。
关键词:
工艺性分析、模具工艺方案论证、工艺计算、加工设备选定、制造工艺、收集和查阅设计资料,绘图及编写设计技术文件等。
目 录
摘 要 3
1、引言 4
1.1.模具行业的发展现状及市场前景 4
1.2.课题来源和研究意义 5
1.3.题目研究方法 5
2、冲裁件的工艺性分析 7
2.1.冲裁件的结构工艺性 7
2.1.1.冲裁件的形状 7
2.1.2.冲裁件的尺寸精度 8
3、制件冲压工艺方案的确定 9
3.1.冲压工序的组合 9
3.2.冲压顺序的安排 9
4、制件排样图的设计及材料利用率的计算 10
4.1.制件排样图的设计 10
4.1.1.搭边与料宽 10
4.2.材料利用率的计算 11
5、确定总冲压力和选用压力机及计算压力中心 12
5.1.冲压力 12
5.1.1.冲裁力的计算 12
5.1.2.卸料力、推件力及顶件力的计算 12
5.2.压力中心的计算 13
5.3.压力机的选用 14
6、凸、凹模刃口尺寸计算 15
6.1.凸、凹模刃口尺寸计算原则 15
6.2.凸、凹模刃口尺寸计算方法 16
6.2.1.凸模和凹模分开加工 16
6.2.2.凸模和凹模配合加工 16
7、模具整体结构形式设计 19
8、模具零件的结构设计 20
8.1.凸凹模的设计 20
8.2.落料凹模的设计 20
8.3.选择标准模架 22
8.4.卸料、压边弹性元件的确定 22
9、模具总体结构设计 24
9.1.模具类形的选择 24
9.2.定位方式的选择 24
9.3.卸料、出件方式的选择 24
9.4.导柱、导套位置的确定 24
10、模具的动作原理 25
设计小结 26
参考文献 27
温馨提示:
1、题目前面的备注【字母数字编号】为本站整理分类的编号,与课题内容无关,请选题时忽视;
2、若题目上备注三维,则表示文件里包含三维源文件,由于三维组成零件数量较多,为保证预览截图的简洁性,本站将三维文件夹进行了打包。三维及CAD预览截图,均为本站电脑打开软件进行截图的,保证能够打开,下载原件超高清,下载后解压即可;
3、本站所有资源如无特殊说明,都需要本地电脑安装Office2007。图纸软件为AutoCAD,PROE,UG,SolidWorks,CATIA等;
4、本站所有图文资料仅供用户学习参考,不作为任何商用或其他用途;
5、本站不保证下载资源的准确性、安全性和完整性, 不包修改,不支持退换,同时也不承担用户因使用这些下载资源对自己和他人造成任何形式的伤害或损失;
6、 下载文件中如有侵权或不适当内容,请与我们联系,我们立即纠正。