

作品包括:
Word版说明书1份,共54页
CAD版本图纸,共9张
摘要
本课题目标是设计大型轴类零件热处理转运装置,其作用是将从加热炉中送出的高温轴类零件送到冷水中进行淬火处理,是轴类零件生产线中重要的组成部分。
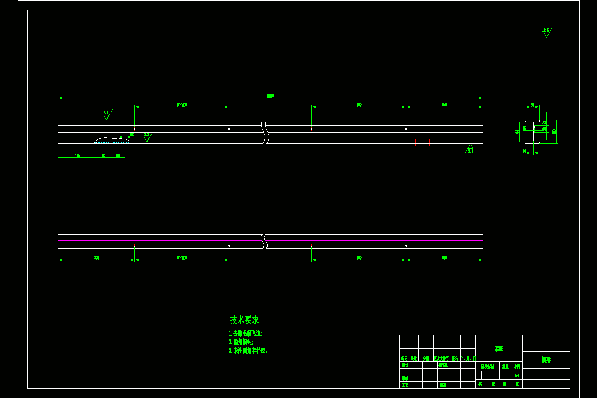
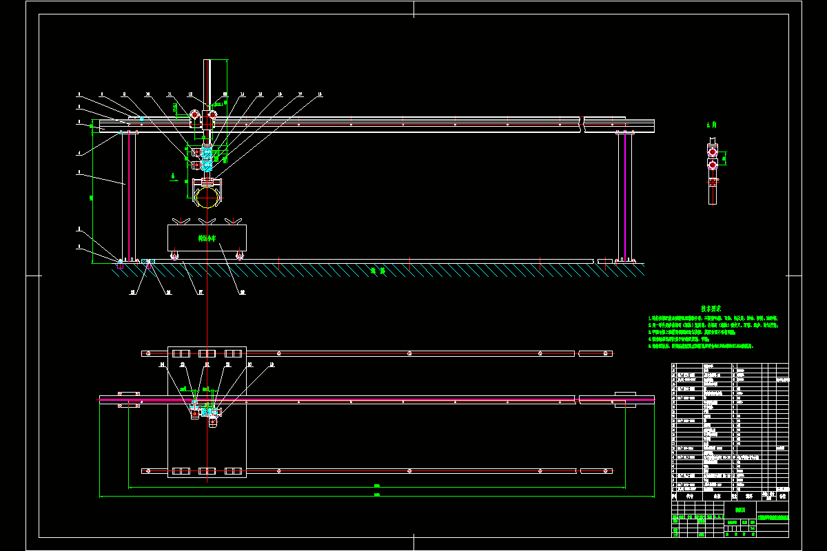
本次设计的大型轴类热处理运转装置由提升机械手1台、转运小车1台组成,机械手采用桁架结构,置于上方实现工件的提升,转运小车承担从加热炉中送出的高温轴类零件送到冷水中进行淬火处理。
本文首先,通过对热处理运转装置现状及结构原理进行分析;接着,在上述分析基础上提出了转运装置总体方案为提升机械手采用关节机械手与桁架机械手组合的形式;转运小车采用电机通过同步带驱动车轮运行;然后,分别对提升机械手、转运小车结构及主要零部件进行设计;最后,通过AutoCAD制图软件绘制了运转装置装配图、主要零件图。
关键字:轴,运转装置,提升,机械手,结构
摘要I
Abstract II
第1章绪论1
1.1课题背景及意义1
1.2热处理概述1
1.3热处理运转装置概述2
1.3.1机械手的组成2
1.3.2机械手的分类2
1.4国内外发展状况4
第2章总体方案设计5
2.1设计要求5
2.2方案拟定5
2.2.1初步分析5
2.2.2拟定方案5
2.2.3转运装置总体布置方案5
第3章提升机械手的结构分析与设计7
3.1提升机械手方案设计7
3.2电动机及减速器的选择7
3.2.1参数计算7
3.2.2电机型号的选择9
3.2.3减速器型号的选择11
3.3导轨的选型与计算13
3.3.1导轨的选型13
3.3.2直线滚动导轨副的计算、选择13
3.3.3导轨副精度分析15
3.4齿轮齿条设计16
3.4.1齿轮齿条的材料选择16
3.4.2齿轮齿条的设计与校核16
3.5手抓的设计21
3.5.1手抓设计分析21
3.5.2手爪结构设计与校核22
3.5.3结构分析23
3.5.4计算分析24
3.5.5手抓夹持精度的分析计算25
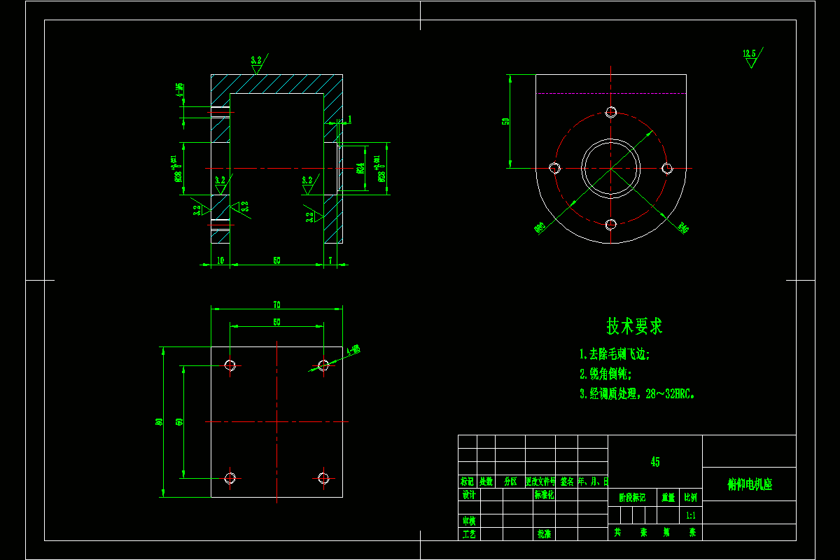
3.6横梁及立柱的设计26
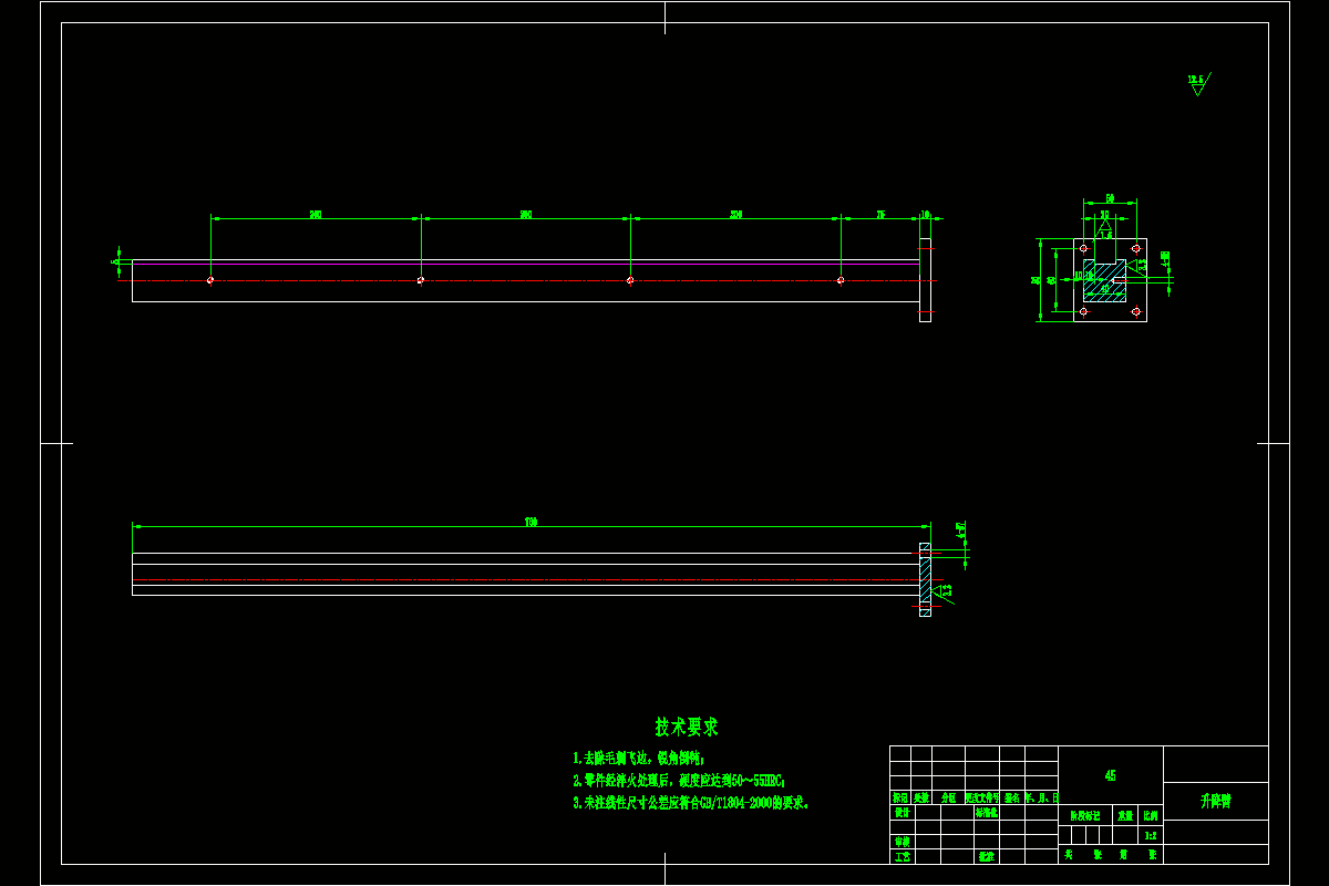
3.7关节臂的设计27
第4章转运小车的结构分析与设计28
4.1转运小车方案设计28
4.2导轨的选型与计算28
4.2.1导轨的选型28
4.2.2直线滚动导轨副的计算、选择29
4.2.3导轨副精度分析31
4.3电机的选择31
4.3.1电机轴的转动惯量32
4.3.2电机扭矩计算32
4.4同步带传动的设计33
4.4.1同步带传动设计计算33
4.4.2同步带的设计35
4.4.3同步带轮的设计36
4.4.4同步带的设计36
总结38
参考文献39
致谢40
温馨提示:
1、题目前面的备注【字母数字编号】为本站整理分类的编号,与课题内容无关,请选题时忽视;
2、若题目上备注三维,则表示文件里包含三维源文件,由于三维组成零件数量较多,为保证预览截图的简洁性,本站将三维文件夹进行了打包。三维及CAD预览截图,均为本站电脑打开软件进行截图的,保证能够打开,下载原件超高清,下载后解压即可;
3、本站所有资源如无特殊说明,都需要本地电脑安装Office2007。图纸软件为AutoCAD,PROE,UG,SolidWorks,CATIA等;
4、本站所有图文资料仅供用户学习参考,不作为任何商用或其他用途;
5、本站不保证下载资源的准确性、安全性和完整性, 不包修改,不支持退换,同时也不承担用户因使用这些下载资源对自己和他人造成任何形式的伤害或损失;
6、 下载文件中如有侵权或不适当内容,请与我们联系,我们立即纠正。