

作品包括:
Word版说明书1份,共38页
CAD版本图纸,共15张
proe三维图一套
UG三维图一份
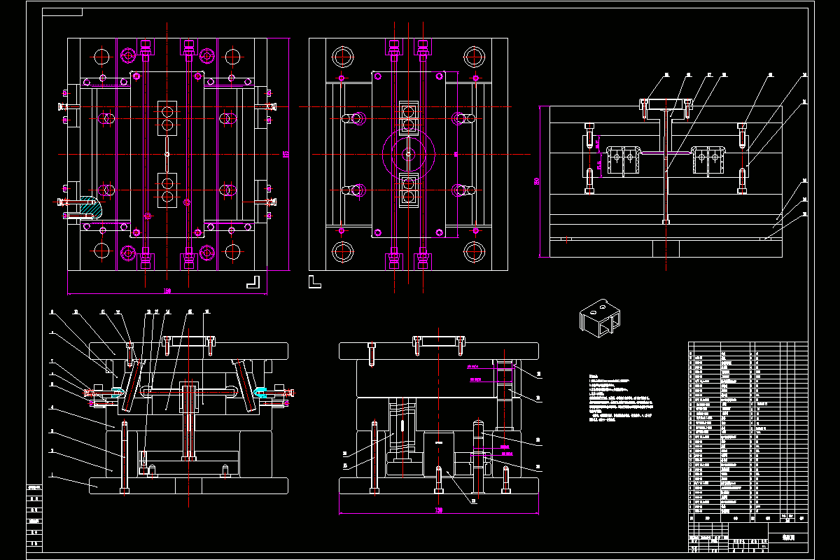
摘要
本文主要介绍了塑料灯盒注塑模设计,塑料成形工艺以及注塑的过程,也对注塑机也进行了一些简单的介绍。注塑模设计的主要过程有:塑料制品的工艺分析,型腔数目的确定,注塑机的选择以及模具的结构设计。模具的结构设计包括:浇注系统的设计,成型零件设计,导向机构设计,侧面分型机构设计,脱模机构设计,冷却机构设计以及排气系统设计。由于特殊形状,无法直接脱模,需设置侧面分型机构,本套模具是通过斜导柱进行侧面分型,本文对模具的各部分零件进行了设计与计算。本文给出了详细的设计过程及装配图。
温馨提示:
1、题目前面的备注【字母数字编号】为本站整理分类的编号,与课题内容无关,请选题时忽视;
2、若题目上备注三维,则表示文件里包含三维源文件,由于三维组成零件数量较多,为保证预览截图的简洁性,本站将三维文件夹进行了打包。三维及CAD预览截图,均为本站电脑打开软件进行截图的,保证能够打开,下载原件超高清,下载后解压即可;
3、本站所有资源如无特殊说明,都需要本地电脑安装Office2007。图纸软件为AutoCAD,PROE,UG,SolidWorks,CATIA等;
4、本站所有图文资料仅供用户学习参考,不作为任何商用或其他用途;
5、本站不保证下载资源的准确性、安全性和完整性, 不包修改,不支持退换,同时也不承担用户因使用这些下载资源对自己和他人造成任何形式的伤害或损失;
6、 下载文件中如有侵权或不适当内容,请与我们联系,我们立即纠正。