

作品包括:
Word版说明书1份,共32页,约9900字
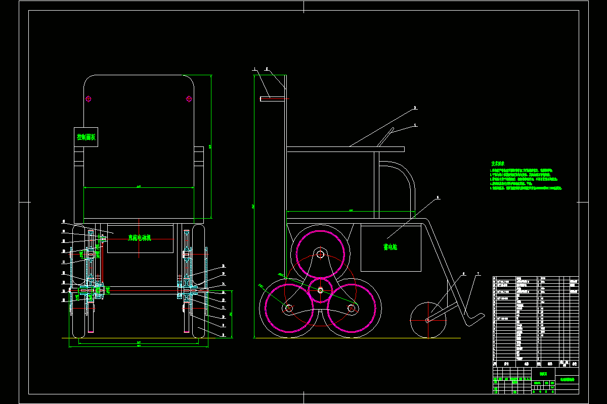
CAD版本图纸,共10张

摘要
当前中国老龄化社会的压力越来越大。项目针对老龄化社会护理人员多为女性且老式楼房没有电梯的特点,设计具备爬楼梯功能的电动轮椅,从而有效提高老年人的生活质量。
本次设计主要针多功能电动爬楼轮椅进行设计。首先,通过对电动爬楼轮椅结构及原理进行分析,在此分析基础上提出了总体结构方案;接着,对主要技术参数进行了计算选择;然后,对各主要零部件进行了设计与校核;最后,通过AutoCAD制图软件绘制了电动爬楼轮椅装配图及主要零部件图。整个设计过程中包括其中的数据计算、传动系统设计、电机等外购件选型、应用环境、维护保养等方面进行系统设计。
通过本次设计,巩固了大学所学专业知识,如:机械原理、机械设计、材料力学、公差与互换性理论、机械制图等;掌握了普通机械产品的设计方法并能够熟练使用AutoCAD制图软件,对今后的工作于生活具有极大意义。
关键词:电动;爬楼;轮椅;行星轮
目录
摘要I
Abstract II
第1章绪论1
1.1课题的研究背景及意义1
1.2国内外研究现状1
1.2.1履带式1
1.2.2星轮式2
1.2.3腿足式2
1.2.4复合式3
第2章总体方案设计5
2.1总体类型选择5
2.1.1设计要求5
2.1.2类型选择5
2.2总体结构设计6
2.3行星轮机构设计7
2.3.1行星轮总体结构概述7
2.3.2行星轮架的中心距7
2.3.3小轮半径r的范围值8
第3章驱动机构设计10
3.1动力系统参数选择10
3.2驱动电机选择10
3.2.1驱动电机的类型选择10
3.2.2选择驱动电机的功率10
3.3蓄电池选择12
3.4计算传动装置的运动和动力参数13
3.4.1各轴转速13
3.4.2各轴输入功率13
3.4.3各轴转矩13
第4章主要零件设计计算14
4.1齿轮传动设计14
4.1.1传动比计算14
4.1.2齿轮模数与齿数计算14
4.1.3载荷系数计算16
4.1.4几何尺寸计算18
4.2链传动设计18
4.2.1链传动设计计算19
4.2.2链轮结构尺寸设计21
4.3轴及附件设计21
4.3.1计算各轴的强度21
4.3.2轴的结构设计22
4.3.3轴的强度校核23
结论25
参考文献26
致谢27
温馨提示:
1、题目前面的备注【字母数字编号】为本站整理分类的编号,与课题内容无关,请选题时忽视;
2、若题目上备注三维,则表示文件里包含三维源文件,由于三维组成零件数量较多,为保证预览截图的简洁性,本站将三维文件夹进行了打包。三维及CAD预览截图,均为本站电脑打开软件进行截图的,保证能够打开,下载原件超高清,下载后解压即可;
3、本站所有资源如无特殊说明,都需要本地电脑安装Office2007。图纸软件为AutoCAD,PROE,UG,SolidWorks,CATIA等;
4、本站所有图文资料仅供用户学习参考,不作为任何商用或其他用途;
5、本站不保证下载资源的准确性、安全性和完整性, 不包修改,不支持退换,同时也不承担用户因使用这些下载资源对自己和他人造成任何形式的伤害或损失;
6、 下载文件中如有侵权或不适当内容,请与我们联系,我们立即纠正。