

作品包括:
Word版说明书1份,共34页,约15000字
CAD版本图纸,共6张

摘要
本次设计的反击式破碎机的规格是φ1000×700,其中以板锤、转子的结构设计和板锤的固定方法为主。
本设计以PF1007型号的反击式破碎机的相关参数为参考,整体上优化了转子型号,在此过程中先确定转子的转速,再将转子的线速度、板锤的大孝数量及型号和其他的有关的数据确定好。针对此破碎机的设计一定要保证其工作的正常运行,不能影响其生产效率和破碎粒度,最终再设计其他相关的零部件。
针对主要零部件的设计中,主要的研究对象有以下几点:1、转子的相关设计和计算;2、板锤结构的设计和计算以及其固定方法;3、带轮的设计及计算;4、主轴的设计计算;5、轴承的选择及校核; 6、反击板的结构设计和计算;7、破碎腔的结构设计等等。在这之中最主要的部分是对转子以及板锤部分的改进。
关键词:反击式破碎机;研究内容;结构;计算
目 录
摘要 I
Abstract II
1 绪论 1
1.1 研究反击式破碎机的目的及意义 1
1.2 反击式破碎机国内外研究现状 1
1.3 反击式破碎机的工作原理 1
1.4反击式破碎机的特点 2
1.5反击式破碎机的性能 2
1.6反击式破碎机的破碎机理 3
1.7 反击式破碎机的分类 3
1.7.1 ISP系列细碎反击式破碎机 3
1.7.2 PF系列反击式破碎机 4
1.7.3 PFY系列硬岩反击式破碎机 4
1.7.4 PFQ型涡旋强力反击式破碎机 5
2 反击式破碎机总体结构设计 6
2.1 反击式破碎机设计要求 6
2.1.1 设计参数 6
2.1.2 主要研究内容 6
2.2 破碎机的主要工作参数的确定 6
2.2.1转子的转速 6
2.2.2板锤数目和生产率 6
2.2.3电动机的选择 8
3主要零部件的设计及计算 9
3.1 传动部件的设计及计算 9
3.1.1 V带及带轮的设计计算 9
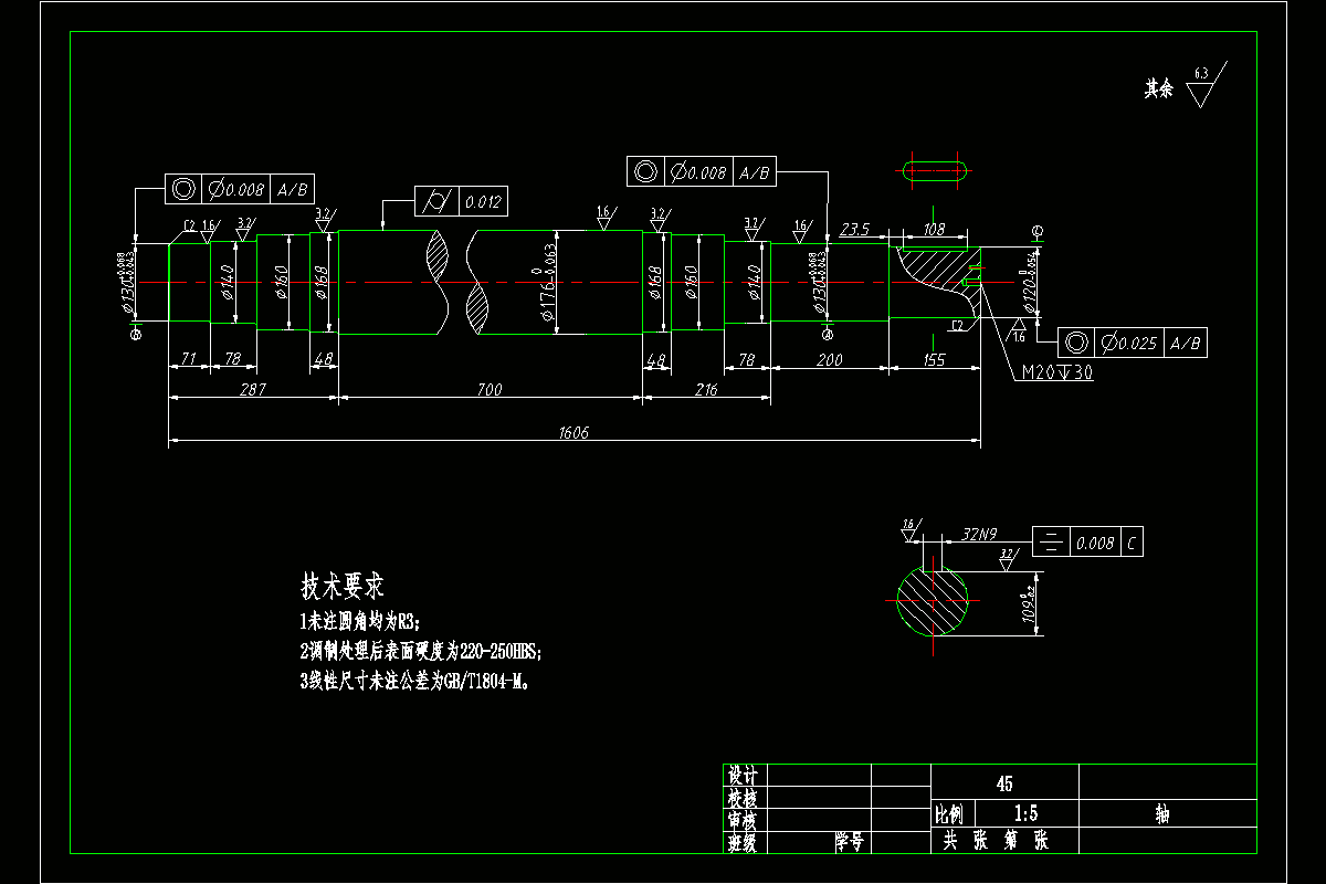
3.1.2 轴的结构设计与校核 12
3.1.3 转子以及轴的强度计算校核 13
3.1.4 键的选择及校核 16
3.1.5 轴承的选择及校核 17
3.4.3 轴承的密封与润滑 19
3.2 转子部件的设计 19
3.2.1 转子的结构设计 19
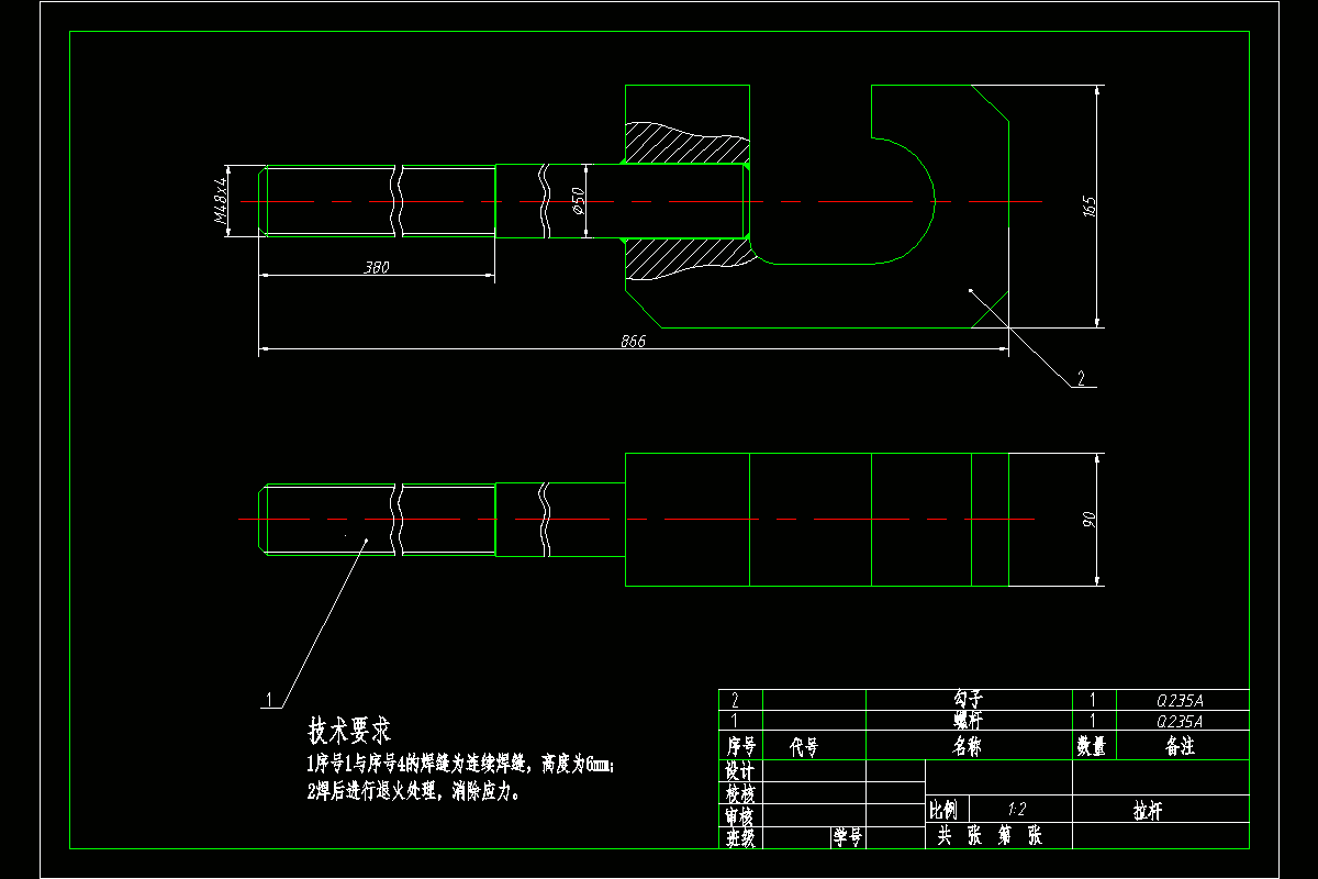
3.2.2 板锤的结构设计及作用 21
3.3 反击式破碎机的破碎腔设计 23
3.3.1 反击板结构的设计与安装 23
3.3.2 破碎腔的结构设计 24
4破碎机的整体结构及零部件的组装 27
4.1 反击式破碎机的安装 27
4.2 反击式破碎机的调整 27
4.3 反击式破碎机的整体三维图 27
结论 29
致谢 30
参考文献 31
温馨提示:
1、题目前面的备注【字母数字编号】为本站整理分类的编号,与课题内容无关,请选题时忽视;
2、若题目上备注三维,则表示文件里包含三维源文件,由于三维组成零件数量较多,为保证预览截图的简洁性,本站将三维文件夹进行了打包。三维及CAD预览截图,均为本站电脑打开软件进行截图的,保证能够打开,下载原件超高清,下载后解压即可;
3、本站所有资源如无特殊说明,都需要本地电脑安装Office2007。图纸软件为AutoCAD,PROE,UG,SolidWorks,CATIA等;
4、本站所有图文资料仅供用户学习参考,不作为任何商用或其他用途;
5、本站不保证下载资源的准确性、安全性和完整性, 不包修改,不支持退换,同时也不承担用户因使用这些下载资源对自己和他人造成任何形式的伤害或损失;
6、 下载文件中如有侵权或不适当内容,请与我们联系,我们立即纠正。