

作品包括:
Word版说明书1份,共31页,约13000字
CAD版本图纸,共23张
摘要
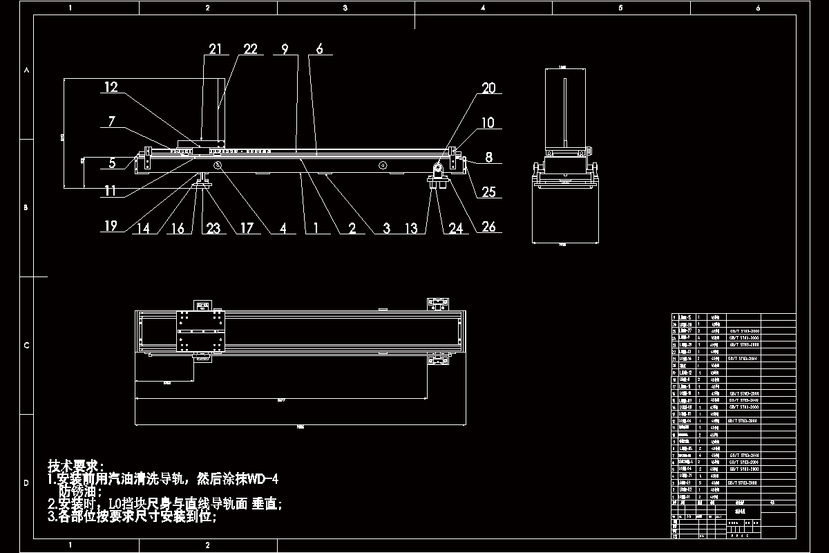
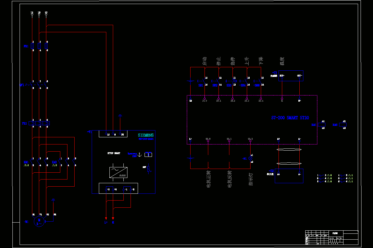
随着现代化科学技术和机械技术、军事技术、航空航天技术等工业的迅猛发展,对于身管动力偶臂测量机的要求越来越高,而对于实现这种测量机的精密测量技术在目前是比较难的课题。对于设计与研究此课题对于身管动力偶臂测量机有很大的意义。身管就是锥柱体,而动力偶臂的实质为质偏心。本题目结合科研质心动力偶臂项目的要求而提出的,采用称重传感器及杠杆机构原理对身管动力偶臂进行自动测量。对身管的径向动力偶臂进行手动装夹,手动转位,自动测量,电气控制的半自动测量设备。测试工装由前后V型支撑组成,前、后V型支撑均可在设备轴向方向可调,调到位后可锁紧。前后V型支撑上均装有滚轮,方便径向偏心的测试。
关键词:质心质偏测量动力偶臂
温馨提示:
1、题目前面的备注【字母数字编号】为本站整理分类的编号,与课题内容无关,请选题时忽视;
2、若题目上备注三维,则表示文件里包含三维源文件,由于三维组成零件数量较多,为保证预览截图的简洁性,本站将三维文件夹进行了打包。三维及CAD预览截图,均为本站电脑打开软件进行截图的,保证能够打开,下载原件超高清,下载后解压即可;
3、本站所有资源如无特殊说明,都需要本地电脑安装Office2007。图纸软件为AutoCAD,PROE,UG,SolidWorks,CATIA等;
4、本站所有图文资料仅供用户学习参考,不作为任何商用或其他用途;
5、本站不保证下载资源的准确性、安全性和完整性, 不包修改,不支持退换,同时也不承担用户因使用这些下载资源对自己和他人造成任何形式的伤害或损失;
6、 下载文件中如有侵权或不适当内容,请与我们联系,我们立即纠正。