

作品包括:
说明书1份,共31页,约9500字左右
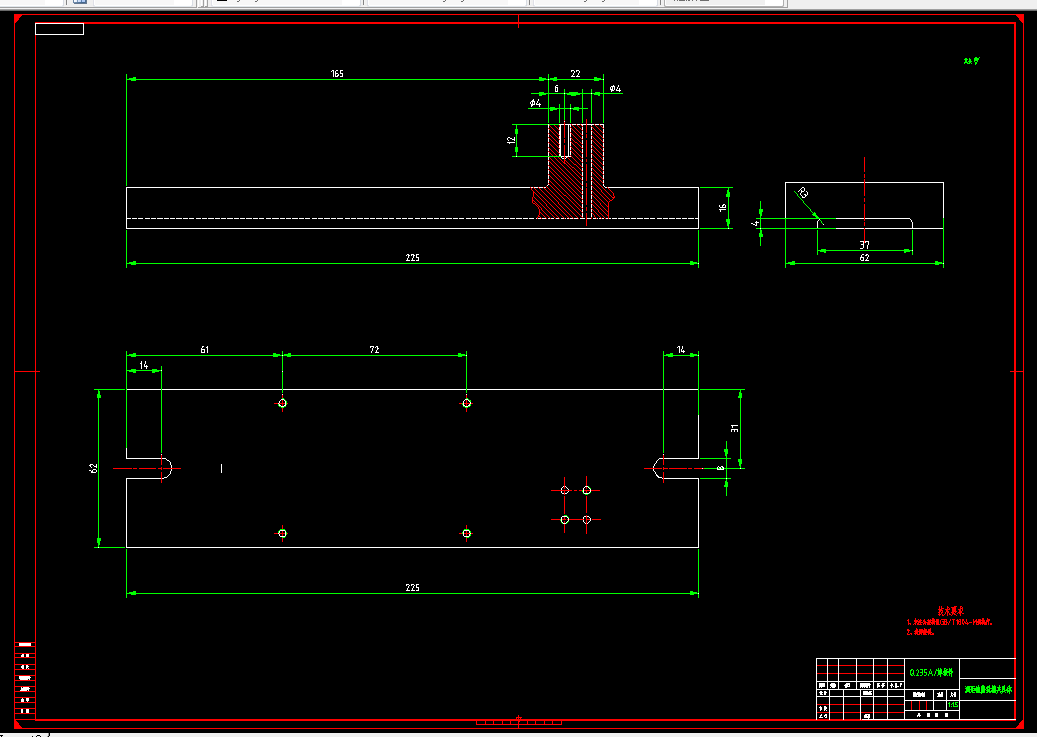
CAD版本本图纸,共4张
摘要:在生产过程中,使生产对象(原材料,毛坯,零件或总成等)的质和量的状态发生直接变化的过程叫工艺过程,如毛坯制造,机械加工,热处理,装配等都称之为工艺过程。在制定工艺过程中,要确定各工序的安装工位和该工序需要的工步,加工该工序的机车及机床的进给量,切削深度,主轴转速和切削速度,该工序的夹具,刀具及量具,还有走刀次数和走刀长度,最后计算该工序的基本时间,辅助时间和工作地服务时间。
关键词:工艺过程;毛坯;进给量;走刀长度;
摘要 Ⅰ
ABSTRACT Ⅱ
第一章 绪论 1
1.1 选题的意义 3
1.2 夹具的发展方向 3
1.3 本章小结 6
第二章 调距镜筒的加工工艺规程设计 8
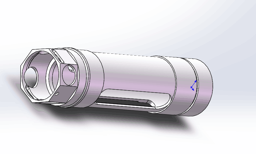
2.1 调距镜筒的作用 9
2.1.2调距镜筒的技术要求 10
2.2 调距镜筒的工艺分析 11
2.3 确定毛坯,绘制毛坯简图 11
2.3.1选择毛坯 12
2.3.2确定毛坯的尺寸公差和机械加工余量 12
2.4 拟定调距镜筒工艺路线 13
2.4.1定位基准的选择 13
2.4.2精基准的选择 15
2.4.3粗基准的选择 16
2.5各面、孔加工方法的确定 17
2.6加工阶段的划分 18
2.7工序的集中于分散 19
2.8工序顺序的安排 20
2.8.1机械加工工序 21
2.8.2热处理工序 22
2.8.3辅助工序 22
第三章 机床设备及工艺装备的选用 23
3.1 机床设备的选用 23
3.2 工艺装备的选用 23
第四章 切削用量与时间定额的计算 23
第五章 夹具设计 24
5.1 问题的提出 25
5.2 定位方案 26
5.3 夹紧机构 27
5.4 夹具与机床的联接元件 28
5.5 定位误差分析 29
5.6 切削力及夹紧力的计算 30
结论 31
参考文献 32
致谢 33
温馨提示:
1、题目前面的备注【字母数字编号】为本站整理分类的编号,与课题内容无关,请选题时忽视;
2、若题目上备注三维,则表示文件里包含三维源文件,由于三维组成零件数量较多,为保证预览截图的简洁性,本站将三维文件夹进行了打包。三维及CAD预览截图,均为本站电脑打开软件进行截图的,保证能够打开,下载原件超高清,下载后解压即可;
3、本站所有资源如无特殊说明,都需要本地电脑安装Office2007。图纸软件为AutoCAD,PROE,UG,SolidWorks,CATIA等;
4、本站所有图文资料仅供用户学习参考,不作为任何商用或其他用途;
5、本站不保证下载资源的准确性、安全性和完整性, 不包修改,不支持退换,同时也不承担用户因使用这些下载资源对自己和他人造成任何形式的伤害或损失;
6、 下载文件中如有侵权或不适当内容,请与我们联系,我们立即纠正。