

作品包括:
说明书1份,共33页,约9800字左右
CAD版本本图纸,共4张
目录
摘 要 3
Abstract 4
1、绪 论 4
2、零件的分析 5
2.1、零件的作用 5
2.2、零件的工艺分析 5
3、确定毛坯,绘制毛坯图、零件图 8
3.1、确定毛坯的制造形式及材料 8
3.2、机械加工余量、工序尺寸及毛坯尺寸的确定 8
4、工艺规程设计 10
4.1、定位基准的选择 10
4.2、制定工艺路线 10
4.3、选择加工设备及刀、夹、量具 14
4.4 确定切削用量及基本工时 16
4.4.1粗铣底部大端面及次端面,保证厚度尺寸12 17
4.4.2 铣上部端面,保证高度尺寸72 18
4.4.3铣30X2槽 18
4.4.4粗铣 外圆至尺寸 19
4.4.5粗铣、精铣 外圆,保证高度尺寸42到位 19
4.4.6插齿6X2.8,6X6方孔 20
4.4.7铣底部大端面30X2槽...............................................................................................................23
4.4.8粗镗、半精镗 内孔至尺寸.........................................................................................24
4.4.9粗车3X0.5和 沟槽,其中 沟槽需要半精车..............................................24
4.4.10钻、绞 孔...............................................................................................................25
5、钻孔夹具的设计 26
5.1定位基准的选择 26
5.2定位误差的分析 26
5.3切削力及夹紧力的计算 20
5.4夹紧元件及动力装置确定 28
5.5夹具设计及操作的简要说明 28
小 结 28
致 谢 29
参考文献 29
摘 要
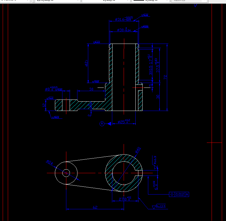
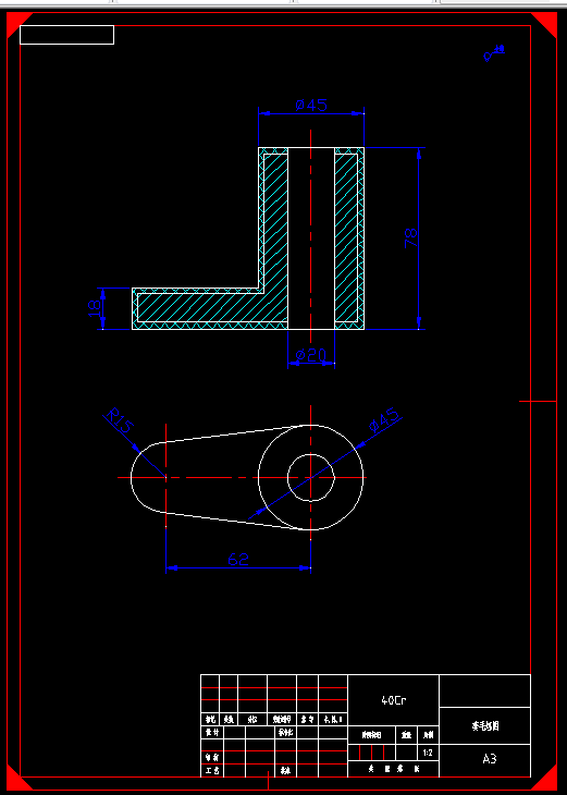
本次设计的主要内容是套加工工艺规程及 孔钻孔夹具的设计。套主要是与其它零件配对使用,其主要加工表面及控制位置为 外圆和 内孔。由零件要求分析可知,保证 孔和 外圆尺寸的同时应该尽量保证其同轴度,这对于后工序装配和总成使用上来说都有重要影响。所以,工序安排时,采取以 大外圆粗定位夹紧加工后,对 孔进行镗削加工同时成型。因其粗糙度为Ra3.2,可通过粗镗、半精镗满足。对于钻 孔时,主要以套的已经加工出的 定位,控制其自由度,以达到加工出来的产品满足要求并且一致性好的目的。本文的研究重点在于通过对套的工艺性和力学性能分析,对加工工艺进行合理分析,选择确定合理的毛坯、加工方式、设计高效、省力的夹具,通过实践验证,最终加工出合格的套零件。
关键词:套,工艺规程,钻孔,工艺路线,加工方式;
温馨提示:
1、题目前面的备注【字母数字编号】为本站整理分类的编号,与课题内容无关,请选题时忽视;
2、若题目上备注三维,则表示文件里包含三维源文件,由于三维组成零件数量较多,为保证预览截图的简洁性,本站将三维文件夹进行了打包。三维及CAD预览截图,均为本站电脑打开软件进行截图的,保证能够打开,下载原件超高清,下载后解压即可;
3、本站所有资源如无特殊说明,都需要本地电脑安装Office2007。图纸软件为AutoCAD,PROE,UG,SolidWorks,CATIA等;
4、本站所有图文资料仅供用户学习参考,不作为任何商用或其他用途;
5、本站不保证下载资源的准确性、安全性和完整性, 不包修改,不支持退换,同时也不承担用户因使用这些下载资源对自己和他人造成任何形式的伤害或损失;
6、 下载文件中如有侵权或不适当内容,请与我们联系,我们立即纠正。