

作品包括:
Word版说明书1份,共37页,约16000字
外文翻译一份
CAD版本图纸,共9张
SW三维图一套

摘 要
浇筑桁架机器人机械化结构的发展在现有的市场上是很具有代表性的,浇筑桁架机器人是一种类似于跨运车一样的结构形式,实现在浇注过程中达到机械化提升和浇注的过程。从根本上降低了工作的强度,实现了浇注上的便捷性,达到浇注过程中的机械化传动的优势,解决了人们在多功能机器人辅助浇注工作中的应用。实现在人工无法完成的工作中实现智能化工作的特点,普片使用机械传动的方式实现机器人的结构形式传动,达到浇筑工作的功能。在本次的设计中,课题要求设计的是一种实现工作中使用的浇筑桁架机器人,实现在浇筑进行机械化浇筑的特点,达到本次设计的要求。对浇筑桁架机器人的结构设计和基本的要求来说,是很关键的,需要考虑到浇筑桁架机器人的稳定性,达到对浇筑水泥的吸附和浇注处理的过程。在结构设计上对机械传动结构的行走的稳定性和运转的精确性的要求是很高的,只有实现正常的运行才能达到在浇筑运动和行驶的功能,不会出现卡顿等情况。
本次设计的浇筑桁架机器人,要有很高的适应能力,具有较高的工作强度,实现三自由的传动结构形式,达到在X、Y、Z三个方向上的运动特征。满足对浇筑工作的浇筑过程,实现在结构传动设计上达到和人工操作浇筑的能力一样,实现机械化传动的设计优点。浇筑桁架机器人最早出现在工业生产上,在工业浇筑桁架机器人的发展中,工业机械结构自动化设备的发展得到了广泛的应用。对于浇筑桁架机器人的性能和浇筑桁架研发都有提高。使得浇筑桁架机器人的成本不断的降低。本文通过查阅浇筑桁架机器人相关的文献资料,本次设计的浇筑桁架吸的浇筑桁架机器人,需要考虑其机械综合运用的能力,设计传动灵活的三自由的桁架机器人结构,实现结构设计上的质量轻等设计优点,达到浇筑桁架机器人的通用性。通过运用SolidWorks软件绘制浇筑桁架机器人的结构,进行总体结构的设计,绘制二维工程图纸,撰写设计说明书。
关键词:桁架、浇筑、机器人、自由度、导轨
目 录
摘 要 2
Abstract 3
目 录 5
第一章 绪论 7
1.1课题研究的意义和目的 7
1.2 国内外机器人传动机器人的发展概况 9
1.2.1国外的发展趋势 9
1.2.2国内的发展趋势 10
1.3本文设计的主要内容和预期要求 11
第二章 桁架式机器人传动方案的设计计算 13
2.1桁架式机器人传动装置的结构类型 13
2.1.1桁架式机械手桁架浇筑机器人装置的介绍 13
2.1.2桁架式机器人机器人方案的对比 13
2.1.3桁架式机器人的主要结构 14
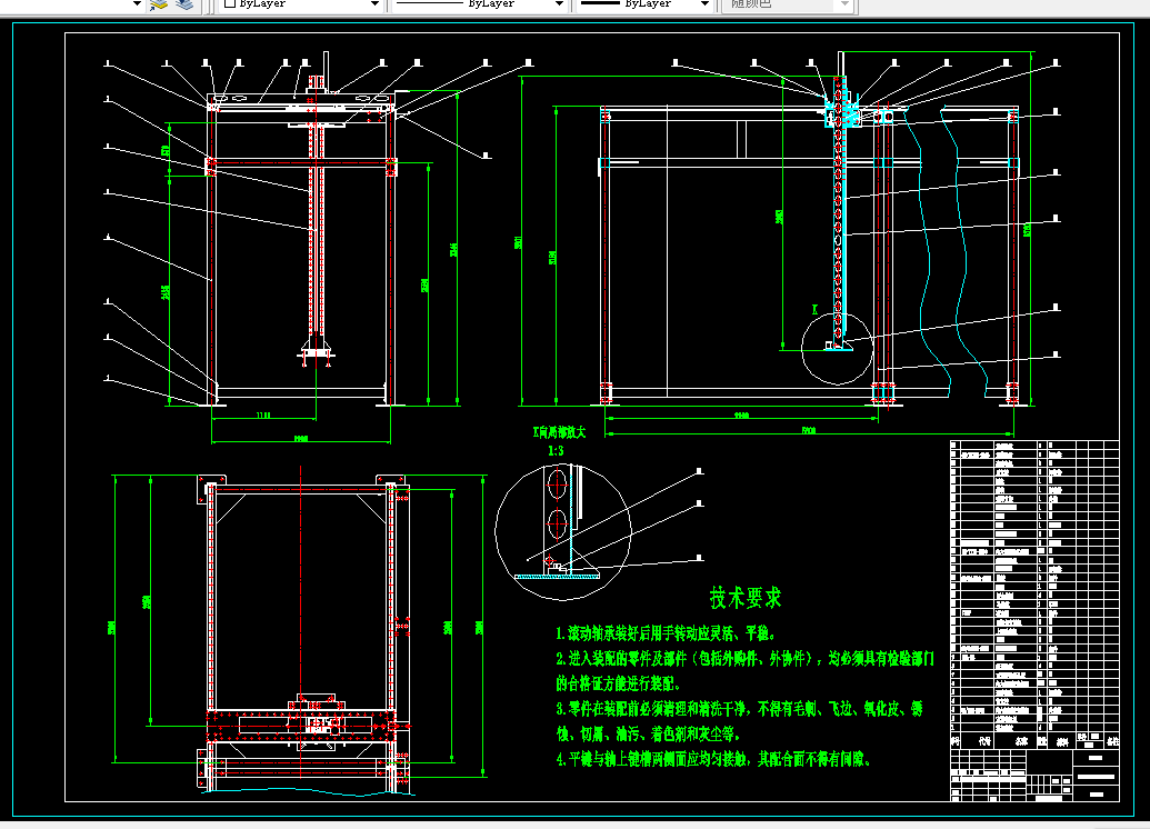
2.2 桁架式机械手龙门式装置的工作原理 14
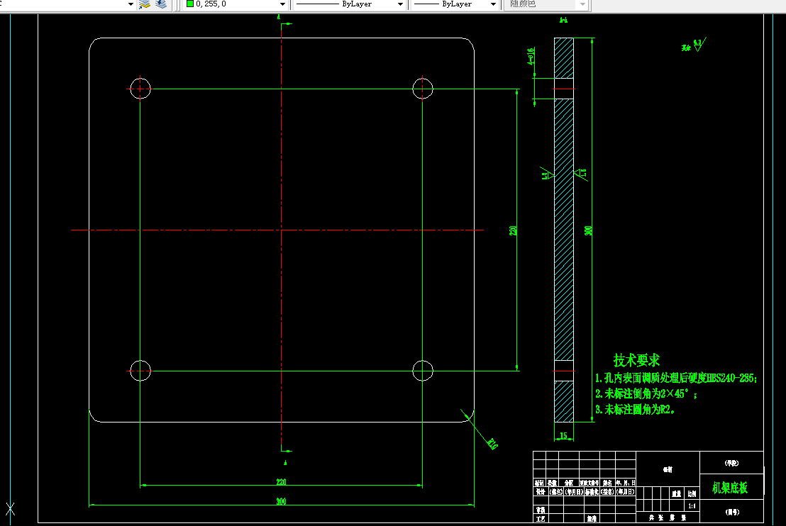
2.3龙门式机架的结构设计 17
2.3.1机架的结构分析 17
2.3.2机架的设计原则和要求 18
2.3.3机架的设计步骤 19
图3-4:机架结构形式 20
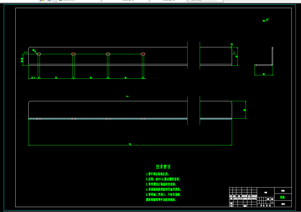
第三章 浇筑桁架机器人传动结构的设计计算 21
3.1电机的选择 21
3.2齿轮传动机器人的设计计算 22
3.3导轨寿命校核 24
3.3.1 导轨类型选择 24
3.3.2 导轨的寿命计算 25
3.4键的校核 26
3.5抓取浇筑机械臂的设计计算 27
3.5.1抓取浇筑机械臂的选型和计算 27
3.5.2机器人三自由的关节工作摩擦力的计算 28
3.5.3计算机器人抓取浇筑机械臂的轴向负载力 28
3.5.4机器人抓取浇筑机械臂的动载荷计算与直径估算 28
3.6验算传动系统的刚度 30
3.7立柱和横梁的设计计算 30
3.8 立柱和横梁的强度校核 32
总 结 34
参考文献 35
致 谢 37
温馨提示:
1、题目前面的备注【字母数字编号】为本站整理分类的编号,与课题内容无关,请选题时忽视;
2、若题目上备注三维,则表示文件里包含三维源文件,由于三维组成零件数量较多,为保证预览截图的简洁性,本站将三维文件夹进行了打包。三维及CAD预览截图,均为本站电脑打开软件进行截图的,保证能够打开,下载原件超高清,下载后解压即可;
3、本站所有资源如无特殊说明,都需要本地电脑安装Office2007。图纸软件为AutoCAD,PROE,UG,SolidWorks,CATIA等;
4、本站所有图文资料仅供用户学习参考,不作为任何商用或其他用途;
5、本站不保证下载资源的准确性、安全性和完整性, 不包修改,不支持退换,同时也不承担用户因使用这些下载资源对自己和他人造成任何形式的伤害或损失;
6、 下载文件中如有侵权或不适当内容,请与我们联系,我们立即纠正。