

作品包括:
Word版设计说明书1份,共52页,约27000字
任务书一份
开题报告一份
外文翻译一份
CAD版本图纸,共3张
![1762320053513499.png C@18[B68PT($YS]2[MU%5$E.png](/uploadfiles/20251105/1762320053513499.png)
摘要
随着时间的流逝,科学技术的不断进步,自动门系统在大型公司、科研所、政府机关等保密性较强的单位应用越来越广泛。为了使自动门运行安全可靠,本设计采用可编程控制器(PLC)与变频器组成的自动门控制系统,设计中采用两个微波传感器(门内和门外)、行程开关等作为此系统的输入设备,变频器用来调节电机转速从而起到调节门体运动速度的作用,根据控制系统的工作原理及系统的硬件组成,利用人体感应器的特点、自动门运行位置检测、门运行障碍检测等控制电路的工作过程,对变频器的选型、I/O点的确定、PLC的选型、电机选型和自动门的控制系统等方面进行了详细论述。结合PLC的工作特点,对控制系统的工作过程作了合理的优化和改进,并且绘制了控制系统软件设计的程序流程图、外部端子接线图、PLC控制梯形图和控制系统原理图等。本设计应用PLC取代传统的继电器、接触器控制系统和单片机控制系统,用变频器调节电机的转速,实现自动门的控制,具有接线简单,成本低,易于维护和检修等优点。
关键词:自动门,PLC,梯形图,变频控制。
目 录
1 引言................................................................1
1.1 课题背景及意义..................................................1
1.2 自动门的发展现状................................................2
1.3 自动门技术的发展方向............................................4
1.4 本课题的现实意义................................................5
2 自动门控制系统总方案................................................6
2.1 自动门的功能需求分析............................................6
2.2 自动门控制系统构成..............................................7
2.3 自动门技术参数..................................................8
2.4 自动门控制要求..................................................9
3 自动门控制系统的硬件设计...........................................10
3.1 传感器的选择...................................................10
3.1.1 门感应传感器的选择.........................................10
3.1.2 防夹人传感器的选择.........................................11
3.1.3 位置检测传感器的选择.......................................11
3.2 动力装置的选择.................................................12
3.2.1 电机的功率选择.............................................12
3.2.2 电机的转速选择.............................................12
3.2.3 电机的选型.................................................12
3.3 变频器的选择...................................................14
3.3.1 变频器介绍.................................................14
3.3.2 变频器选型.................................................15
3.4 电器元件的选择.................................................16
3.4.1 按钮的选用.................................................16
3.4.2 行程开关的选用.............................................17
3.5 电气控制系统设计...............................................18
3.5.1 控制方式选择...............................................18
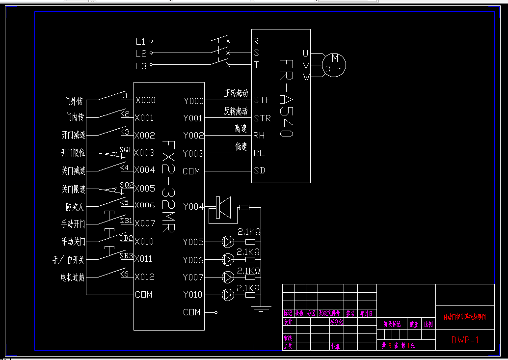
3.5.2 电气控制系统组成及原理.....................................18
3.6 PLC 的硬件设计.................................................19
3.6.1 PLC 系统组成与工作原理.....................................19
3.6.2 PLC 选型...................................................20
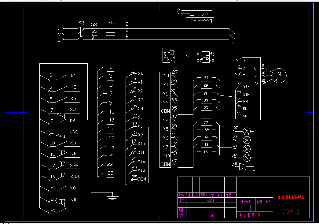
3.6.3 PLC的I/O 地址及外部接线...................................22
3.6.4 PLC 抗干扰措施.............................................24
4 控制系统的软件设计.................................................25
4.1 三菱PLC常用控制指令...........................................25
4.2 控制系统流程...................................................27
4.3 梯形图程序的编制...............................................29
5 结论...............................................................32
谢辞.................................................................33
参考文献.............................................................34
附录.................................................................35
外文资料.............................................................36
温馨提示:
1、题目前面的备注【字母数字编号】为本站整理分类的编号,与课题内容无关,请选题时忽视;
2、若题目上备注三维,则表示文件里包含三维源文件,由于三维组成零件数量较多,为保证预览截图的简洁性,本站将三维文件夹进行了打包。三维及CAD预览截图,均为本站电脑打开软件进行截图的,保证能够打开,下载原件超高清,下载后解压即可;
3、本站所有资源如无特殊说明,都需要本地电脑安装Office2007。图纸软件为AutoCAD,PROE,UG,SolidWorks,CATIA等;
4、本站所有图文资料仅供用户学习参考,不作为任何商用或其他用途;
5、本站不保证下载资源的准确性、安全性和完整性, 不包修改,不支持退换,同时也不承担用户因使用这些下载资源对自己和他人造成任何形式的伤害或损失;
6、 下载文件中如有侵权或不适当内容,请与我们联系,我们立即纠正。