

作品包括:
Word版设计说明书1份,共89页,约36000字
开题报告一份
PPT答辩一份
CAD版本图纸,共8张
![1750928153947588.png MQ800$H793M~NF9T4]NCBAL.png](/uploadfiles/20250626/1750928153947588.png)
摘 要
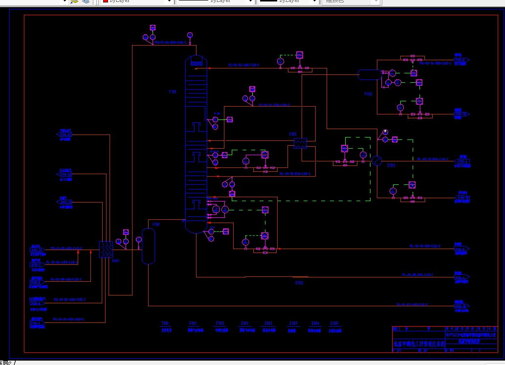
低温甲醇洗工艺以甲醇作为吸收剂,在低温下选择性吸收合成气体中的酸性气体杂 质。低温甲醇洗工艺吸收力强,-60 oC 下甲醇对于酸性气体有很高的溶解度和选择性, 净化程度高、甲醇消耗量小、操作费用低,在生产中具有经济优势。
本课题主要研究内容是是 50 万吨/年煤气化制甲醇净化工段低温甲醇洗工艺设计。 本设计的目的是将来自变换装置的原料气气精制。本设计采用 AspenPlus 软件对其生产 过程和主要设备进行了物料衡算、塔设备计算、换热器设计、热量衡算等工艺设计和计 算。绘制了包括工艺流程图、塔设备装备图、车间布置图和总厂区布置图等图纸 8 张, 并进行了安全环保和经济评价。
关键词:物料衡算;低温甲醇洗;热量衡算;AspenPlus
目 录
摘要 I
目录 III
1 绪论 1
1.1 项目介绍 1
1.2 可行性研究 2
1.3 工艺比较 2
1.4 生产方案 3
2 厂址选择和布局 4
2.1 厂址选择 4
2.2 厂区概况 4
2.3 厂区布局 6
3 原料、产品规格 7
3.1 原料概述 7
3.2 甲醇的理化性质 7
3.3 甲醇的用途 8
3.4 反应影响因素 8
4 计算任务 10
4.1 原料气组成 10
4.2 流程模拟 10
4.3 物料衡算 10
4.4 热量衡算 16
5 设备选型 21
5.1 E103 冷却器选型 21
5.2 换热器选型 21
5.3 塔设备选型 29
5.4 塔高计算 35
5.6 主要管道计算 36
5.7 泵选型 37
6 经济概算 38
6.1 概述 38
6.2 项目投资估算及资金来源 38
6.3 财务评价 39
7 环境评价 44
7.1 主要污染源及污染物 44
7.2 环境保护措施 44
8 安全技术评价 45
8.1 有毒物质的预防 45
8.2 车间安全要求 46
参考文献 47
翻译部分 49
专题 67
温馨提示:
1、题目前面的备注【字母数字编号】为本站整理分类的编号,与课题内容无关,请选题时忽视;
2、若题目上备注三维,则表示文件里包含三维源文件,由于三维组成零件数量较多,为保证预览截图的简洁性,本站将三维文件夹进行了打包。三维及CAD预览截图,均为本站电脑打开软件进行截图的,保证能够打开,下载原件超高清,下载后解压即可;
3、本站所有资源如无特殊说明,都需要本地电脑安装Office2007。图纸软件为AutoCAD,PROE,UG,SolidWorks,CATIA等;
4、本站所有图文资料仅供用户学习参考,不作为任何商用或其他用途;
5、本站不保证下载资源的准确性、安全性和完整性, 不包修改,不支持退换,同时也不承担用户因使用这些下载资源对自己和他人造成任何形式的伤害或损失;
6、 下载文件中如有侵权或不适当内容,请与我们联系,我们立即纠正。