

作品包括:
Word版设计说明书1份
任务书一份
开题报告一份
外文翻译一份
CAD版本图纸,共4张
摘要
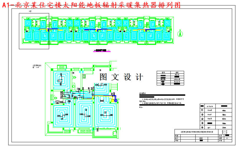
本设计主要介绍了北京市某住宅楼的太阳能地板辐射采暖系统的设计计算,涉及到的主要内容包括各楼层的热负荷计算,热水供暖系统的水力计算以及主要设备的选型、供暖系统的控制原理和经济性分析等。热负荷计算包括建筑物的采暖热负荷和生活热水的热负荷。水力计算包括各段管道流量和流速的计算,沿程和局部损失的计算。主要设备有集热器、保温水箱、电加热设备。
温馨提示:
1、题目前面的备注【字母数字编号】为本站整理分类的编号,与课题内容无关,请选题时忽视;
2、若题目上备注三维,则表示文件里包含三维源文件,由于三维组成零件数量较多,为保证预览截图的简洁性,本站将三维文件夹进行了打包。三维及CAD预览截图,均为本站电脑打开软件进行截图的,保证能够打开,下载原件超高清,下载后解压即可;
3、本站所有资源如无特殊说明,都需要本地电脑安装Office2007。图纸软件为AutoCAD,PROE,UG,SolidWorks,CATIA等;
4、本站所有图文资料仅供用户学习参考,不作为任何商用或其他用途;
5、本站不保证下载资源的准确性、安全性和完整性, 不包修改,不支持退换,同时也不承担用户因使用这些下载资源对自己和他人造成任何形式的伤害或损失;
6、 下载文件中如有侵权或不适当内容,请与我们联系,我们立即纠正。