

作品包括:
Word版设计说明书1份,共48页,约7000字
任务书一份
开题报告一份
外文翻译一份
CAD版本图纸,共4张
![1750859442278235.png 34)`FAELTUXO$XM6]`]QO76.png](/uploadfiles/20250625/1750859442278235.png)
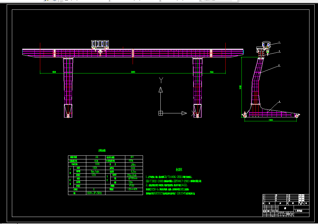
摘要: 在现代机械设备中,L型单梁门式起重机是其重要的组成部分。其组成部分包括主梁、支腿梁。由于支腿成L型,所以被称为L型起重机。
设计采用:应力法。其中包括以下三个方面来计算:刚度、稳定性、强度。主要有以下三个步骤:1.对起重机的各方面结构尺寸进行预估计,然后对刚度、稳定性、强度、疲劳强度这几方面进行预计算;2.在满足了对材料的要求后,做出其结构总图。3.校算门架的刚度和强度。
关键词:L型起重机;应力; 疲劳强度;稳定性。
目 录
摘要…………………………………………………………………………………Ⅰ
Abstract……………………………………………………………………………Ⅱ
目录…………………………………………………………………………………Ⅲ
1.100T L型单梁门式起重机的设计数据 1
2.总体设计 2
1. 主梁尺寸 3
2. 支腿尺寸 3
3. 整体尺寸如下图所示 3
3.主梁设计计算 4
3.1.主梁参数的确定 4
3.1.1.主梁尺寸 4
3.1.2. 截面几何性质 5
3.2.主梁载荷计算 6
3.2.1. 静载荷计算 6
3.2.2. 移动载荷计算 7
3.2.3. 小车制动时的惯性力 7
3.2.4. 大车制动时的惯性力 8
3.2.5. 风载荷计算 9
3.2.6. 主梁扭转载荷 10
3.3.垂直平面内的主梁内力计算 11
3.3.1. 主梁均布载荷引起的内力 11
3.3.2. 移动载荷引起的主梁内力 11
3.4.水平平面内的主梁内力计算 12
3.4.1. 小车位于跨中时 12
3.4.2. 小车位于悬臂端时 13
3.5.主梁验算 14
3.5.1. 弯曲应力验算 14
3.5.2. 主梁疲劳强度校核 16
3.5.3. 主梁稳定性校核 17
3.5.4. 主梁拱度验算 21
4.支腿设计计算 23
4.1. 支腿参数确定 23
4.2. 门架平面内的内力计算 24
4.2.1. 由主梁均布载荷产生的内力 24
4.2.2. 由移动载荷产生的内力 25
4.2.3. 由风载荷产生的内力 25
4.3. 支腿平面内的支腿内力计算 26
4.3.1. 垂直载荷作用在支腿平面 26
4.3.2. 水平载荷作用在支腿顶部 26
4.3.3. 风载荷载荷作用在支腿平面 26
4.4. 支腿验算 27
4.4.1. 支腿强度验算 28
4.4.2. 支腿稳定性验算 29
5.下横梁设计计算 30
6.螺栓连接设计计算 33
6.1.主梁接头处螺栓连接强度校核 33
6.2.支腿和下横梁螺栓连接强度校核 35
7.整机抗倾覆性计算 37
致谢 38
参考文献 39
温馨提示:
1、题目前面的备注【字母数字编号】为本站整理分类的编号,与课题内容无关,请选题时忽视;
2、若题目上备注三维,则表示文件里包含三维源文件,由于三维组成零件数量较多,为保证预览截图的简洁性,本站将三维文件夹进行了打包。三维及CAD预览截图,均为本站电脑打开软件进行截图的,保证能够打开,下载原件超高清,下载后解压即可;
3、本站所有资源如无特殊说明,都需要本地电脑安装Office2007。图纸软件为AutoCAD,PROE,UG,SolidWorks,CATIA等;
4、本站所有图文资料仅供用户学习参考,不作为任何商用或其他用途;
5、本站不保证下载资源的准确性、安全性和完整性, 不包修改,不支持退换,同时也不承担用户因使用这些下载资源对自己和他人造成任何形式的伤害或损失;
6、 下载文件中如有侵权或不适当内容,请与我们联系,我们立即纠正。