

作品包括:
Word版设计说明书1份,共42页,约13000字
任务书一份
开题报告一份
外文翻译一份
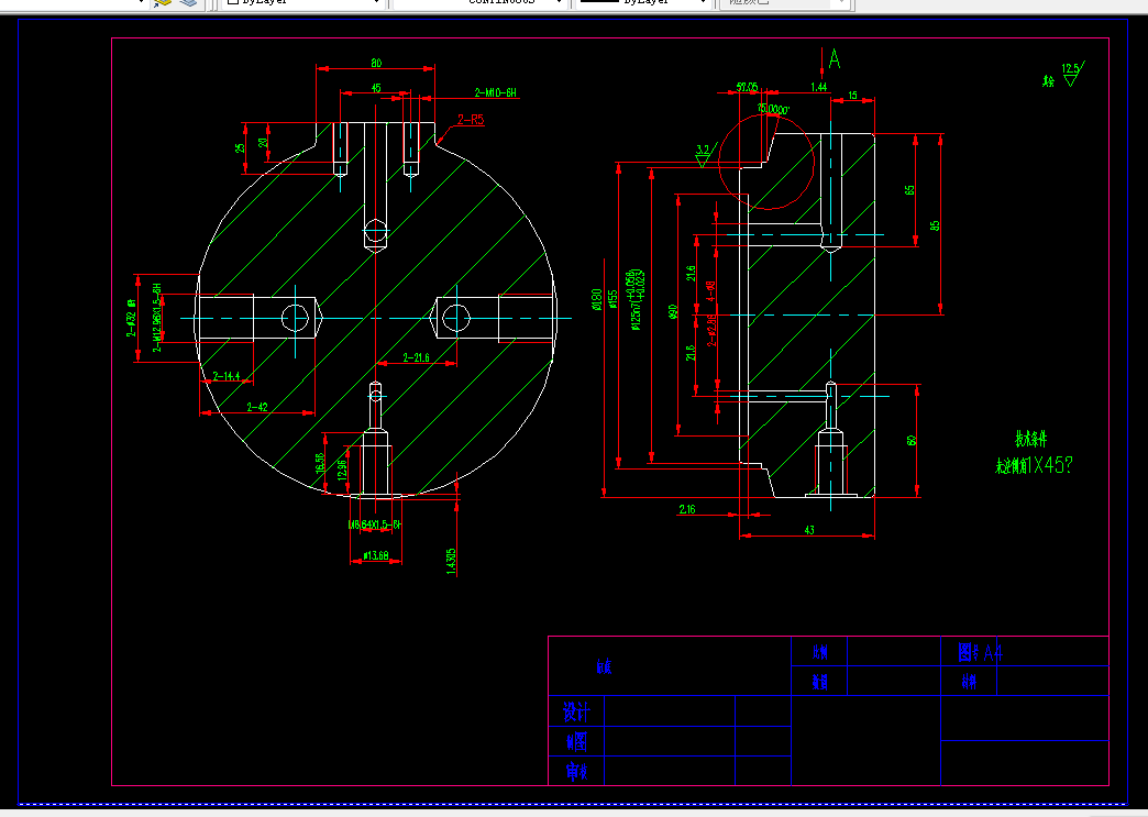
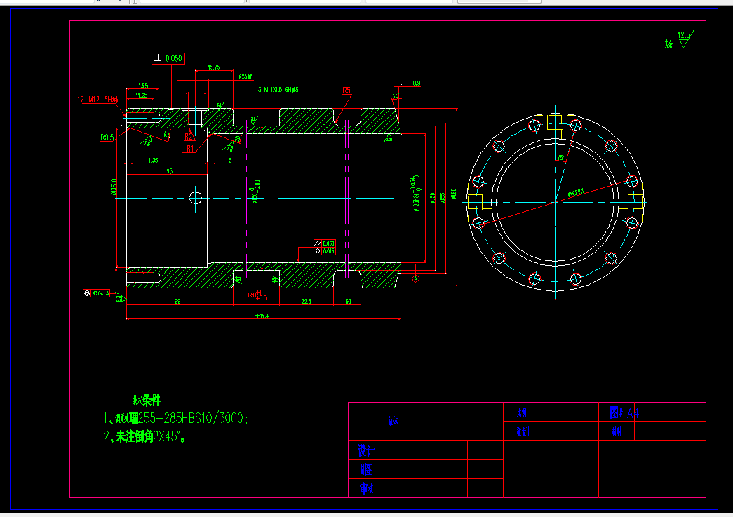
CAD版本图纸,共9张

摘要
压滤机是利用多孔性过滤介质,拦截混合固体颗粒的液体和固体颗粒,实现固体和液体分离的设备。压滤机广泛应用于化工、石油、制药、轻工、食品、选矿、煤炭和水处理等。目前,现有数百个大型压滤机制造商。为了满足产业发展的需求,市场上已经出现了各种不同的类型压滤机。根据获得过滤的推动力不同,分为重力过滤,真空过滤机和三种类型的压滤机。板框压滤机压紧方式有手动压缩、机械压缩和液压三种形式。正在开发一种新型的过滤设备有:机械力压过滤设备;实现无动态过滤滤饼层;洗煤废水处理、化工和石油等行业大型过滤设备。设计的手工板框过滤机。它的优点是结构简单,容易制造,过滤面积大,占地面积小,操作压力高、能力强的各种材料的应用,主要用于小企业,小批量生产。
目录
绪论 1
1 板框压滤机 2
1.1板框压滤机的起源 2
1.2板框压滤机的简介及分类 2
1.3板框压滤机的结构 2
1.4板框压滤机的工作原理 2
2 板框压滤机液压系统的设计步骤与设计要求 4
2.1 设计步骤 4
2.2 明确设计要求 4
3 制定基本方案和绘制液压系统图 5
3.1制定基本方案 5
3.2 绘制液压系统图 7
4 液压元件的选择与专用件设计 9
4.1 液压泵的选择 9
4.2 液压阀的选择 11
4.3 蓄能器的选择 11
4.4 管道尺寸的确定 12
4.5 油箱容量的确定 13
5 液压系统性能验算 14
5.1 液压系统压力损失 14
5.2 液压系统的发热温升计算 15
5.2.1 计算液压系统的发热功率 15
5.2.2 计算液压系统的散热功率 17
5.2.3 根据散热要求计算油箱容量 19
5.3 计算液压系统冲击压力 20
6 设计液压装置,编制技术文件 23
6.1 液压装置总体布局 23
6.2 液压阀的配置形式 23
6.3 集成块设计 23
7 进行工况分析、确定液压系统的主要参数 25
7.1 载荷的组成和计算 25
7.1.1 液压缸的载荷组成与计算 25
7.1.2 液压马达载荷力矩的组成与计算 27
7.2 初选系统工作压力 28
7.3 计算液压缸的主要结构尺寸和液压马达的排量 29
8 液压系统的一般使用与维护 34
参考文献 35
致谢 37
温馨提示:
1、题目前面的备注【字母数字编号】为本站整理分类的编号,与课题内容无关,请选题时忽视;
2、若题目上备注三维,则表示文件里包含三维源文件,由于三维组成零件数量较多,为保证预览截图的简洁性,本站将三维文件夹进行了打包。三维及CAD预览截图,均为本站电脑打开软件进行截图的,保证能够打开,下载原件超高清,下载后解压即可;
3、本站所有资源如无特殊说明,都需要本地电脑安装Office2007。图纸软件为AutoCAD,PROE,UG,SolidWorks,CATIA等;
4、本站所有图文资料仅供用户学习参考,不作为任何商用或其他用途;
5、本站不保证下载资源的准确性、安全性和完整性, 不包修改,不支持退换,同时也不承担用户因使用这些下载资源对自己和他人造成任何形式的伤害或损失;
6、 下载文件中如有侵权或不适当内容,请与我们联系,我们立即纠正。