

作品包括:
Word版设计说明书1份
开题报告一份
外文翻译一份
CAD版本图纸,共9张
摘要
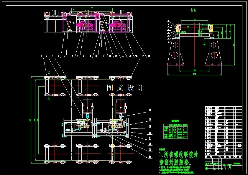
本次设计为五菱微车主减速器设计,原始设计参数采用的是五菱之光2015款1.2L实用型LSI,设计主要内容包括主减速器类型的选择与计算,差速器的设计,轴和轴承的选用,配合及计算校核,半轴以及主减速器壳体的尺寸设计,计算与校核。主减速器是驱动桥中很重要的组成部分,通过改变从发动机传送出的转矩,并且传送给汽车车轮的方式,起到增加扭矩,降低转速的作用,可以说是整个传动系统的灵魂。所以设计主减速器对于整个汽车设计都是非常重要的一环,也能够帮助设计者更好的了解整个汽车驱动桥的结构乃至整个底盘的设计结构。设计过程中要大胆构思,边学习边设计,需要注意的是充分考虑到设计的合理性,要符合所要求的工作环境,强度,寿命等,通过选择合适的传动形式,布置方式,材料,零件类型等,来满足设计需求,也要使设计图纸与计算数据相一致。同时也应秉承环保,节能的思想,符合目前中国工业的大形势和大环境的同时,尽量做出较为新颖的设计。
温馨提示:
1、题目前面的备注【字母数字编号】为本站整理分类的编号,与课题内容无关,请选题时忽视;
2、若题目上备注三维,则表示文件里包含三维源文件,由于三维组成零件数量较多,为保证预览截图的简洁性,本站将三维文件夹进行了打包。三维及CAD预览截图,均为本站电脑打开软件进行截图的,保证能够打开,下载原件超高清,下载后解压即可;
3、本站所有资源如无特殊说明,都需要本地电脑安装Office2007。图纸软件为AutoCAD,PROE,UG,SolidWorks,CATIA等;
4、本站所有图文资料仅供用户学习参考,不作为任何商用或其他用途;
5、本站不保证下载资源的准确性、安全性和完整性, 不包修改,不支持退换,同时也不承担用户因使用这些下载资源对自己和他人造成任何形式的伤害或损失;
6、 下载文件中如有侵权或不适当内容,请与我们联系,我们立即纠正。