

作品包括:
Word版设计说明书1份,共30页,约11000字
任务书一份
外文翻译一份
CAD版本图纸,共13张

目 次
1 绪论 1
1.1 收线机的概述: 1
1.2 收线机发展现状及趋势 1
2 收线机类型 3
2.1 立式收线机 3
2.2 卧式收线机 3
3 排线类型及排线器的选取 4
3.1 等角度排线 4
3.2 等排距排线 4
3.3 排线器的种类 4
3.4 排线器能实现的功能分析 5
4 收线机的方案论证及分析 7
4.1 电机的类型及其选择 7
4.2 力矩电机 7
4.3 电磁调速电机 8
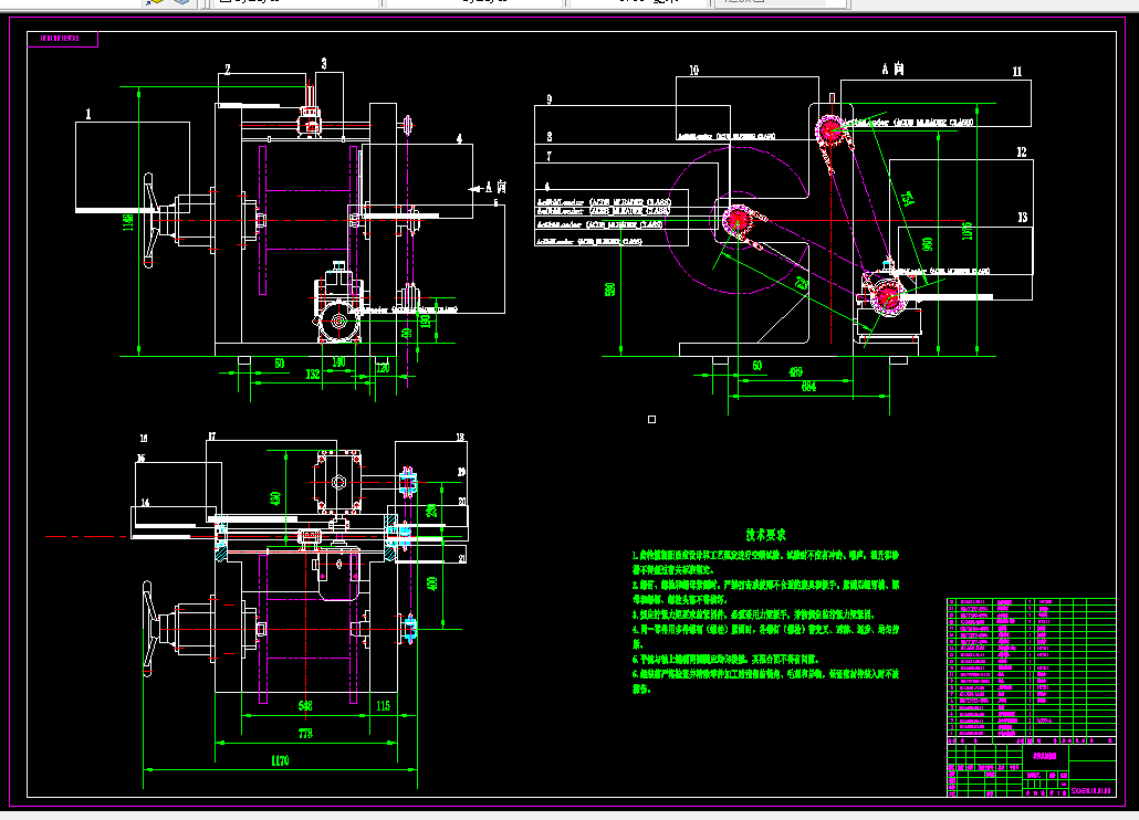
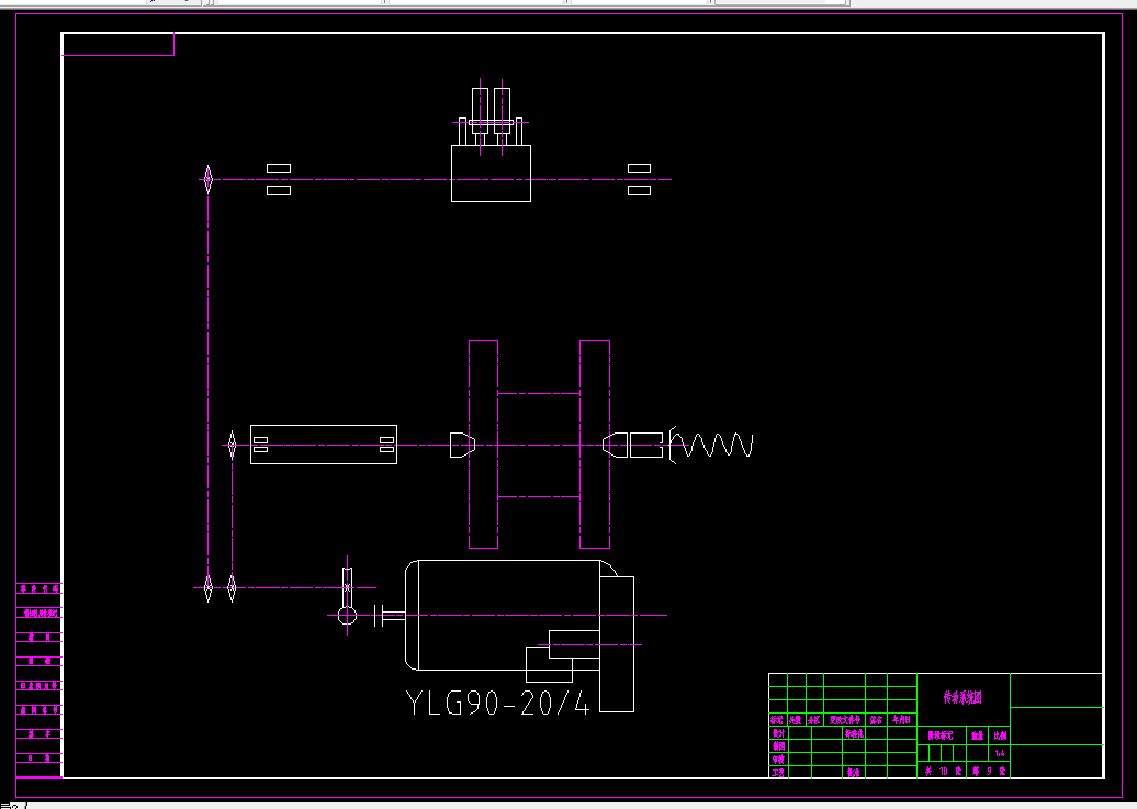
5 传动方案的选择 9
5.1 传动方案一 9
5.2 传动方案二 10
6 收线部分的设计计算 12
6.1 收线机恒张力控制 12
6.2 确定设计的要求 13
6.3 主轴A的设计 16
6.4 力矩电机的选择 22
6.5 链传动的设计 23
7 机架的设计 25
设计总结 26
致 谢 27
参 考 资 料 28
温馨提示:
1、题目前面的备注【字母数字编号】为本站整理分类的编号,与课题内容无关,请选题时忽视;
2、若题目上备注三维,则表示文件里包含三维源文件,由于三维组成零件数量较多,为保证预览截图的简洁性,本站将三维文件夹进行了打包。三维及CAD预览截图,均为本站电脑打开软件进行截图的,保证能够打开,下载原件超高清,下载后解压即可;
3、本站所有资源如无特殊说明,都需要本地电脑安装Office2007。图纸软件为AutoCAD,PROE,UG,SolidWorks,CATIA等;
4、本站所有图文资料仅供用户学习参考,不作为任何商用或其他用途;
5、本站不保证下载资源的准确性、安全性和完整性, 不包修改,不支持退换,同时也不承担用户因使用这些下载资源对自己和他人造成任何形式的伤害或损失;
6、 下载文件中如有侵权或不适当内容,请与我们联系,我们立即纠正。