

作品包括:
Word版说明书1份,共55页,约25000字
CAD版本图纸,共7张

摘 要
液压系统是目前挖掘机必不可少的组成部分,液压系统通过改变压强增大作用力来工作。完整的液压系统包括:动力元件、执行元件、控制元件、辅助元件和液压油。挖掘机的工作环境复杂多变,所以对于液压系统提出了很高的设计要求。
在搜集国内外液压系统相关资料的基础上,了解其发展过程,分析总结了液压挖掘机的技术发展动态,了解液压挖掘机液压系统的结构。液压挖掘机由多个系统组成,包括液压系统、传动系统、操纵系统、发动机、油箱、转台等等。本设计致力于挖掘机的液压系统的设计。
关键词: 液压系统 液压挖掘机 液压元件
目录
1绪论 1
1.1引言 1
1.2国内外的发展趋势 2
1.2.1 国内发展趋势 2
1.2.2 国外发展趋势 2
1.2.3 挖掘机发展趋势 3
1.3 本课题的目的和意义 4
1.4 本设计研究的主要内容 4
2液压挖掘机结构与工作原理 4
2.1液压挖掘机组成的系统 5
2.1.1 动力系统 5
2.1.2 液压系统 5
2.1.3 机械系统 5
2.1.4 控制系统 5
2.2液压挖掘机结构 5
2.2.1 液压挖掘机组成 6
2.2.2 单斗反铲液压挖掘机 6
2.2.3 液压挖掘机工作循环过程 7
2.3液压挖掘机传动原理 7
2.4液压挖掘机的工况 7
2.4.1 挖掘工况分析 8
2.4.2 挖掘机液压系统的设计要求 9
2.4.3 满斗举升回斗工况分析 10
2.4.4卸载工况分析 10
2.4.5 空斗返回工况分析 11
2.5挖掘机液压系统的设计要求 11
2.5.1 动力性要求 12
2.5.2操纵性要求 12
2.5.3节能性要求 12
2.5.4安全性要求 12
2.5.5其它性能要求 13
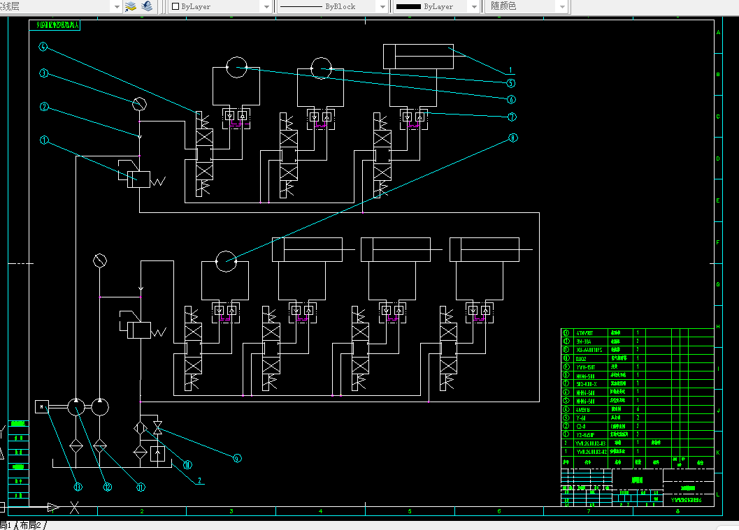
2.6工作原理图介绍 13
2.7总体方案的构思与选择 13
2.8系统主参数的确定 15
2.8.1 确定系统的工作压力 15
2.8.2 确定元件类型 16
3液压系统的设计 16
3.1 确定油缸所受的作用力 16
3.1.1 铲斗油缸作用力的分析 17
3.1.2 斗杆油缸作用的确定 18
3.1.3 动臂油缸作用力分析 19
3.2动臂液压缸的设计计算 20
3.2.1 液压缸缸筒的设计 20
3.2.2 液压缸缸盖及导向套的设计 22
3.2.3 液压缸缸头的设计 24
3.2.4 活塞杆的设计及其强度校核 25
3.2.5 活塞的设计 26
3.2.6 缸筒长度的确定 27
3.2.7 缸头的结构设计 28
3.2.8 活塞杆长度的确定 29
3.2.9 液压缸油口尺寸的确定 30
3.3各缸设计参数 31
3.3.1 斗杆液压缸的设计参数 31
3.3.2 铲斗液压缸的设计参数 31
3.3.3 动臂液压缸的设计参数 31
3.4液压缸推力和流量的计算 31
3.4.1 液压缸推力计算 31
3.4.2 液压缸的输出功率 32
3.4.3 液压缸流量 32
4 液压泵与马达的选用 32
4.1 液压泵的流量计算 33
4.2 液压缸动作所需流量 33
4.3 行走机构所需流量 33
4.4 回转机构所需流量 35
4.5 液压泵的选择 36
5 液压泵站设计及液压附件的选取 37
5.1液压阀的选取 37
5.1.1 换向阀 37
5.1.2 溢流阀 37
5.1.3 单向阀 37
5.1.4 液压管路及其连接 38
5.2液压泵站的设计 39
5.2.1 油箱的设计与计算 39
5.2.2 过滤器 40
5.2.3 发动机的选择 40
5.2.4 联轴器和减速器 42
5.2.5 空气滤清器的选择 42
5.2.6 压力表的选择 42
6 液压系统性能验算 42
6.1液压系统的发热功率 42
6.2液压系统的散热功率 44
6.3液压系统压力损失 45
6.3.1 沿程压力损失 45
6.3.2 局部压力损失 45
7 液压系统的安装和维护 46
7.1 液压元件的安装 46
7.2 液压元件的维护 47
8总结与展望 48
8.1 总结 48
8.2 展望 49
参考文献 49
致 谢 50
温馨提示:
1、题目前面的备注【字母数字编号】为本站整理分类的编号,与课题内容无关,请选题时忽视;
2、若题目上备注三维,则表示文件里包含三维源文件,由于三维组成零件数量较多,为保证预览截图的简洁性,本站将三维文件夹进行了打包。三维及CAD预览截图,均为本站电脑打开软件进行截图的,保证能够打开,下载原件超高清,下载后解压即可;
3、本站所有资源如无特殊说明,都需要本地电脑安装Office2007。图纸软件为AutoCAD,PROE,UG,SolidWorks,CATIA等;
4、本站所有图文资料仅供用户学习参考,不作为任何商用或其他用途;
5、本站不保证下载资源的准确性、安全性和完整性, 不包修改,不支持退换,同时也不承担用户因使用这些下载资源对自己和他人造成任何形式的伤害或损失;
6、 下载文件中如有侵权或不适当内容,请与我们联系,我们立即纠正。