

作品包括:
Word版说明书1份,共73页,约29000字
开题报告一份
外文翻译一份
CAD版本图纸,共6张

摘 要
目前,随着我国煤炭事业的发展,掘进机逐渐显示出其重要的地位。在煤矿事业中悬臂式掘进机使用较多。因此本文特别针对悬臂式部分断面掘进机进行了设计和研究。
本文主要研究方向分为两大部分,一部分是掘进机的总体方案的确定,另一部分是掘进机液压系统及其部分元件的设计。总体方案确定部分主要对掘进机的总体结构进行了分析和研究,确定了掘进机的主要外形尺寸以及各部分的工作形式,并且对掘进机的静态稳定性进行了详细的计算;液压系统设计部分则首先对液压系统的回路、元件、工作原理等进行了详细的分析、选型和研究,之后对其液压缸、溢流阀以及油箱进行了具体的设计。
本次设计,我对掘进机的总体结构、液压原理、元件等进行了详细的研究,对掘进机有了较深的了解。
关键词:掘进机;总体方案;液压系统
目 录
前言 1
1绪论 3
1.1悬臂式掘进机简介 3
1.2 现代掘进机发展的趋势 3
1.2.1提高对硬岩切割能力 3
1.2.2发展自动控制技术 4
1.2.3发展掘进机组 5
1.3 国外掘进设备及综掘技术发展现状 5
1.3.1半煤岩巷道掘进机普遍推广 5
1.3.2机器的可靠性高 6
1.3.3采用机电一体化技术 6
1.4 我国内掘进设备的发展及存在的问题 6
1.4.1 我国悬臂式掘进机的科研成果 6
1.4.2 我国悬臂式掘进机技术发展展望 6
1.4.3 我国掘进机目前存在的问题 7
1.5悬臂式掘进机的基本组成 7
2掘进机总体设计 9
2.2掘进机总体设计任务 9
2.2.1掘进机工作机构的型式选取 9
2.2.2掘进机装载机构的型式选取 10
2.2.3掘进机输送机构的型式选取 10
2.2.4掘进机转运机构的型式选取 11
2.2.5掘进机行走机构的型式选取 11
2.2.6掘进机除尘装置的型式选取 11
2.3掘进机总体布置 12
2.3.1掘进机总体布置的原则 12
2.3.2掘进机总体布置的内容 12
2.3.3掘进机具体要求和注意事项 13
2.4掘进机各部组成及工作原理 13
2.5掘进机总体参数确定 15
2.5.1掘进机整体部分参数的确定 15
2.5.2掘进机截割部分参数确定 16
2.5.3掘进机行走机构基本参数的确定 19
2.5.4掘进机铲板的主要参数确定 20
2.5.5掘进机总体部分主要技术参数如下 21
2.5.6掘进机总体部分的装配图 22
3掘进机静态稳定性计算 23
3.1掘进机静态稳定性计算 23
3.1.1掘进机行走时的静态稳定性计算 23
3.1.2掘进机截割时的静态稳定性计算 24
4掘进机液压系统设计部分 28
4.1掘进机液压系统设计依据 28
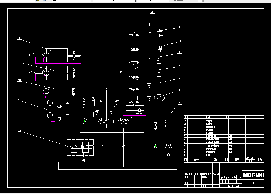
4.2掘进机液压系统的基本组成部分 29
4.3掘进机液压系统的主要回路分析 29
4.4掘进机拟定液压系统 30
4.4.1掘进机初选系统压力 30
4.5掘进机液压元件的选用 30
4.5.1掘进机液压泵的选用 30
4.5.2掘进机液压马达的选用 31
4.5.3掘进机液压阀的选用 31
4.5.4掘进机液压缸的选用 32
4.6掘进机确定调速方式 32
4.7掘进机回路循环方式选择 33
4.8掘进机的液压系统原理图 33
4.9掘进机主要液压元件在系统中的作用 33
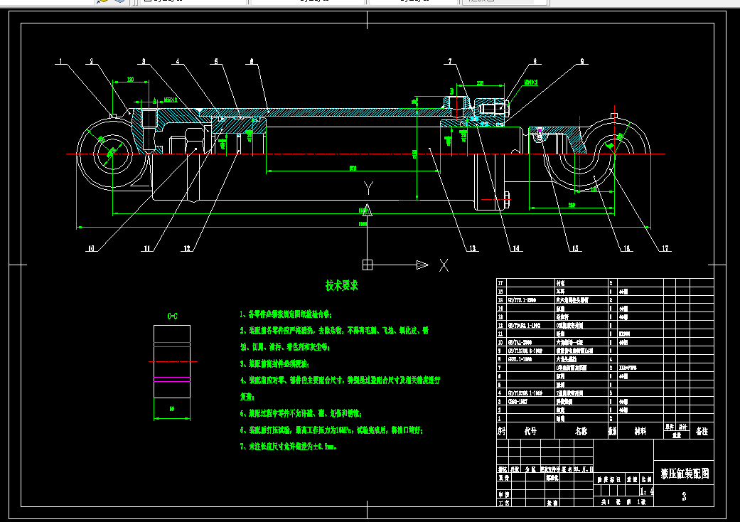
5掘进机液压缸的设计 35
5.1掘进机切割机构升降液压缸的主要尺寸确定 35
5.2掘进机切割机构升降液压油缸结构型式的确定 42
5.2.1掘进机缸体与缸盖的联结形式 42
5.2.2掘进机活塞杆与活塞的连接结构 42
5.2.3掘进机活塞杆的导向与密封及防尘装置 42
5.2.4掘进机杆用(缸体用)耳环结构 42
5.3掘进机切割机构升降液压缸强度的计算 43
5.3.1掘进机油缸强度计算 43
5.3.2掘进机油缸稳定性验算 44
5.3.3掘进机连接零件的强度计算 45
5.4掘进机截割伸缩液压缸的主要尺寸确定 47
6技术经济分析 51
7结论 53
致谢 54
参考文献 55
附录A 56
附录B 64
温馨提示:
1、题目前面的备注【字母数字编号】为本站整理分类的编号,与课题内容无关,请选题时忽视;
2、若题目上备注三维,则表示文件里包含三维源文件,由于三维组成零件数量较多,为保证预览截图的简洁性,本站将三维文件夹进行了打包。三维及CAD预览截图,均为本站电脑打开软件进行截图的,保证能够打开,下载原件超高清,下载后解压即可;
3、本站所有资源如无特殊说明,都需要本地电脑安装Office2007。图纸软件为AutoCAD,PROE,UG,SolidWorks,CATIA等;
4、本站所有图文资料仅供用户学习参考,不作为任何商用或其他用途;
5、本站不保证下载资源的准确性、安全性和完整性, 不包修改,不支持退换,同时也不承担用户因使用这些下载资源对自己和他人造成任何形式的伤害或损失;
6、 下载文件中如有侵权或不适当内容,请与我们联系,我们立即纠正。