

作品包括:
Word版设计说明书1份,共28页,约7700字
CAD版本图纸,共4张

摘要
题目:Z3040钻床工作台X向进给系统设计 任务:设计一种供Z3040钻床使用的数控钻台 主要参数如下: 1)钻头最大直径d=40mm; 2)加工材料为灰铸铁190HBW; 3)X方向的脉冲当量δ=0.005mm/step; 4)X方向的定位精度为±0.01mm; 5)工作台面尺寸为400mm×360mm; 6)工作台空载最快移动速度 3000mm/min; 7)加工时最快进给移动速度400mm/min;
目 录
一、设计任务 2
二、总体方案确定 2
1.机械传动部件的选择 2
2.控制系统的设计 3
三、机械传动部件的计算与选型 4
1.导轨上移动部件的重量估算 4
2.切削力的计算 4
3.直线滚动导轨副的计算与类型 5
4.滚珠丝杆螺母副的计算与选型 6
5.步进电动机减速箱的选用 12
6.步进电动机的计算与选型 12
四、绘制进给传动机构的装配图 19
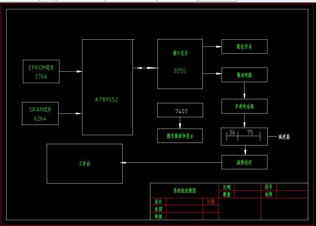
五、控制系统的设计 20
(1)控制系统的原理框图 20
(2)简介 20
(3)应用 24
六、步进电动机驱动电源的选用 27
七、附图 28
八、参考文献 28
温馨提示:
1、题目前面的备注【字母数字编号】为本站整理分类的编号,与课题内容无关,请选题时忽视;
2、若题目上备注三维,则表示文件里包含三维源文件,由于三维组成零件数量较多,为保证预览截图的简洁性,本站将三维文件夹进行了打包。三维及CAD预览截图,均为本站电脑打开软件进行截图的,保证能够打开,下载原件超高清,下载后解压即可;
3、本站所有资源如无特殊说明,都需要本地电脑安装Office2007。图纸软件为AutoCAD,PROE,UG,SolidWorks,CATIA等;
4、本站所有图文资料仅供用户学习参考,不作为任何商用或其他用途;
5、本站不保证下载资源的准确性、安全性和完整性, 不包修改,不支持退换,同时也不承担用户因使用这些下载资源对自己和他人造成任何形式的伤害或损失;
6、 下载文件中如有侵权或不适当内容,请与我们联系,我们立即纠正。