

作品包括:
Word版设计说明书1份
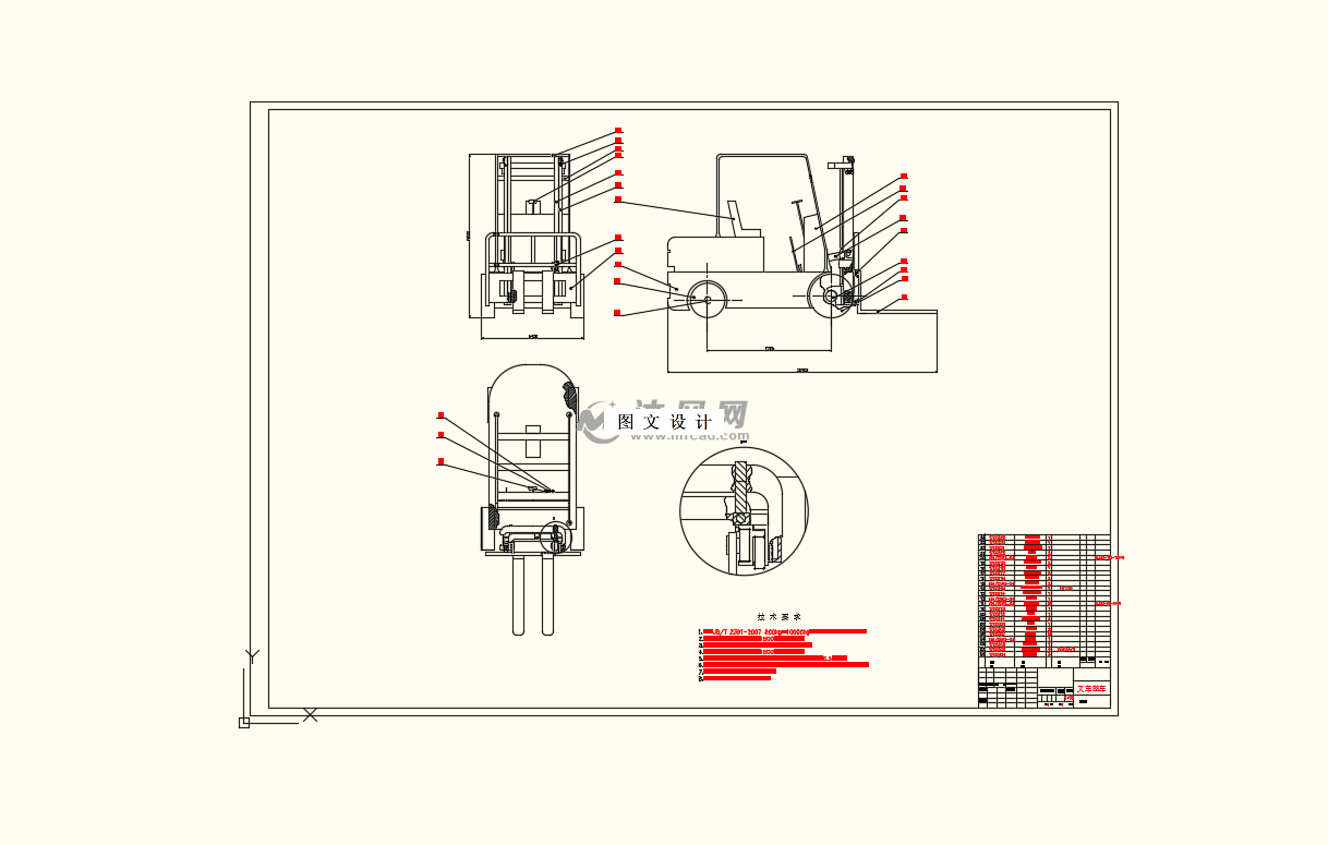
CAD版本图纸,共9张
Proe三维图一套
摘要
随着我国运输业及物流行业的快速发展,对于叉车的需求也是日益增加,中国已经成为叉车的一大重要市场。但是现存于我国市面上的叉车大部分仍是内燃叉车,电动叉车只能占据一小部分市场。随着近些年国家对于环境保护愈来愈加重视,内燃叉车的缺点暴露了出来。因为以内燃机作为动力装置,内燃叉车的体积一般笨重,灵活性差,且使用过程中会产生有害气体,噪音大,不符合环保理念。而平衡重式电动叉车驾驶员的工作相对轻松许多。由电信号来控制其叉车的行驶、转向及制动等操作。操作非常简单,,使得驾驶员的劳动强度得到了有效的缓解。因此,如何对平衡重式电动叉车的底盘加以设计和改进,使其具有良好的性能,发挥其更大的优势,缓解内燃叉车带来的污染问题,对国家的绿色发展战略有重大意义。本课题研究平衡重式电动叉车的整车构造及底盘设计,对叉车的行驶系统、制动系统、转向系统等进行计算校核,确定设计方案。之后运用AutoCAD、Pro/E等软件对电动平衡叉车进行二维图纸及三维模型的绘制,接下来利用Pro/E软件具有的仿真功能对设计产品进行装配,添加约束,进行动画仿真,以此来验证设计的可行性。
温馨提示:
1、题目前面的备注【字母数字编号】为本站整理分类的编号,与课题内容无关,请选题时忽视;
2、若题目上备注三维,则表示文件里包含三维源文件,由于三维组成零件数量较多,为保证预览截图的简洁性,本站将三维文件夹进行了打包。三维及CAD预览截图,均为本站电脑打开软件进行截图的,保证能够打开,下载原件超高清,下载后解压即可;
3、本站所有资源如无特殊说明,都需要本地电脑安装Office2007。图纸软件为AutoCAD,PROE,UG,SolidWorks,CATIA等;
4、本站所有图文资料仅供用户学习参考,不作为任何商用或其他用途;
5、本站不保证下载资源的准确性、安全性和完整性, 不包修改,不支持退换,同时也不承担用户因使用这些下载资源对自己和他人造成任何形式的伤害或损失;
6、 下载文件中如有侵权或不适当内容,请与我们联系,我们立即纠正。