

作品包括:
Word版设计说明书1份
CAD版本图纸,共18张
摘要
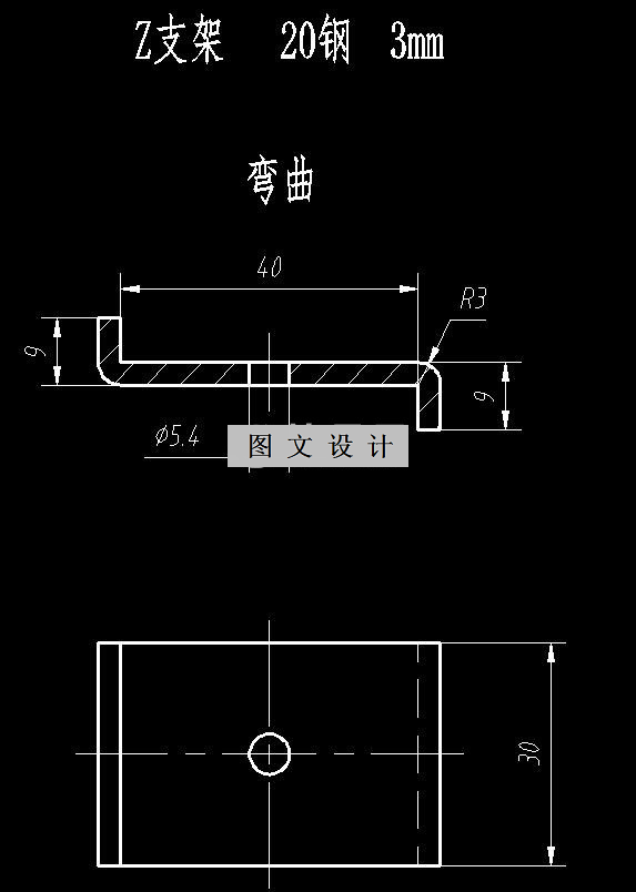
本模具涉及的是落料冲孔和弯曲工序的加工,落料,冲孔和弯曲是冷冲压极为重要的几道工序,在多数冷冲压中是从材料到成品工件不可缺少的工序。本文主要介绍了Z支架落料冲孔模和弯曲模模具的设计过程,按照冲压设计的常规流程,因此本次设计首先进行Z支架进行工艺分析,分析材料选择的合理性,加工精度的敲定,所加工的冲压件结构上的特点,基于对工件的分析为冲压设计方案打下的基础,来给出几种可能的方案,结合工件本身的特点来选择一种方案生产,接着进行工艺计算,来对于冲压设计过程的一些冲裁力和工件利用率以及核心部件确定零部件的尺寸和压力机的选择提供理论基础,最后进行装备图的绘制和零部件的绘制,汇总理论分析和冲压制图结合写一份完整的冲压说明书。
温馨提示:
1、题目前面的备注【字母数字编号】为本站整理分类的编号,与课题内容无关,请选题时忽视;
2、若题目上备注三维,则表示文件里包含三维源文件,由于三维组成零件数量较多,为保证预览截图的简洁性,本站将三维文件夹进行了打包。三维及CAD预览截图,均为本站电脑打开软件进行截图的,保证能够打开,下载原件超高清,下载后解压即可;
3、本站所有资源如无特殊说明,都需要本地电脑安装Office2007。图纸软件为AutoCAD,PROE,UG,SolidWorks,CATIA等;
4、本站所有图文资料仅供用户学习参考,不作为任何商用或其他用途;
5、本站不保证下载资源的准确性、安全性和完整性, 不包修改,不支持退换,同时也不承担用户因使用这些下载资源对自己和他人造成任何形式的伤害或损失;
6、 下载文件中如有侵权或不适当内容,请与我们联系,我们立即纠正。