 
		

作品包括:
Word设计说明书1份
CAD版本图纸,共22张
摘要
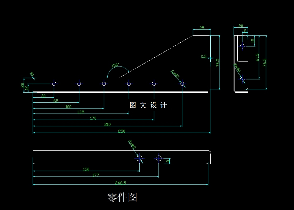
在进行冲压模具设计的时候,这次选定的具体是实现烤炉后侧板作用的一个零件,完成烤炉后侧板的模具设计,在进行设计的时候,首先就是需要对所进行加工的产品有一个比较严谨的分析过程,分析的内容包括本身的工艺要求,相关的尺寸等等,还有就是完成分析之后,要考虑到在进行讲过的时候排样的问题,这部分考虑的内容包括有对于冲裁力的需求,还有对于冲裁零部件的相关计算等等,完成这些之后,就需要对整个图纸进行绘制,完成这些工作之后,还需要考虑到后续的安装的一些问题,确保整个模具在安装的时候,能够符合相关的要求,这些流程都完成之后,才算是整体完成了设计的过程
温馨提示:
1、题目前面的备注【字母数字编号】为本站整理分类的编号,与课题内容无关,请选题时忽视;
2、若题目上备注三维,则表示文件里包含三维源文件,由于三维组成零件数量较多,为保证预览截图的简洁性,本站将三维文件夹进行了打包。三维及CAD预览截图,均为本站电脑打开软件进行截图的,保证能够打开,下载原件超高清,下载后解压即可;
3、本站所有资源如无特殊说明,都需要本地电脑安装Office2007。图纸软件为AutoCAD,PROE,UG,SolidWorks,CATIA等;
4、本站所有图文资料仅供用户学习参考,不作为任何商用或其他用途;
5、本站不保证下载资源的准确性、安全性和完整性, 不包修改,不支持退换,同时也不承担用户因使用这些下载资源对自己和他人造成任何形式的伤害或损失;
6、 下载文件中如有侵权或不适当内容,请与我们联系,我们立即纠正。