

作品包括:
Word设计说明书1份
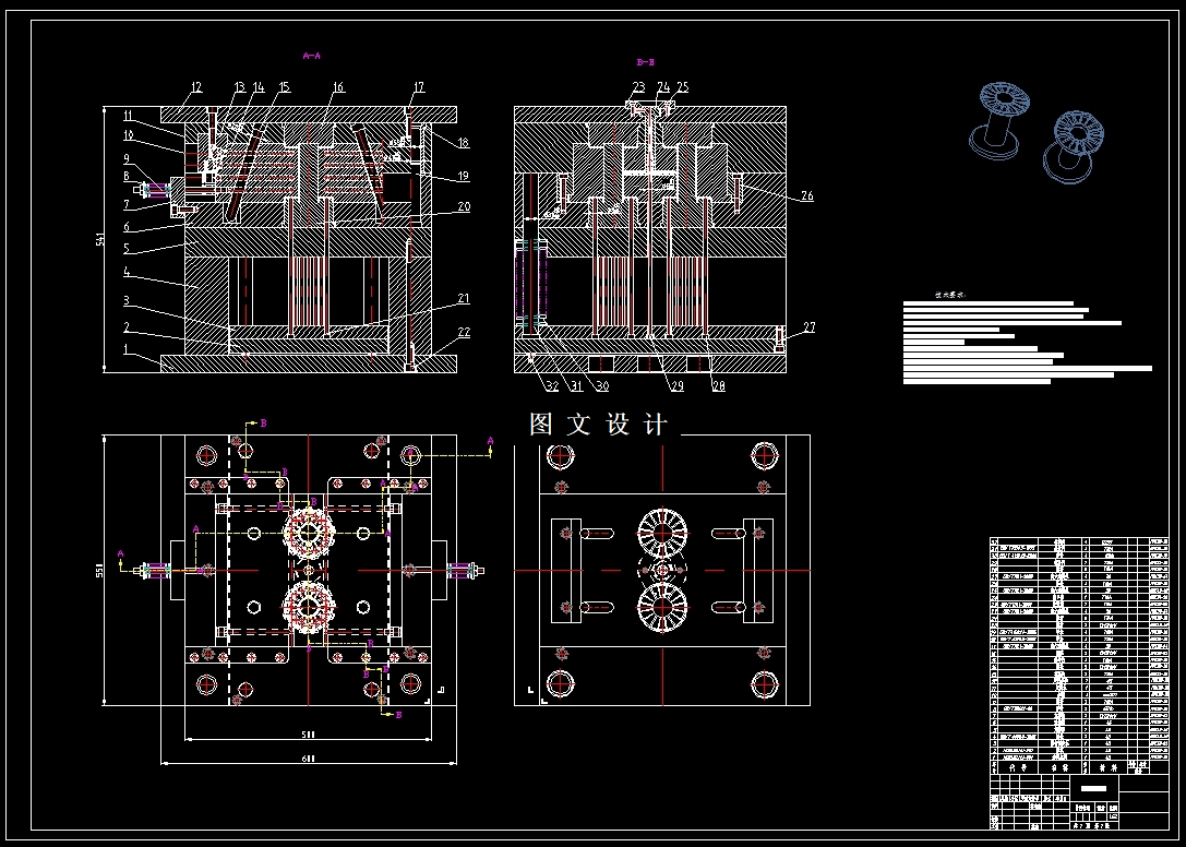
CAD版本图纸,共9张
UG三维图一份
摘要
电磁器件小型化趋势下的关键组件革新需求:在电子信息产业蓬勃发展的当下,各类电磁器件正朝着小型化、轻量化、高集成度的方向迅猛发展。线圈作为电磁器件的核心部件,其性能直接影响着整个器件的效率和应用范围。而线圈座作为线圈的支撑和固定部件,其重要性不言而喻。随着电磁器件不断缩小体积,线圈座的微型化、精密化设计成为了亟待攻克的技术难题。 本次设计主要内容为成型线圈座设计一套塑料模具方案,首先对成型线圈座结构的进行简单的分析,然后为生产线圈座选择ABS材质。本次模具设计的型腔数目为一模两腔结构,模架结构为单分型面大水口模架,然后对模具的浇注系统、脱模机构、侧向抽芯机构、冷却系统进行了设计,成型零件设计中型芯、型腔采用整体式结构。浇注系统采用侧浇口浇注进胶形式。脱模机构采用推杆对产品进行了推出,冷却系统设计了U形模具冷却水道。分型面选在了产品底面最大轮廓处,最后对所选 HTF250J/TJ注射机进行了相关参数的校核。
温馨提示:
1、题目前面的备注【字母数字编号】为本站整理分类的编号,与课题内容无关,请选题时忽视;
2、若题目上备注三维,则表示文件里包含三维源文件,由于三维组成零件数量较多,为保证预览截图的简洁性,本站将三维文件夹进行了打包。三维及CAD预览截图,均为本站电脑打开软件进行截图的,保证能够打开,下载原件超高清,下载后解压即可;
3、本站所有资源如无特殊说明,都需要本地电脑安装Office2007。图纸软件为AutoCAD,PROE,UG,SolidWorks,CATIA等;
4、本站所有图文资料仅供用户学习参考,不作为任何商用或其他用途;
5、本站不保证下载资源的准确性、安全性和完整性, 不包修改,不支持退换,同时也不承担用户因使用这些下载资源对自己和他人造成任何形式的伤害或损失;
6、 下载文件中如有侵权或不适当内容,请与我们联系,我们立即纠正。