

作品包括:
Word版说明书1份,共29页,约12000字
CAD版本图纸,共5张
摘 要
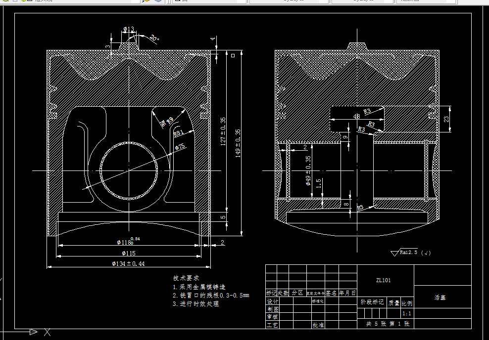
本设计分为两个部分:第一部分首先对柴油机活塞的工作环境、结构特点以及技术要求进行了分析,之后参考相关表
格敲定了柴油机活塞的加工工艺规程,主要包括:生产纲领与生产类型的确定、材料和毛坯的选择、加工余量的确定、
每道工序切削用量的确定、基本工时的计算、工艺过程卡与工序卡的填写;第二部分包含两套专用夹具,粗镗销孔夹具
和钻油孔夹具的设计,内容主要包括:定位方案设计、夹紧装置设计、对定装置设计、分度装置设计、夹具的工作原理
。经过深入地分析和论证,活塞的工艺设计和夹具设计是可行的。
关键词:活塞;工序;加工余量;机床夹具;机械加工工艺
目 录
第1章 绪论 1
第2章 活塞的工艺分析 2
2.1 活塞的结构特点 2
2.2 活塞的技术要求 3
第3章 活塞的生产纲领与生产类型 5
第4章 活塞的材料及毛坯制造 6
4.1 材料的选择 6
4.2 毛坯的选择 6
第5章 拟定工艺路线 8
5.1 定位基准的选择 8
5.2 表面加工方法的确定 8
5.3 加工阶段的划分 10
5.4 工序集中程度的确定 10
5.5 工序顺序的安排 10
第6章 机械加工余量、工序尺寸及毛坯尺寸的确定 13
6.1 加工余量的确定方法 13
6.2 毛坯尺寸的确定 13
6.3 加工余量的确定 13
6.4 工序尺寸的确定 14
6.5 公差的确定 15
第7章 工艺装备的选择 17
7.1 机床的选择 17
7.2 刀具的选择 18
7.3 量具的选择 18
7.4 夹具的选择 19
第8章 切削用量的计算 21
8.1 外圆的加工 21
8.2 端面的加工 22
8.3 止口的加工 23
8.4 环槽的加工 24
8.5 销孔卡环槽的加工 25
8.6 销孔的加工 25
8.7 油孔的加工 27
8.8 气门内、外槽的加工 28
8.9 椭圆裙部的加工 28
第9章 基本工时的计算 30
9.1 工序1:粗车外圆 30
9.2 工序2:车端面 30
9.3 工序3:粗车止口 30
9.4 工序4:粗镗销孔 31
9.5 工序5:半精车外圆 31
9.6 工序6:粗车环槽 31
9.7 工序7:钻斜油孔 32
9.8 工序8:钻直油孔 32
9.9 工序9:半精车止口、打中心孔 32
9.10 工序10:半精车环槽及其倒角 33
9.11 工序11:精车外圆 33
9.12 工序12:半精镗销孔 33
9.13 工序13:精镗销孔 34
9.14 工序14:车卡环槽 34
9.15 工序15:精磨椭圆裙部 34
9.16 工序16:铣气门内槽 35
9.17 工序17:铣气门外槽 35
9.18 工序18:金刚镗销孔 35
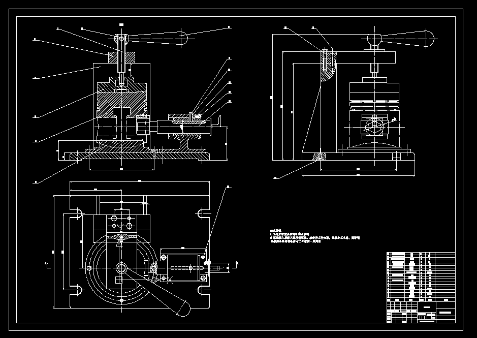
第10章 粗镗削孔夹具设计 37
10.1 定位方案设计 37
10.2 夹紧装置设计 37
10.3 对定装置设计 39
10.4 其它夹具元件的选取 39
10.5 夹具体的设计 40
10.6 粗镗削孔夹具工作原理 40
第11章 钻油孔夹具设计 42
11.1 定位方案设计 42
11.2 导向装置设计 42
11.3 夹紧装置设计 42
11.4 分度装置设计 43
11.5 其它夹具元件的选取 43
11.6 夹具体的设计 44
11.7 钻油孔夹具的工作原理 44
第12章 结论 46
参 考 文 献 4
温馨提示:
1、题目前面的备注【字母数字编号】为本站整理分类的编号,与课题内容无关,请选题时忽视;
2、若题目上备注三维,则表示文件里包含三维源文件,由于三维组成零件数量较多,为保证预览截图的简洁性,本站将三维文件夹进行了打包。三维及CAD预览截图,均为本站电脑打开软件进行截图的,保证能够打开,下载原件超高清,下载后解压即可;
3、本站所有资源如无特殊说明,都需要本地电脑安装Office2007。图纸软件为AutoCAD,PROE,UG,SolidWorks,CATIA等;
4、本站所有图文资料仅供用户学习参考,不作为任何商用或其他用途;
5、本站不保证下载资源的准确性、安全性和完整性, 不包修改,不支持退换,同时也不承担用户因使用这些下载资源对自己和他人造成任何形式的伤害或损失;
6、 下载文件中如有侵权或不适当内容,请与我们联系,我们立即纠正。