

作品包括:
Word设计说明书1份
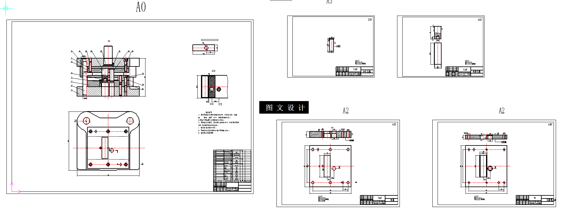
CAD版本图纸,共10张
摘要
仪表连接片是一种常用的五金件,由于其本身的特殊性,导致了仪表连接片冲裁时精度难以保证,设计中,我们采用特殊的结构来完成仪表连接片五金件的冲裁。仪表连接片采用Q235钢制作而成,厚度为3mm,仪表连接片零件上有一个圆孔,圆孔的最小直径为20mm,还有L形弯曲工序。所以仪表连接片可以采用较简单的级进冲裁模和弯曲模。级进冲裁模采用多工序同时加工,级进冲裁模加工的精度较高且仪表连接片要求无翘曲无扭曲。所以选择级进模。本论文从凹模开始设计,选择模架,设计凸模,再算其他模具零件尺寸。 工件仪表连接片的设计流程:首先我们进行工艺分析,通过工艺分析我们对工件仪表连接片零件的结构和材料以及工序有个基本的了解,然后设计出合适的方案。方案设计完成以后,需要我们对模具的设计进行计算,计算一般包括排样图利用率计算,冲压力的计算,还有模具工作尺寸的计算等。基本的理论计算完成后,我们对模具的总体结构进行把握,通过分析总结完成本次模具的最终设计,然后通过图纸表达出模具的结构,完成零件图进行加工。
关键词:仪表连接片冲孔 冲裁模 工艺 模具设计
温馨提示:
1、题目前面的备注【字母数字编号】为本站整理分类的编号,与课题内容无关,请选题时忽视;
2、若题目上备注三维,则表示文件里包含三维源文件,由于三维组成零件数量较多,为保证预览截图的简洁性,本站将三维文件夹进行了打包。三维及CAD预览截图,均为本站电脑打开软件进行截图的,保证能够打开,下载原件超高清,下载后解压即可;
3、本站所有资源如无特殊说明,都需要本地电脑安装Office2007。图纸软件为AutoCAD,PROE,UG,SolidWorks,CATIA等;
4、本站所有图文资料仅供用户学习参考,不作为任何商用或其他用途;
5、本站不保证下载资源的准确性、安全性和完整性, 不包修改,不支持退换,同时也不承担用户因使用这些下载资源对自己和他人造成任何形式的伤害或损失;
6、 下载文件中如有侵权或不适当内容,请与我们联系,我们立即纠正。