

作品包括:
Word设计说明书1份
CAD版本图纸,共8张
SW三维图一套
摘要
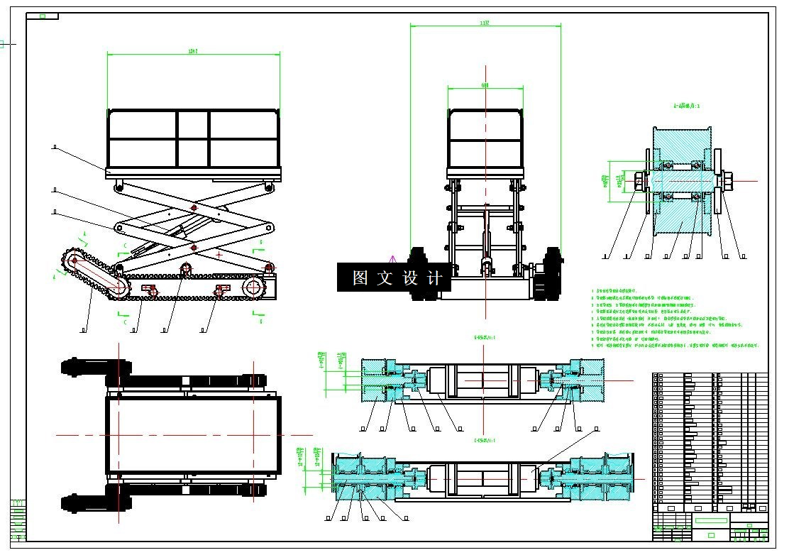
室内装修升降平台是一种用于室内装修的设备,可实现自动升降和装修的功能。这种设备通常由电动升降机、装修机、控制系统等组成。在市场上,有许多厂家生产室内装修升降平台,价格和型号也各不相同。一般来说,室内装修升降平台的操作简单,工作效率高,能够大大减少人工成本,提高装修质量和效率。室内装修升降平台是一种方便、高效、安全的设备,适用于几乎所有室内装修场合。然而市场上大都数装修升降平台都采用轮式移动底座,在平地上它可以灵活移动,但在没有电梯的步梯环境下,移动困难;考虑到这个因素,本设计将采用履带式移动底座来克服爬楼困难,实现便捷爬楼。
温馨提示:
1、题目前面的备注【字母数字编号】为本站整理分类的编号,与课题内容无关,请选题时忽视;
2、若题目上备注三维,则表示文件里包含三维源文件,由于三维组成零件数量较多,为保证预览截图的简洁性,本站将三维文件夹进行了打包。三维及CAD预览截图,均为本站电脑打开软件进行截图的,保证能够打开,下载原件超高清,下载后解压即可;
3、本站所有资源如无特殊说明,都需要本地电脑安装Office2007。图纸软件为AutoCAD,PROE,UG,SolidWorks,CATIA等;
4、本站所有图文资料仅供用户学习参考,不作为任何商用或其他用途;
5、本站不保证下载资源的准确性、安全性和完整性, 不包修改,不支持退换,同时也不承担用户因使用这些下载资源对自己和他人造成任何形式的伤害或损失;
6、 下载文件中如有侵权或不适当内容,请与我们联系,我们立即纠正。