

作品包括:
Word版说明书1份,共65页,约19000字
外文翻译一份
CAD版本图纸,共3张
摘 要
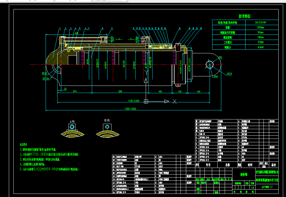
本文对国内外放顶煤开采技术发生历史及现状进行了综合阐述,对放顶煤液压支架进行了分类和对其各种形式研究;介绍了每种形式放顶煤液压支架各适应的煤层条件;并结合神东四盘区的现状,设计适用于煤层厚度5.35-9.86,平均采高8.9米满足顶板、地板条件的放顶煤液压支架.形成满足神东现状的放顶煤开采技术理论。
通过对现有放顶煤液压支架的分析,优势对比,设计出适合的结构形式,最后对立柱、顶梁、掩护梁和底座进行了强度校核计算。
关键字:放顶煤液压支架;立柱;顶梁;掩护梁;底座;放煤机构。
目 录
1 绪论 1
1.1 放顶煤综采法的优缺点 1
1.2 放顶煤液压支架的发展历史 1
1.3 放顶煤液压支架结构的基本特点 2
1.4 放顶煤液压支架的分类 2
1.5放顶煤液压支架使用条件和适用范围 2
1.6设计任务 3
2 支架的总体方案设计 4
2.1 支架结构方案设计 4
2.1.1 中反四连杆放顶煤液压支架 4
2.1.2 中正四连杆低位放顶煤液压支架 5
2.1.3后四连杆低位放顶煤液压支架(摆动式放煤支架) 6
3 液压支架的整体设计 9
3.1液压支架的参数确定 9
3.1.1 支架高度 9
3.1.2 支架的伸缩比 9
3.1.3 支架间距的确定 10
3.1.4 底座长度的确定 11
3.2顶梁长度的确定 11
3.2.1 顶梁长度计算 11
3.2.2 顶梁宽度 12
3.2.3 顶梁覆盖率 13
3.2.4支护强度和工作阻力 13
3.3立柱位置的确定 14
3.3.1 支架立柱数的确定 14
3.3.2 支撑方式 15
3.3.3 立柱间距 15
3.3.4 立柱柱窝位置的确定 15
4 液压支架的部件结构设计 16
4.1 顶梁 16
4.2 立柱 17
4.3掩护梁 18
4.4 四连杆机构 19
4.4.1 四连杆机构的作用 19
4.4.2四连杆机构的几何特征 19
4.4.3用几何作图法来设计四连杆机构 19
4.5 底座 24
4.6侧护板 25
4.7 千斤顶 26
4.7.1 推移千斤顶 26
4.7.2 平衡千斤顶 26
4.7.3 侧推千斤顶 26
4.7.4.前梁千斤顶 27
4.7.5.护邦千斤顶 27
4.7.6 后推移输送机千斤顶 27
4.8 放煤机构设计 30
5 液压支架参数的确定 32
5.1液压支架基本技术参数的确定 32
5.1.1支护强度 32
5.1.2初撑力 32
5.1.3 移架力和推溜力 33
5.1.4 支柱及相关液压系统参数确定 33
6 支架强度校核 37
6.1强度条件 37
6.2 液压支架立柱强度验算 39
6.2.1已知参数 39
6.2.2油缸稳定性计算 39
6.2.3活塞杆的强度计算 40
6.2.4 缸体的强度计算 43
6.2.5液压支架主要技术参数 44
6.3顶梁强度校核 45
6.4掩护梁的强度校核 51
总结 56
致 谢 57
参考文献 58
附录A 60
附录B 65
温馨提示:
1、题目前面的备注【字母数字编号】为本站整理分类的编号,与课题内容无关,请选题时忽视;
2、若题目上备注三维,则表示文件里包含三维源文件,由于三维组成零件数量较多,为保证预览截图的简洁性,本站将三维文件夹进行了打包。三维及CAD预览截图,均为本站电脑打开软件进行截图的,保证能够打开,下载原件超高清,下载后解压即可;
3、本站所有资源如无特殊说明,都需要本地电脑安装Office2007。图纸软件为AutoCAD,PROE,UG,SolidWorks,CATIA等;
4、本站所有图文资料仅供用户学习参考,不作为任何商用或其他用途;
5、本站不保证下载资源的准确性、安全性和完整性, 不包修改,不支持退换,同时也不承担用户因使用这些下载资源对自己和他人造成任何形式的伤害或损失;
6、 下载文件中如有侵权或不适当内容,请与我们联系,我们立即纠正。