

作品包括:
说明书一份,共48页,约19000字
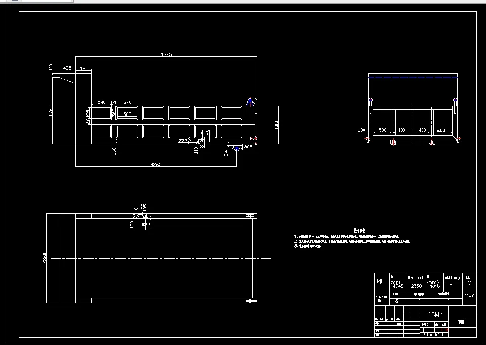
CAD版本图纸,共8张
摘 要
自卸车,是指通过液压或机械举升而自行卸载货物的车辆。由自卸车底盘、举升机构总成、液压系统总成、锁紧机构总成、大箱总成5大块组成。本次设计主要包含有车厢,取力器,液压缸,整车布置等内容。选择本课题充分考虑了研究课题对车辆工程专业学生学习和工作的指导作用,能够使我们了解专用汽车改装设计方法,通过本课题的研究我们可以完成理论课程的实践总结,获得一定的工程设计工作方法和经验。进行相关的设计,可以解决供需矛盾,培养正确的研究方法、理论联系实际的工作作风、严肃求实的学习态度,锻炼使用工具软件的能力,提高综合设计的能力这次设计为我们了解专用车带来了很大的好处,通过设计我们知道了专用车的结构形式和举升样式等知识,对我们以后的工作有很大的益处。
关键词:东风自卸车;自卸车;专用汽车;专用车设计;举升机构;液压系统;
目 录
摘要
Abstract Ⅱ
第1章 绪论 3
1.1 课题的提出 3
1.2 专用汽车设计特点 5
1.3课题的实际意义 6
1.4 国内外自卸汽车的发展概况 7
第2章 轻型自卸车主要性能参数的选择 10
2.1整车尺寸参数的确定 10
2.2质量参数的确定 10
2.3其它性能参数 12
2.4本章小结 12
第3章 自卸车车厢的结构与设计 13
3.1 自卸汽车车厢的结构形式 13
3.1.1车厢的结构形式 13
3.1.2车厢选材 14
3.2车厢的设计规范及尺寸确定 14
3.2.1车厢尺寸设计 15
3.2.2车厢内框尺寸及车厢质量 16
3.3车厢板的锁启机构 17
3.4 本章小结 17
第4章 自卸举升机构的设计 18
4.1自卸举升机构的选择 18
4.1.1举升机构的类型 18
4.1.2自卸汽车倾卸机构性能比较 21
4.2举升机构运动与受力分析及参数选择 23
4.2.1机构运动分析 23
4.2.2举升机构受力分析与参数选择 24
4.3本章小结 26
第5章 液压系统设计 27
5.1液压系统工作原理与结构特点 27
5.1.1工作原理 27
5.1.2液压系统结构布置 28
5.1.3 液压分配阀 28
5.2油缸选型与计算 29
5.3油箱容积与油管内径计算 30
5.4取力器的设计 31
5.5本章小结 32
第6章 副车架的设计 33
6.1副车架的截面形状及尺寸 33
6.2副车架前段形状及位置 33
6.2.1 副车架的前端形状及安装位置 33
6.2.2 纵梁与横梁的连接设计 35
6.2.3 副车架与主车架的连接设计 36
6.3副车架主要尺寸参数设计计算 37
6.3.1副车架主要尺寸设计 37
6.3.2副车架的强度刚度弯曲适应性校核 37
6.4本章小结 44
结论 45
参考文献 46
致谢 47
温馨提示:
1、题目前面的备注【字母数字编号】为本站整理分类的编号,与课题内容无关,请选题时忽视;
2、若题目上备注三维,则表示文件里包含三维源文件,由于三维组成零件数量较多,为保证预览截图的简洁性,本站将三维文件夹进行了打包。三维及CAD预览截图,均为本站电脑打开软件进行截图的,保证能够打开,下载原件超高清,下载后解压即可;
3、本站所有资源如无特殊说明,都需要本地电脑安装Office2007。图纸软件为AutoCAD,PROE,UG,SolidWorks,CATIA等;
4、本站所有图文资料仅供用户学习参考,不作为任何商用或其他用途;
5、本站不保证下载资源的准确性、安全性和完整性, 不包修改,不支持退换,同时也不承担用户因使用这些下载资源对自己和他人造成任何形式的伤害或损失;
6、 下载文件中如有侵权或不适当内容,请与我们联系,我们立即纠正。