

作品包括:
说明书一份,共35页,约9200字
CAD版本图纸,共19张
目 录
摘 要 1
ABSTRACT 2
第一章 绪论 3
1.1产品分析及国内外发展现状 3
1.2课题分析 5
1.2.1设计内容及要求 5
1.2.2设计方法及技术路线 6
第二章 方案拟定 7
2.1拟定整体方案 7
2.2机械部件方案拟定 10
2.3控制系统方案拟定 14
第三章 机械部件设计计算 15
3.1电动机 15
3.1.1电机的选择和计算 15
3.2 V型带 18
3.2.1 V型带的计算 18
3.2.2选取带型 18
3.2.3确定带轮的基准直径 18
3.2.4验算带的速度 19
3.2.5确定V带长度和中心距 19
3.2.6计算小轮包角 20
3.2.7确定V带根数 20
3.2.8计算作用在轴上的压力 21
3.2.9带轮结构设计 21
3.3 圆锯机主轴 22
3.3.1材料选择 22
3.3.2轴的结构设计 22
3.3.3轴的强度校核 22
3.3.4轴的刚度校核 25
3.4 轴承 26
3.4.1轴承的选择 26
3.4.2轴承的校核 26
3.5 键的选择 26
3.6 润滑与密封 27
3.6.1 轴承的润滑 27
3.6.2 轴承密封的选择 27
第四章 CAD图纸 28
4.1整体装配图 28
4.2主轴装配图 28
第五章 设计小结 30
致谢 31
参考文献 32
摘 要
木工机械是家具、建材及装修等行业的基础。而木材圆盘切割锯更是木材加工生产过程中必不可少的机械设备,在各种木材加工厂随处可见。
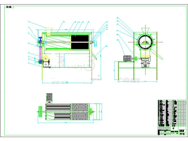
圆盘锯又叫圆锯机,是应用很广泛的木工机械,他是由床身、工作台和锯轴组成。大型圆锯机座必须安装在结实可靠的基础上,小型的可以直接安放在地面上,工作台的高度约900mm。锯轴安装在机座的轴承内,锯轴的转动一般用皮带传动,但新式的机床都用电动机直接带动。有些圆锯机的工作台能够倾斜45°角,比较新式的圆锯机的工作台,始终保持水平,但是锯片能够自动倾斜,这不仅对工作带来了很大的方便,而且也比较安全。
本课题就是设计一台木材圆盘切割锯,用来进行木材的粗加工过程中的切割。该圆盘锯机主要由机架、工作台、锯轴、切削刀片、导尺、传动机构和安全装置等结构组成。本文通过比较,确定了最终设计方案,针对木材圆盘切割锯的结构及其特点要求进行了设计与说明,确定单侧皮带轮传动的运动方式。然后圆盘锯主轴的截面特性,并对主轴和支架的强度、刚度进行了校核验算。以保证所设计的木材圆盘切割锯满足使用要求。
关键词:木材圆盘锯切割锯 锯片 皮带轮传动 主轴 机架 电机
温馨提示:
1、题目前面的备注【字母数字编号】为本站整理分类的编号,与课题内容无关,请选题时忽视;
2、若题目上备注三维,则表示文件里包含三维源文件,由于三维组成零件数量较多,为保证预览截图的简洁性,本站将三维文件夹进行了打包。三维及CAD预览截图,均为本站电脑打开软件进行截图的,保证能够打开,下载原件超高清,下载后解压即可;
3、本站所有资源如无特殊说明,都需要本地电脑安装Office2007。图纸软件为AutoCAD,PROE,UG,SolidWorks,CATIA等;
4、本站所有图文资料仅供用户学习参考,不作为任何商用或其他用途;
5、本站不保证下载资源的准确性、安全性和完整性, 不包修改,不支持退换,同时也不承担用户因使用这些下载资源对自己和他人造成任何形式的伤害或损失;
6、 下载文件中如有侵权或不适当内容,请与我们联系,我们立即纠正。