

作品包括:
word版本说明书一份,共45页,约13000字
CAD版本图纸,共20张
摘 要
纸张裁剪机是一种通用的设备,应用范围非常广泛,几乎每个印刷企业都要配置纸张裁剪机,纸张裁剪机在印刷机械产品中占重要的地位。随着社会的进步和科学的发展,造纸业、印刷业对纸张裁剪机提出了更高要求。该文针对国内纸张裁剪机只能单方向剪裁、只能剪裁固定尺寸纸张的缺陷,将横向剪裁与纵向剪裁分开,从纵向滚刀的安装方式和横刀的剪裁时间控制为突破口,设计了一种可以纵横双向剪裁、可以按照商家要求剪裁可变尺寸纸张的纸张裁剪机。用于从事商标、名片和各种印刷制品的剪裁工作。该纸张裁剪机结构简单、动作简洁快速,全套工作流程由PLC控制,具有剪裁质量高,生产效率高的优点。整个设计过程详细论证了其原理方案的可行性和机构的合理性,结构设计全用先进的CATIA软件造型、装配,真实地展示了整个系统的结构尺寸和工作原理。在设计过程中,通过对实际应用产品的设计,增强了对所学专业知识的掌握,提高了对设计思想理念的理解和实际运用能力,同时培养了自己独立完成设计任务的能力,认识到了严谨的工作态度对设计产品质量的重要作用。当然,在本设计中,仍然存在许多不完善的地方,在以后的设计中会加以借鉴,逐步改进。
关键词:变尺寸;双向剪裁;CATIA软件;纸张裁剪机
目 录
摘 要 1
Abstract 2
第一章.前言 1
1.1 纸张裁剪机的简介 1
1.2 纸张裁剪机国内外情况介绍 1
1.2.1 国内情况 1
1.2.2 进口情况 2
1.3 纸张裁剪机市场前景 2
1.4 纸张裁剪机的发展趋势 3
第二章.可调尺寸纸张裁剪机原理方案的设计 4
2.1 现有纸张裁剪机的结构原理分析 4
2.1.1 模切机 4
2.1.2 直刃裁纸机 5
2.1.3 滚刀裁剪机 7
2.2 可调尺寸纸张裁剪机原理方案的设计 8
2.2.1 功能原理分析: 9
2.2.2 运动原理分析: 11
2.2.3 总结分析: 11
第三章.可调尺寸纸张裁剪机结构尺寸的设计 12
3.1 纵向裁纸机构设计 13
3.1.1 纵向裁纸刀的结构设计 13
3.1.2 纵向裁纸刀的安装设计 14
3.2 横向裁纸机构设计 15
3.2.1 横向裁纸刀的结构设计 15
3.2.2 横向裁纸刀的安装设计 17
3.3 控制装置、总体结构的设计 18
3.3.1 控制装置的设计 18
3.3.2 总体结构的设计 18
第四章.零部件设计 25
4.1 纵向裁纸机构零件尺寸的设计 25
4.1.1 轴的设计 25
4.1.2 电动机功率选择: 27
4.1.3 刀具设计: 27
4.1.5 仪器仪表滚动轴承的选择 29
4.2 横向裁纸机构零件尺寸的设计 29
4.2.1 丝杠设计 29
4.2.2 光杠设计 31
4.2.3 滑块的尺寸设计 31
4.2.4 横向滚刀设计 32
4.2.5 滚动轴承的选择 33
4.3 控制装置、底板和外壳结构尺寸的设计 33
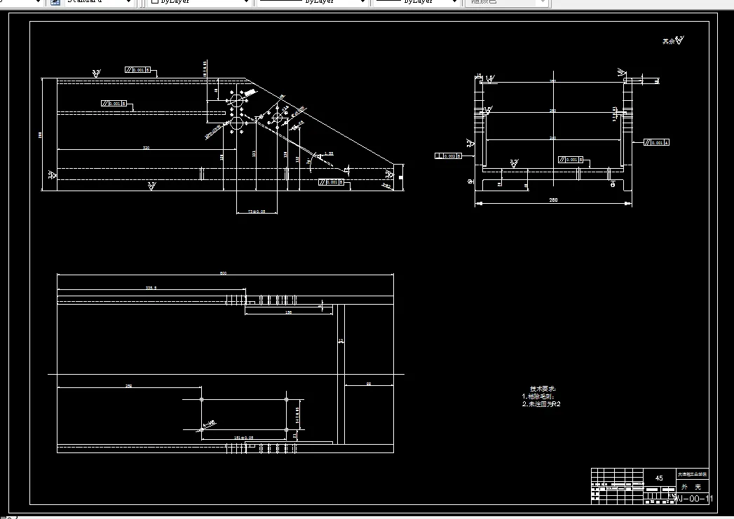
4.3.1外壳、垫板的设计 33
4.3.2 压板的设计 36
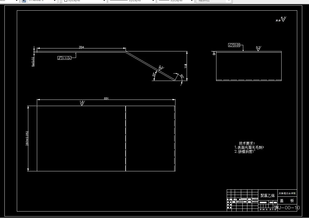
4.3.3 盖板的设计 36
第五章.其他.......................................38
5.1技术经济性分析......................................38
5.2结 论 38
参考文献 40
致 谢 41
温馨提示:
1、题目前面的备注【字母数字编号】为本站整理分类的编号,与课题内容无关,请选题时忽视;
2、若题目上备注三维,则表示文件里包含三维源文件,由于三维组成零件数量较多,为保证预览截图的简洁性,本站将三维文件夹进行了打包。三维及CAD预览截图,均为本站电脑打开软件进行截图的,保证能够打开,下载原件超高清,下载后解压即可;
3、本站所有资源如无特殊说明,都需要本地电脑安装Office2007。图纸软件为AutoCAD,PROE,UG,SolidWorks,CATIA等;
4、本站所有图文资料仅供用户学习参考,不作为任何商用或其他用途;
5、本站不保证下载资源的准确性、安全性和完整性, 不包修改,不支持退换,同时也不承担用户因使用这些下载资源对自己和他人造成任何形式的伤害或损失;
6、 下载文件中如有侵权或不适当内容,请与我们联系,我们立即纠正。