

作品包括:
说明书1份,共33页,约10000字左右
电路图版本图纸,共1张
目 录
1本次设计的概述 1
1.1本次设计的任务 1
1.2国内外粮食储藏气调技术应用的发展现状 1
1.2.1国际粮食科技现状 1
1.2.2发达国家粮食科技发展趋势 2
1.3本次设计的目的和意见 2
2储粮气调装置控制系统设计 3
2.1系统整体设计 3
2.2系统的工作原理 3
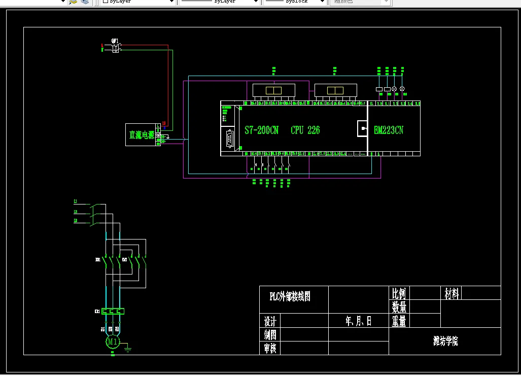
3 PLC原理接线图设计 4
3.1PLC的选型 4
3.2扩展模块的选择 5
3.3环路开关的设计 6
3.4变频器的选择 7
3.4.1变频器不同种类的比较 7
3.4.2变频器参数设计 8
3.5电动机的选择 11
3.6人机界面的选择 12
3.7 PLC原理接线图 13
4 PLC软件程序设计 14
4.1 内部地址的分配 14
4.2主程序流程图设计 16
4.3子程序流程图设计 17
5自动控制系统软件的设计 14
5.1内部地址的分配 15
5.2 PLC程序设计 16
5.3人机界面设计 17
6设计总结 29
7致谢 30
参考文献 31
温馨提示:
1、题目前面的备注【字母数字编号】为本站整理分类的编号,与课题内容无关,请选题时忽视;
2、若题目上备注三维,则表示文件里包含三维源文件,由于三维组成零件数量较多,为保证预览截图的简洁性,本站将三维文件夹进行了打包。三维及CAD预览截图,均为本站电脑打开软件进行截图的,保证能够打开,下载原件超高清,下载后解压即可;
3、本站所有资源如无特殊说明,都需要本地电脑安装Office2007。图纸软件为AutoCAD,PROE,UG,SolidWorks,CATIA等;
4、本站所有图文资料仅供用户学习参考,不作为任何商用或其他用途;
5、本站不保证下载资源的准确性、安全性和完整性, 不包修改,不支持退换,同时也不承担用户因使用这些下载资源对自己和他人造成任何形式的伤害或损失;
6、 下载文件中如有侵权或不适当内容,请与我们联系,我们立即纠正。