

作品包括:
说明书1份,共46页,约20000字左右
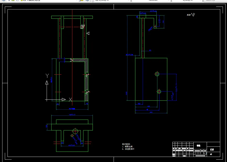
CAD图版本图纸,共7张
UG三维图一份
摘要
冲压式蜂窝煤成型机是我国城镇蜂窝煤生产厂的主要生产设备,它将煤粉加入转盘上的模筒内,经冲头冲压成蜂窝煤。本设计目的是完成蜂窝煤成型机的设计及性能仿真。通过蜂窝煤成型机的的原理,分析、比较了蜂窝煤成型机的运动方案,确定了蜂窝煤成型机的运动机构方案,简单地计算了电动机、主体机构、传动机构、扫屑机构的参数尺寸。用三维造型软件UG对各个部件进行建模,内容包括:机体部分、传动机构(电机、齿轮、传动轴)、冲压部分(滑杆、滑梁、冲杆、冲杆座、冲头、活动压盘)。并将它们进行了装配并完成了装配后的运动仿真,完成了对模型的模拟、检验和修正,最终完成了蜂窝煤成型机的设计与仿真。
关键字:成型机;设计;建模;仿真
目录
摘要 3
Abstract 4
1 设计 5
1.1 产品简介 5
1.2 工作原理 5
1.3 机器的运动方案分析及选择 7
1.3.1 分析 7
1.3.2 原动机的选择 8
1.3.3 主传动运动方案分析及选择 8
1.4 机构系统的尺寸设计 11
1.4.1 传动机构的运动尺寸设计 11
1.4.2 主体机构的运动尺寸设计 13
1.4.3 槽轮机构的运动尺寸的设计 14
1.5 主体机构运动线图设计与分析 14
2 建模 16
2.1 齿轮建模 16
2.2 电动机建模 21
2.3 轴建模 23
2.4 杆建模 25
2.5 槽轮机构建模 27
2.6 机体建模 29
2.7 横梁建模 31
2.8 活动圆盘建模 33
2.9 扫屑刷建模 35
3 装配 36
4 运动仿真 40
4.1 创建连杆 40
4.2 创建运动副 40
4.3 仿真结果 42
结论 44
参考文献 46
温馨提示:
1、题目前面的备注【字母数字编号】为本站整理分类的编号,与课题内容无关,请选题时忽视;
2、若题目上备注三维,则表示文件里包含三维源文件,由于三维组成零件数量较多,为保证预览截图的简洁性,本站将三维文件夹进行了打包。三维及CAD预览截图,均为本站电脑打开软件进行截图的,保证能够打开,下载原件超高清,下载后解压即可;
3、本站所有资源如无特殊说明,都需要本地电脑安装Office2007。图纸软件为AutoCAD,PROE,UG,SolidWorks,CATIA等;
4、本站所有图文资料仅供用户学习参考,不作为任何商用或其他用途;
5、本站不保证下载资源的准确性、安全性和完整性, 不包修改,不支持退换,同时也不承担用户因使用这些下载资源对自己和他人造成任何形式的伤害或损失;
6、 下载文件中如有侵权或不适当内容,请与我们联系,我们立即纠正。