

作品
设计说明书一份,共40页,约18000字
开题报告一份.
外文翻译一份
CAD版本图纸,共12张
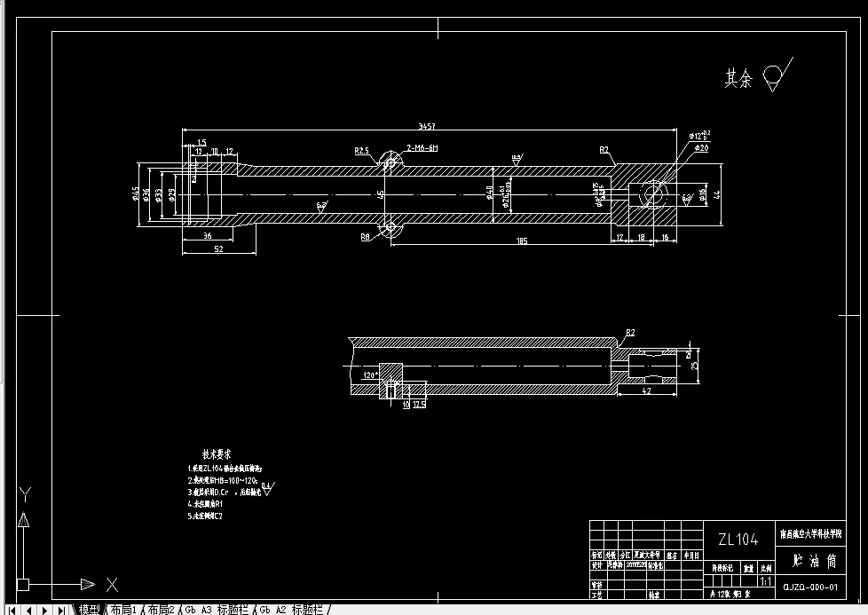
摘要:减震器又称缓冲器,是安装在摩托车悬挂装置上的一个重要零件。摩托车悬挂装置不仅决定了乘坐的舒适度,而且还是决定其运动性能的重要部件。而减震器的功能就是缓和由于路面不平引起的冲击,衰减摩托车的振动;提高乘坐舒适性,保护货载;减低车体各部分的运应力,增加零件的寿命;加强轮胎的附着性,有助于摩托车的操纵性、稳定性。
本文所设计的摩托车前减震器采用液力式减震方式,其工作行程为50 mm。通过弹簧减震为主。设计时减震弹簧采用组合式弹簧,由两段节距不同的等节距圆柱弹簧组成。在通常振动范围内,弹簧柔软,当车辆受到冲击时,弹簧变硬,有足够的能力吸收这种冲击能量。减震器的机能是利用流体通过减震杆上的孔、隙产生的粘性阻力。和固体摩托减震相比,利用液体紊流阻力的减震器,在一定阻尼力和吸收能量的条件下,质量小,尺寸小,并在相当的范围内具有能任意规定阻尼力对工作速度的关系等优点。
在设计过程中对前减震器的工作原理进行了说明,并确定了工作部分主要零件的相关参数,在已知条件的前提下分别对减震弹簧直径和自由高度,阻尼孔的数量和直径等进行设计计算。
关键词:前减震器 弹簧 阻尼 设计
目 录
1 绪论………………………………………………………………………………(1)
2 总体方案设计
2.1 研究内容及实验方案…………………………………………………………(3)
2.2 工作原理………………………………………………………………………(3)
3 摩托车减震器的功能和结构形式
3.1 减震器的功能…………………………………………………………………(5)
3.2 摩托车前减震器的结构形式…………………………………………………(5)
3.2.1 弹簧空气式…………………………………………………………………(5)
3.2.2 单筒伸缩式…………………………………………………………………(5)
3.2.3 双筒伸缩式…………………………………………………………………(6)
3.2.4 油—汽伸缩式………………………………………………………………(6)
3.2.5 防下沉伸缩式前减震器……………………………………………………(7)
4 摩托车后减震器的主要特性
4.1 摩托车减震器的弹簧特性……………………………………………………(8)
4.1.1 摩托车悬挂装置的挠度……………………………………………………(8)
4.1.2 摩托车悬挂装置的理想弹簧特性…………………………………………(9)
4.2 摩托车减震弹簧的材料及工艺………………………………………………(10)
4.2.1 弹簧材料的种类……………………………………………………………(10)
4.2.2弹簧制造工艺………………………………………………………………(11)
4.3 摩托车减震器的阻尼特性……………………………………………………(11)
4.3.1 阻力——速度特性…………………………………………………………(11)
4.3.2 阻力——位移特性…………………………………………………………(13)
4.4 摩托车减震器的阻尼力………………………………………………………(14)
4.4.1 复原行程阻尼力计算………………………………………………………(14)
4.4.2 压缩行程阻尼力计算………………………………………………………(16)
4.4.3 减震器额定阻力……………………………………………………………(17)
4.4.4 示功图………………………………………………………………………(17)
5 摩托车后减震器的结构设计
5.1 减震器的主要零件结构参数…………………………………………………(19)
5.1.1 工作缸径的确定……………………………………………………………(19)
5.1.2 贮油筒径的确定……………………………………………………………(19)
5.1.3 减震器基长的确定…………………………………………………………(20)
5.1.4 工作行程……………………………………………………………………(20)
5.2 摩托车后减震器主要零件的结构设计………………………………………(21)
5.2.1 弹簧的结构尺寸设计和计算………………………………………………(21)
5.2.2 减震弹簧按实际工作状态绘图的优点……………………………………(24)
5.2.3 减震器减震杆杆的设计……………………………………………………(24)
5.2.4 活塞环设计计算……………………………………………………………(26)
5.2.5 贮 油 筒……………………………………………………………………(29)
5.2.6 导向套(衬套)……………………………………………………………(30)
5.2.7 油封…………………………………………………………………………(31)
6 摩托车减震器主要零部件的组装工艺
6.1 装配工艺原则…………………………………………………………………(34)
6.2 装配工艺流程…………………………………………………………………(34)
6.2.1 活塞、活塞杆的装配………………………………………………………(34)
6.2.2 前减震器总成装配…………………………………………………………(35)
7 摩托车后减震器的检验与质量评定
7.1 出厂检验………………………………………………………………………(36)
7.2 减震器型式检验………………………………………………………………(36)
7.3 减震器质量等级评定方法……………………………………………………(37)
8 总结………………………………………………………………………………(38)
参考文献……………………………………………………………………………(39)
致 谢……………………………………………………………………………(40)
温馨提示:
1、题目前面的备注【字母数字编号】为本站整理分类的编号,与课题内容无关,请选题时忽视;
2、若题目上备注三维,则表示文件里包含三维源文件,由于三维组成零件数量较多,为保证预览截图的简洁性,本站将三维文件夹进行了打包。三维及CAD预览截图,均为本站电脑打开软件进行截图的,保证能够打开,下载原件超高清,下载后解压即可;
3、本站所有资源如无特殊说明,都需要本地电脑安装Office2007。图纸软件为AutoCAD,PROE,UG,SolidWorks,CATIA等;
4、本站所有图文资料仅供用户学习参考,不作为任何商用或其他用途;
5、本站不保证下载资源的准确性、安全性和完整性, 不包修改,不支持退换,同时也不承担用户因使用这些下载资源对自己和他人造成任何形式的伤害或损失;
6、 下载文件中如有侵权或不适当内容,请与我们联系,我们立即纠正。