

作品包括:
Word版说明书1份,共94页,约28000字
CAD版本图纸,共6张
摘 要
通过对机械设计制造及其自动化专业大学本科四年的所学知识进行整合,对工业机械手各部分机械结构和功能的论述和分析,设计了一种圆柱坐标形式的自动上下料机械手。重点针对机械手的立柱、手臂、手爪等各部分机械结构以及机械手控制系统进行了详细的设计。具体进行了机械手的总体设计,立柱结构的设计,机械手手臂结构的设计,机械手腕部的结构设计,末端执行器(手爪)的结构设计,机械手的机械传动机构的设计,机械手驱动系统的设计。同时对液压系统和控制系统进行了理论分析和计算。基于PLC对机械手的控制系统进行了深入细致的设计,通过对机械手作业的工艺过程和控制要求的分析,设计了控制系统的硬件电路,同时编制了机械手的控制程序。设计达到了设计的预期目标。
关键词:机械手 PLC 液压伺服定位 电液系统
目 录
摘要Ⅰ
Abstract...................................Ⅱ
1 绪 论 1
1.1 选题背景........................................................1
1.2 设计题目............................................................2
1.3 国内外研究现状和趋势................................................2
1.4 设计原则............................................................3
2 机械手设计方案的论证.....................................................4
2.1 机械手的总体设计...................................................4
2.1.1 机械手总体结构类型................................................5
2.1.2 具体设计采用方案..................................................5
2.2 机械手腰座结构的设计...............................................6 2.2.1 机械手腰座结构的设计要求.........................................6
2.2.2 设计具体采用方案.................................................7
2.3 机械手手臂的结构设计...............................................7
2.3.1 机械手手臂的设计要求..............................................7
2.3.2 设计具体采用方案..................................................8
2.4 机械手腕部的结构设计................................................9
2.4.1 机器人手腕结构的设计要求..........................................9
2.4.2 设计具体采用方案.................................................10
2.5 机械手末端执行器(手爪)的结构设计.................................11
2.5.1 机械手末端执行器的设计要求.......................................11
2.5.2 机器人夹持器的运动和驱动方式.....................................12
2.5.3 机器人夹持器的典型结构...........................................13
2.5.4 设计具体采用方案.................................................13
2.6 机械手的机械传动机构的设计.........................................14
2.6.1 工业机器人传动机构设计...........................................14
2.6.2 工业机器人常用的传动机构形式.....................................15
2.6.3 设计具体采用方案.................................................19
2.7 机械手驱动系统的设计..............................................19
2.7.1 机器人各类驱动系统的特点.........................................19
2.7.2 工业机器人驱动系统的选择原则.....................................20
2.7.3 机器人液压驱动系统...............................................21
2.7.4 机器人气动驱动系统...............................................22
2.7.5 机器人电动驱动系统..............................................24
2.7.6 设计具体采用方案................................................27
2.8 机器人手臂的平衡机构设计..........................................28
2.8.1 机器人平衡机构的形式............................................28
2.8.2 设计具体采用的方案..............................................28
3设计计算和理论分析........................................................29
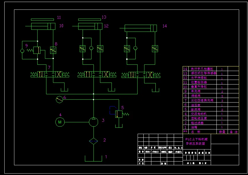
3.1 液压传动系统设计计算...............................................29
3.1.1 确定液压系统基本方案.............................................29
3.1.2 拟定液压执行元件运动控制回路.....................................30
3.1.3 液压源系统的设计.................................................30
3.1.4 绘制液压系统图...................................................32
3.1.5 确定液压系统的主要参数...........................................33
3.1.6 计算和选择液压元件...............................................38
3.1.7 液压性能演算....................................................40
3.2 电机选型有关参数计算..............................................40
3.2.1 有关参数的计算...................................................40
3.2.2 电机型号的选择...................................................43
4 机械手控制系统硬件设计 45
4.1机械手控制系统硬件设计..............................................45
4.1.1机械手工艺过程与控制要求..........................................45
4.1.2机械手的作业流程..................................................45
4.1.3机械手操作面板布置................................................46
4.1.4控制器的选型......................................................47
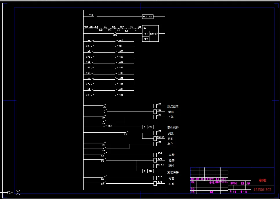
4.1.5控制系统原理分析..................................................48
4.1.6 I/O地址分配......................................................50
4.2机械手控制系统软件设计..............................................50
4.2.1机械手控制主程序流程图............................................50
4.2.2机械手控制程序设计................................................51
4.2.3机械手PLC程序语..................................................53
5 技术经济性分析..........................................................57
结论.......................................................................58
致谢.......................................................................59
参考文献 60
附录1......................................................................62
附录2......................................................................72
温馨提示:
1、题目前面的备注【字母数字编号】为本站整理分类的编号,与课题内容无关,请选题时忽视;
2、若题目上备注三维,则表示文件里包含三维源文件,由于三维组成零件数量较多,为保证预览截图的简洁性,本站将三维文件夹进行了打包。三维及CAD预览截图,均为本站电脑打开软件进行截图的,保证能够打开,下载原件超高清,下载后解压即可;
3、本站所有资源如无特殊说明,都需要本地电脑安装Office2007。图纸软件为AutoCAD,PROE,UG,SolidWorks,CATIA等;
4、本站所有图文资料仅供用户学习参考,不作为任何商用或其他用途;
5、本站不保证下载资源的准确性、安全性和完整性, 不包修改,不支持退换,同时也不承担用户因使用这些下载资源对自己和他人造成任何形式的伤害或损失;
6、 下载文件中如有侵权或不适当内容,请与我们联系,我们立即纠正。