

作品包括:
设计说明书一份,共41页,约19000字
任务书一份.
开题报告一份.
外文翻译一份
CAD版本图纸,共7张
A0-双联旋风除尘器装配图.dwg
A2-旋风除尘器左单体.dwg
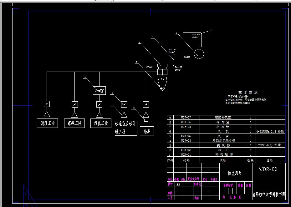
A3-除尘风网.dwg
A3-风量汇集箱.dwg
A3-进口过渡管.dwg
A3-通风机.dwg
A3-左外筒展开图.dwg
目 录
1 绪 论
1.1铸造车间的污染及其除尘状况的概述......... ......... ......... ... 1
1.1.1中国铸造业现状及铸造车间污染..................................1
1.1.2研究目的和意义........................ .......................1
1.1.3 除尘的目的...................................................2
1.1.4铸造车间组成..................................................2
1.2工业生产中的除尘设备............................................3
1.2.1除尘系统的组成................................................3
1.2.2除尘设备在铸造车间生产中的应用................................3
1.2.3铸造车间中除尘设备运行现状 ...................................3
1.3除尘设备的选择..................................................4
1.3.1除尘系统分类及特点............................................4
1.3.2原始资料(数据)及设计技术要求.................................. 4
1.4旋风除尘器概述..................................................4
1.5旋风除尘器的优缺点..............................................5
1.5.1旋风除尘器的优点..............................................5
1.5.2旋风除尘器的缺点..............................................5
2 旋风除尘器的设计
2.1旋风除尘器的结构和工作原理......................................5
2.2旋风除尘器的性能及影响因素......................................6
2.2.1旋风除尘器的性能指标..........................................6
2..2.2影响旋风除尘器性能的主要因素................................9
3 除尘器结构设计计算
3.1选择旋风除尘器的型式..........................................18
3.1.1旋风除尘器的分类............................................18
3.1.2旋风除尘器的选用............................................19
3.2选择旋风除尘器的入口风速......................................20
3.3计算入口面积Fj、入口高度a和宽度b.............................20
3.4计算进口过渡管的尺寸...........................................21
3.5计算风量汇集箱的尺寸...........................................23
3.6 计算出口过渡管的尺寸..........................................23
3.7 计算灰斗的尺寸................................................24
3.8旋风除尘器单体左外筒钢板展开尺寸...............................25
3.9 关风器的选择..................................................25
3.10 风机的选择...................................................27
4除尘器压力损失ΔP和除尘效率η的计算
4.1压力损失ΔP的计算................................ ......... ... 27
4.2除尘效率η的计算.................................. ......... ...29
5 吸尘罩的设计
5.1吸尘罩的选择.............................. ...... ........36
5.2吸尘罩的计算....................................... . ...37
6 除尘器的安装使用及维护管理
6.1除尘器使用注意事项..................... ..... ..... ............37
6.2除尘器的运行....................................... ..... ......37
6.3除尘器的维护..................................... ..... ........38
总结............ ............ ............ ............ ............39
参考文献.............................................. ..... ......40
致谢................ ................ ................ .............41
铸造车间负压除尘系统的设计
摘要:
粉尘是人类健康的大敌,因为它带着许多细菌病毒和虫卵到处飞扬,传播疾病。. 工业粉尘、纤尘能使工人患上各种难以治愈的职业病,过多的灰尘还会造成环境污染,影响人们的正常生活和工作,诱发人类呼吸道疾病等等。除尘器是在车间必不可少。
利用旋转的含尘气体所产生的离心力,将粉尘从空气中分离出来的一种干式净化设备,成为旋风除尘器。旋风除尘器应用最为广泛,,其特点是结构简单,除尘效率较高,操作简单,价格低廉。旋风除尘器对于大于10μm的较粗粉尘,净化效率很高。但对于5~10μm以下的细颗粒粉尘净化效率较低,所以旋风除尘器多用于粗颗粒粉尘的净化,或多用于多级净化的初步处理。适用于铸造车间除尘。
负压除尘系统中,除尘器设置在通风机之前。
其特点: ①由于除尘器设置在通风机之前,流过通风机的气体已经经过除尘,含尘量低。通风机受磨损大大减低,运行寿命长,处理初浓度高的含尘气体时,一般采用负压除尘系统。②除尘器和管道处于通风机的负压阶段,容易吸入空气,产生漏风。负压除尘系统的漏风率为5%~10%,加大了通风机的风量,增加了电耗。③在负压除尘系统设计中应采用措施尽可能的减少除尘器和管道的漏风,以保证除尘器的良好运行。
关键词: 铸造 旋风除尘器 负压除尘
温馨提示:
1、题目前面的备注【字母数字编号】为本站整理分类的编号,与课题内容无关,请选题时忽视;
2、若题目上备注三维,则表示文件里包含三维源文件,由于三维组成零件数量较多,为保证预览截图的简洁性,本站将三维文件夹进行了打包。三维及CAD预览截图,均为本站电脑打开软件进行截图的,保证能够打开,下载原件超高清,下载后解压即可;
3、本站所有资源如无特殊说明,都需要本地电脑安装Office2007。图纸软件为AutoCAD,PROE,UG,SolidWorks,CATIA等;
4、本站所有图文资料仅供用户学习参考,不作为任何商用或其他用途;
5、本站不保证下载资源的准确性、安全性和完整性, 不包修改,不支持退换,同时也不承担用户因使用这些下载资源对自己和他人造成任何形式的伤害或损失;
6、 下载文件中如有侵权或不适当内容,请与我们联系,我们立即纠正。