

作品包括:
word版设计说明书一份,共78页,约26000字
任务书一份
开题报告一份
实习报告一份
CAD版本图纸,共4张
摘 要
本次设计题目为液压系统综合实验台设计,液压实验台的系统选定额定工作压力为7MPa。
实验台采用了快换接头式结构,这样不仅使液压实验台更容易的扩展,而且使系统的连接更加方便。能够可自行设计,拆装各类元件,组合实验回路,能完成上百种液压基本回路实验。学生完全独立自己动手进行实验的设计、安装、调试、排除故障,可得到工程实际的综合训练。提高学生的学习兴趣、动手能力、独立思考能力、创新能力和工程综合能力。
另外对液压实验台的外型、液压缸等多方面进行设计,合理布局;对性能进行了系统的校核,证明实验台的安全性;对液压系统是如何安装、调试和使用进行了介绍;还对系统回路举例,并进行了分析验证。
关键词:回路;拆装实验;调试;传感器
目 录
摘 要 I
Abstract II
第1章 绪论 1
第2章 液压实验装置的系统性能及参数 3
2.1 实验台的设计目标 3
2.2 液压实验台的功能结构比较 3
2.3 液压实验台的系统设计及工作原理 3
2.4 实验台的主要参数 5
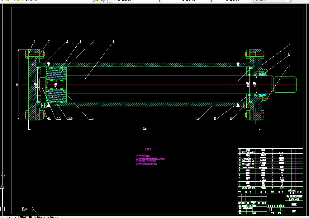
第3章 液压缸的设计 6
3.1 液压缸的基本参数 6
3.2 液压缸的缸筒的设计 6
3.2.1 缸筒的材料的选择 7
3.2.2 缸筒内径的计算 7
3.2.3 缸筒壁厚的计算 8
3.2.4 缸筒底部厚度的计算 9
3.2.5 缸筒的设计要求 9
3.3 液压缸的活塞的设计 10
3.4 液压缸的活塞杆的设计 10
3.4.1 活塞杆的结构 10
3.4.2 活塞杆的材料和技术要求 11
3.4.3 活塞杆的计算 11
3.5 液压缸的缸盖 13
3.6 液压缸的缓冲设计 13
3.7 液压缸的排气装置 14
3.8 液压缸的安装方式 15
3.9 液压缸的油口设计 15
第4章 液压元件和液压油的选择 16
4.1 液压泵的选择 16
4.1.1 液压泵的性能参数 16
4.1.2 选择液压泵的规格 18
4.1.3 原动机功率计算 20
4.2 电动机的选择 20
4.3 液压控制阀的选择 21
4.3.1 压力控制阀的选择 22
4.3.2 换向阀的选择 22
4.4 油管、管接头的选择 23
4.4.1 管道的设计 23
4.4.2 管接头的选择 24
4.5 确定油箱容量 25
4.5.1 油箱的作用及设计要点 25
4.5.2 油箱的材料选择及结构设计 26
4.6 过滤器的选择 28
4.7 冷却器和加热器的选择 29
4.7.1 冷却器的选择 29
4.7.2 加热器的选择 29
4.8 蓄能器的选择 30
4.9 液压油的选择 31
4.10 传感器的选择 31
4.10.1 速度传感器 32
4.10.2 位移传感器 32
4.10.3 压力传感器 33
4.11 联轴器的选择 33
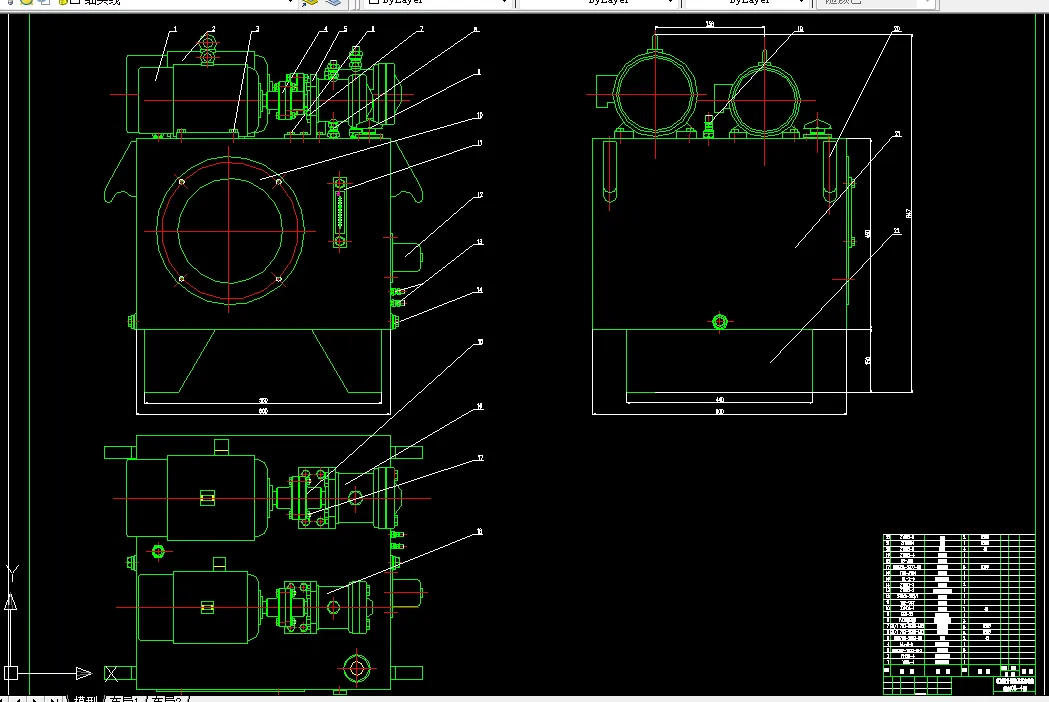
第5章 液压实验台的总体工艺设计 34
5.1 液压实验台的结构组成 34
5.1.1 主体实验台 34
5.1.2 实验电器控制器 36
5.1.3 元件柜 36
5.2 液压实验台的框架结构 36
5.3 附加结构 37
第6章 液压系统的性能验算 38
6.1 液压系统的压力损失计算 38
6.1.1 沿程压力损失的计算 39
6.1.2 管道内的局部压力损失 42
6.1.3 阀类元件的局部压力损失 42
6.2 液压系统的发热和散热计算 43
6.2.1 液压系统进行发热的计算 43
6.2.2 液压系统的散热计算 44
6.3 液压系统的冲击及冲击计算 45
6.3.1 液压冲击的危害 45
6.3.2 液压冲击产生的原因 46
6.3.3 防止液压冲击的一般方法 47
6.3.4 液压冲击的计算 48
第7章 液压系统的安装、调试、维护和使用 49
7.1 液压系统的安装 49
7.1.1 液压元件安装前的准备工作 49
7.1.2 液压元件的安装 50
7.1.3 管路的安装 53
7.1.4 管路的清洗 53
7.1.5 系统的清洗 54
7.2 液压系统的调试 54
7.2.1 调试前的准备工作 54
7.2.2 调试和试运行 55
7.3 液压系统的维护和使用 56
7.3.1 日常检查 56
7.3.2 定期检查 56
第8章 液压实验回路举例 57
8.1 选取典型的液压实验 57
8.2 增压回路 57
8.2.1 液压原理图 57
8.2.2 性能验算 58
8.2.3 测量的数值 60
8.3 单向节流阀的旁油调速 60
8.3.1 实验所需的阀块 60
8.3.2 液压原理图 60
8.3.3 性能验算 61
8.3.4 测量的数值 63
结论 64
致谢 66
参考文献 67
温馨提示:
1、题目前面的备注【字母数字编号】为本站整理分类的编号,与课题内容无关,请选题时忽视;
2、若题目上备注三维,则表示文件里包含三维源文件,由于三维组成零件数量较多,为保证预览截图的简洁性,本站将三维文件夹进行了打包。三维及CAD预览截图,均为本站电脑打开软件进行截图的,保证能够打开,下载原件超高清,下载后解压即可;
3、本站所有资源如无特殊说明,都需要本地电脑安装Office2007。图纸软件为AutoCAD,PROE,UG,SolidWorks,CATIA等;
4、本站所有图文资料仅供用户学习参考,不作为任何商用或其他用途;
5、本站不保证下载资源的准确性、安全性和完整性, 不包修改,不支持退换,同时也不承担用户因使用这些下载资源对自己和他人造成任何形式的伤害或损失;
6、 下载文件中如有侵权或不适当内容,请与我们联系,我们立即纠正。