

作品包括:
word版设计说明书一份,共99页,约27000字
任务书一份
外文翻译一份
CAD版本图纸,共8张
毕业论文任务书
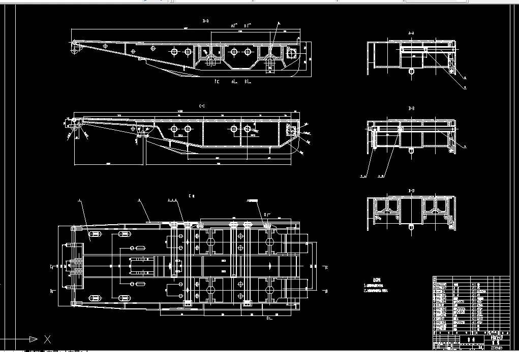
毕业论文题目:支撑掩护式液压支架设计
毕业论文专题题目:基于VB程序的四连杆优化设计
毕业论文主要内容和要求:
主要内容:
中厚煤层支撑掩护式液压支架的设计,其设计参数为:
1、液压支架的工作范围
基本要求:
1、根据围岩性质、煤层赋存条件、初选配套设备的相关尺寸,确定支架基本架型及支架结构参数;
2、优化四连杆机构的轨迹方案,完成各构件的结构设计、受力分析、强度计算;
3、完成主要部件、组件及主要零件工作图的设计;编写完成整机设计计算说明。
摘 要
我课题的研究内容是支撑掩护式液压支架的总体设计。
现代长壁工作面采煤已经在开采区使用液压支架。液压支架不仅支撑顶板,推动刮板输送机工作面和自移式支架本身,而且还为相关的采煤设备提供一个安全的工作环境。因此正确的选择和应用液压支架是长壁工作面采煤成功的先决条件。此外,由于对液压支架需求数量很大,对液压支架的投资经常要占到长壁采煤工作面初始投资的一半以上。因此,从技术和经济两方面的观点看,液压支架是长壁采煤工作面设备中十分重要的一部分。
支撑掩护式液压支架结合了垛式液压支架和掩护式液压支架的特点。所以,支撑掩护式液压支架具有以上两者所具有的优点。
液压支架作为回采工作面的一种支护设备,液压支架在工作过程中能否取得良好的支护效果,取决于支架的架型,结构和相关参数。首先,通过计算机软件Visual Basic来进行四连杆机构优化设计编程来确定支架的四连杆机构各杆系的长度;然后,以力学模型为依据,分析了液压支架的顶梁、掩护梁上载荷的作用机理,得到了较为合理的支架载荷的计算公式;其次,结合设计的支架,从平面和空间两方面对支架主要结构件进行受力分析;最后对支架主要结构件、连接销轴进行强度效核,并画出所有的机械图。
关键词:支撑掩护式支架;顶梁;四连杆;双纽线;强度
目 录
1支撑掩护式液压支架概述 1
1.1 液压支架的用途 1
1.2液压支架的工作原理 1
1.2.1支架升降 1
1.2.2 支架移动和推移输送机 4
1.4 液压支架的组成 5
1.4.1 顶梁 5
1.4.2 底座 5
1.4.3 立柱 6
1.4.4 掩护梁 6
1.4.5 活动侧护板 6
1.4.6 连杆 7
1.4.7操纵控制系统 7
1.5 液压支架的设计 7
1.5.1 设计目的 7
1.5.2 对液压支架的基本要求 8
1.5.3 设计液压支架必需的基本参数 8
1.5.4坚硬顶板的液压支架设计 9
1.6 液压支架的设计动向 10
2 液压支架的结构设计 13
2.1 液压支架基本尺寸的确定 13
2.1.1 支架高度和伸缩比 13
2.1.2 支架中心距 14
2.1.3 支架的宽度 14
2.2 支架整体机构尺寸确定 14
2.2.1底座长度 14
2.2.2确定四连杆机构和掩护梁长度 14
2.2.2.1四连杆机构的作用 14
2.2.2.2四连杆机构的几何特征 15
2.2.2.3四连杆机构的几何作图法 17
2.2.3确定顶梁的长度 22
2.2.4 液压支架的性能参数 24
2.2.4.1液压支架的支护强度 24
2.2.4.2液压支架的工作阻力 24
2.2.4.3液压支架的初撑力 25
2.2.4.4液压支架的移架力和推溜力 25
2.2.5 立柱布置 25
2.2.6 支架在工作面的通风断面积验算 26
2.2.7 确定立柱和千斤顶 28
2.2.7.1立柱的尺寸 28
2.2.7.2立柱的初撑力 30
2.2.7.3立柱的工作阻力 30
2.2.7.4移架千斤顶的尺寸 31
2.2.7.5移架千斤顶的行程 33
3液压支架的受力分析及校核 34
3.1液压支架的工作阻力 34
3.2压支架前连杆的受力 35
3.3支架后连杆的受力 36
3.4顶梁强度计算 37
3.4.1顶梁受力情况 37
3.4.2 顶梁强度计算 39
3.5掩护梁强度计算 40
3.5.1 掩护梁受力情况 40
3.5.2掩护梁强度计算 42
3.6底座强度计算 43
3.6.1 底座受力情况 43
3.6.2 强度计算 46
3.6.3 底座接触比压计算 47
3.7立柱强度计算 49
3.7.1 立柱参数 49
3.7.2 计算重叠长度 49
3.7.3各种系数的计算 51
3.7.4上活柱的强度核算 52
3.7.5下活柱的强度核算 53
3.7.6缸体强度核算 54
3.7.7立柱的稳定裕量验算 55
3.8销轴的设计 55
4 液压支架的液压系统 58
4.1 立柱和千斤顶 58
4.2 支架液压阀 60
4.2.1 液控单向阀 60
4.2.2 安全阀 61
4.2.3 操纵阀 61
4.4 液压系统安装、调试 63
4.4.1 安装 63
4.4.1.1液压管道的安装要求 63
4.4.1.2液压件安装要求 66
4.4.2 调试: 68
5 液压支架的操作和维护 69
5.1 液压支架的操作维护要求 69
5.2 液压支架的操作管理事项 69
5.3 液压支架维护和管理的具体内容 70
结 论 73
参考文献: 74
附录: 76
英文原文 87
中文译文 94
致 谢 99
温馨提示:
1、题目前面的备注【字母数字编号】为本站整理分类的编号,与课题内容无关,请选题时忽视;
2、若题目上备注三维,则表示文件里包含三维源文件,由于三维组成零件数量较多,为保证预览截图的简洁性,本站将三维文件夹进行了打包。三维及CAD预览截图,均为本站电脑打开软件进行截图的,保证能够打开,下载原件超高清,下载后解压即可;
3、本站所有资源如无特殊说明,都需要本地电脑安装Office2007。图纸软件为AutoCAD,PROE,UG,SolidWorks,CATIA等;
4、本站所有图文资料仅供用户学习参考,不作为任何商用或其他用途;
5、本站不保证下载资源的准确性、安全性和完整性, 不包修改,不支持退换,同时也不承担用户因使用这些下载资源对自己和他人造成任何形式的伤害或损失;
6、 下载文件中如有侵权或不适当内容,请与我们联系,我们立即纠正。