

作品包括:
说明书1份,共30页,约11000字左右
CAD版本本图纸,共4张
摘 要
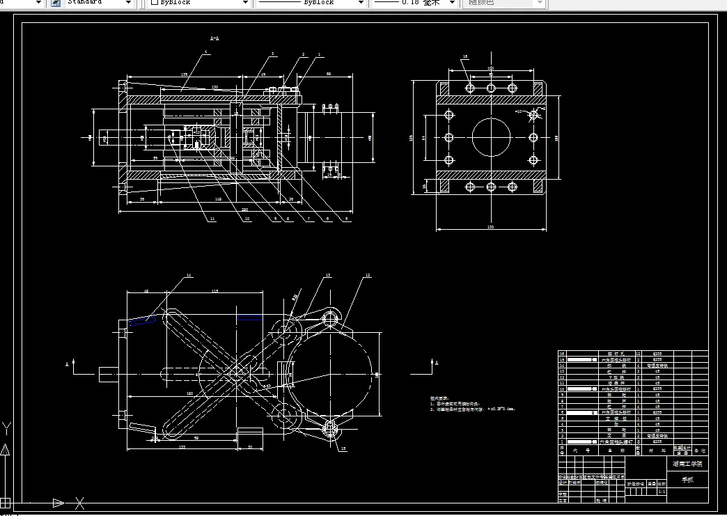
本次设计的多功能机械手用于汽车零件加工自动线上的设计,主要由手爪、手腕、手臂、机身、机座等组成,具备上料、翻转和转位等多种功能,并按该自动线的统一生产节拍和生产纲领完成以上动作。本机械手机身采用机座式,自动线围绕机座布置,其坐标形式为球坐标式,具有立柱旋转、手臂伸缩、手臂俯仰、腕部转动和腕部摆动4个自由度。驱动方式为液压驱动,选用双泵,共有整机回转油缸、手臂俯仰油缸、手臂伸缩油缸、手腕摆动油缸、手腕回转油缸、手爪夹紧油缸6个液压缸。送放机构的液压驱动系统是由液压基本回路组成,包括调压回路,缓冲回路,调速回路,换向回路.锁紧回路,保压回路。定位采用机械挡块定位,定位精度为0.5~1mm,采用行程控制系统实现点位控制。
关键词: 机械手,自动线,液压,设计 ,点位控制
目 录
1绪论 1
1.1机械手的概述 1
1.2机械手的组成与分类 1
1.2.1机械手的组成 1
1.3机械手的分类 2
1.3 机械手的组成 3
2总体方案分析 4
2.1总体方案分析 4
2.2方案的确定 4
2.3动作原理 4
2.4 主要技术指标 5
3手部的设计 6
3.1手部结构 6
3.2手爪的计算与分析 6
3.2.1手爪执行液压缸工作压力计算 6
3.2.2 手爪的夹持误差分析与计算 7
4腕部的设计 8
4.1腕部结构 8
4.2 腕部回转力矩的计算 8
5手臂的设计 11
5.1手臂伸缩液压缸的设计计算 11
5.1.1手臂作水平伸缩直线运动驱动力的计算 11
5.1.2手臂垂直升降运动驱动力的计算 11
5.1.3确定液压缸的结构尺寸 12
5.1.4液压缸壁厚计算 12
5.1.5活塞杆的计算 13
5.1.6液压缸端盖的联接方式与强度计算 13
5.1.6缸盖螺钉计算 13
5.1.7缸体螺纹计算 14
5.2手臂俯仰运动的设计计算 15
5.2.1手臂俯仰时所需的驱动力矩 15
5.2.2缸盖联接螺钉计算和动片联接螺钉计算 16
5.2.3动片联接螺钉的计算 16
6.机身设计 18
6.1机身结构的计算 18
6.2机身设计时应注意的事项 19
7机械手液压系统的工作原理 20
7.1液压系统的组成 20
7.2液压传动系统机械手的特点 20
7.3油缸泄漏问题与密封装置 20
7.3.1活塞式油缸的泄漏与密封 21
7.3.2回转油缸的泄漏与密封 21
7.4液压系统传动方案的确定 22
7.4.1各液压缸的换向回路 22
7.4.2调整方案 22
7.4.3减速缓冲回路 22
7.4.4系统安全可靠性 23
参考文献 25
致 谢 26
温馨提示:
1、题目前面的备注【字母数字编号】为本站整理分类的编号,与课题内容无关,请选题时忽视;
2、若题目上备注三维,则表示文件里包含三维源文件,由于三维组成零件数量较多,为保证预览截图的简洁性,本站将三维文件夹进行了打包。三维及CAD预览截图,均为本站电脑打开软件进行截图的,保证能够打开,下载原件超高清,下载后解压即可;
3、本站所有资源如无特殊说明,都需要本地电脑安装Office2007。图纸软件为AutoCAD,PROE,UG,SolidWorks,CATIA等;
4、本站所有图文资料仅供用户学习参考,不作为任何商用或其他用途;
5、本站不保证下载资源的准确性、安全性和完整性, 不包修改,不支持退换,同时也不承担用户因使用这些下载资源对自己和他人造成任何形式的伤害或损失;
6、 下载文件中如有侵权或不适当内容,请与我们联系,我们立即纠正。