

作品包括:
说明书1份,共38页,约14000字左右
开题报告一份
外文翻译一份
CAD版本本图纸,共3张
门式起重机总体设计
摘 要
随着现代科技的发展,起重机在冶金、机械、交通运输、电力、建筑、采矿、化工、造船、港口和国防等工业部门中的应用愈来愈广泛。它对于发展国民经济,改善人们的事物、文化生活的需求都起着重要的作用。随着经济建设迅速发展,机械化、自动化程度也在不断的提高,与此相适应的起重机技能也在高速发展,产物种类不停增加,使用规模越来越广。一些企业由于没有起重机械,不仅工作效率低,劳动强度大,甚至难以工作。高层建筑的施工,上万吨级或几十万吨级的大型船只的建造,火箭和导弹的发射,大型电站的施工和安装,大重件的装卸与搬运等,都离不开起重机的作业。它不仅只在生产过程中起辅助作用,而且已成为大批生产和流水作业不可缺少的组成部分,它是实现机械化、自动化,提高劳动生产率,减轻体力劳动的重要工具。
起重机的分类方法有多种,常见的是按起重机体型特点来分类。如桥式起重机、门式起重机、门座起重机、塔式起重机、汽车起重机、铁路起重机、桅杆起重机、缆索起重机等
在门式起重机中,一,按门框结构形式分为:门式起重机,悬臂门式起 重机。二、按主梁形式:1.单主梁门式起重机。2. 双主梁门式起重机。三、按主梁结构:1.桁架梁。2.箱梁。3.蜂窝梁。四、按用途形式:1.普通龙门起重机。2.水电站龙门起重机。3.造船龙门起重机。4.集装箱龙门起重机。
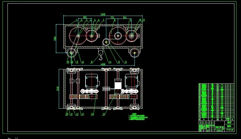
论文主要完成了以下工作:(1)各机构布置方案的总体设计;(2)各机构及部件的设计研究和设计计算;(3)各机构部件主要技术指标校核(4)运行机构总图设计与零部件图设计。具体工作如下:
论文首先介绍了起重运输机械的用途和现代起重机的发展趋势。然后根据龙门起重机各机构的设计要求,结合所学的专业知识,按照国家相关规范和起重机设计手册进行了大车运行机构的设计计算。设计计算过程中主要进行了方案选择,总体布置和驱动方式确定。相继进行了电动机、减速器、制动器等主要部件计算和校核,包括
功率、力矩、强度、发热等。最后,按照设计和选择的部件型号,查找相关尺寸进行绘图,将各部件组合在一起,画出了本次设计研究的大车运行机构,副起升机构。
通过本次毕业设计,熟悉了起重机的设计计算过程,通过绘图提高了自己对AutoCAD的应用能力,巩固了所学的专业知识,为今后工作和进一步学习奠定了基础。
关键词:龙门起重机;大车运行机构;副起升机构;AutoCAD绘图
目 录
第一章 绪论 2
1.1门式起重机简介以及起重机的发展现状 2
1.2论文主要内容、研究方法及相关参数 4
1.3本文所要做的工作 5
第二章 起升机构的设计计算 7
2.1起升传动方案与卷绕装置 7
2.2电动机的选择 11
2.3选择减速机 11
2.4选择制动器 12
2.5联轴器的选择 13
2.6起动时间与制动时间的验算 13
第三章 大车运行机构的设计计算 15
3.1 主要参数与机构的布置简图 15
3.2电动机的选择 15
3.3减速器的选择 18
3.4选择制动器 19
3.5 选择联轴器 20
第四章 小车运行机构的计算 21
4.1主要参数与机构的布置简图 21
4.2电动机的选择 21
4.3减速器的选择 23
4.4联轴器的选择 23
4.5制动器的选用 24
第五章 金属结构设计计算 26
5.1基本尺寸设计 26
5.2主梁截面几何参数计算 26
5.3端梁设计 27
5.4刚性支腿设计 27
5.5柔性支腿设计 28
5.6整机稳定性计算 29
第六章 总结 32
参考文献 33
致谢 34
温馨提示:
1、题目前面的备注【字母数字编号】为本站整理分类的编号,与课题内容无关,请选题时忽视;
2、若题目上备注三维,则表示文件里包含三维源文件,由于三维组成零件数量较多,为保证预览截图的简洁性,本站将三维文件夹进行了打包。三维及CAD预览截图,均为本站电脑打开软件进行截图的,保证能够打开,下载原件超高清,下载后解压即可;
3、本站所有资源如无特殊说明,都需要本地电脑安装Office2007。图纸软件为AutoCAD,PROE,UG,SolidWorks,CATIA等;
4、本站所有图文资料仅供用户学习参考,不作为任何商用或其他用途;
5、本站不保证下载资源的准确性、安全性和完整性, 不包修改,不支持退换,同时也不承担用户因使用这些下载资源对自己和他人造成任何形式的伤害或损失;
6、 下载文件中如有侵权或不适当内容,请与我们联系,我们立即纠正。