

作品包括:
说明书1份,共45页,约11000字左右
CAD版本本图纸,共9张
摘要
本次毕业设计使我认真的认识到了自己在本专业应学习的主要内容以及短板,换热器的设计工作主要有换热器综述,换热器的工艺计算以及结构强度计算。其中换热器工艺计算中需要根据初始数据计算其处理量以及工艺参数,换热器的结构强度计算主要集中在折流板,筒体以及开口上。
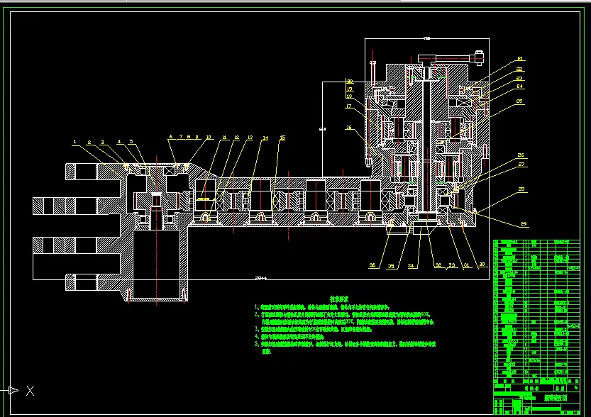
换热器是化学工艺生产中重要的设备之一,它是一种冷热流体间的传递热量的设备,他们的使用条件和要求差别很大,如容量,温度,压力和工作介质的性质等,涉及的种类很多,因此换热器的结构形式也多种多样。U形管换热器仅有一个管板,管束可从壳体内抽出,便于检修和清洗,而且结构简单,造价便宜。U形管换热器主要结构包括筒体,封头,换热管,接管,折流板,防冲板,导流筒,防短路结构,支座和管壳层的其他设备等。
本次设计为二类压力容器,设计温度和设计压力都较高,因此设计要求就很高。换热器采用双管程,不锈钢换热管制造。设计中主要进行了换热器的结构设计,强度设计及零部件的选型和工艺设计。
关键词: U形管换热器; 结构; 强度; 设计计算
目 录
第一章 换热器综述 1
引言 1
1.1 管式换热器 1
1.1.1 U型换热器 2
1.1.2填料式换热器 2
1.1.3 套管式换热器 3
1.1.4 管壳式换热器 3
1.1.5 螺旋槽管换热器 4
1.1.6 横纹管换热器 4
1.1.7 螺旋扁管换热器 4
1.1.8 螺旋扭曲管换热器 5
1.1.9 波纹管换热器 5
1.2 板式换热器 6
1.2.1.可拆式板式换热器 6
1.2.2 焊接式板式换热器 6
1.2.3 板壳式换热器 6
1.2.4 螺旋板式换热器 6
1.2.5 板翅式换热器 7
1.3 国内外开发研究的发展方向 7
1.3.1 非金属材料应用 7
1.3.2 计算流体力学和模型化设计在换热器中的应用 7
1.3.3 加强实验和理论研究 8
结语 8
参考文献 8
第二章 换热器传热工艺计算 9
2.1 起始数据 9
2.2 定性温度及确定其物性参数 9
2.3 热量守恒与油流量的计算 10
2.4 有效平均温度的公式计算 10
2.5 管程换热系数的计算 10
2.6 结构的初步设计 11
2.7 壳程换热系数计算 12
2.8 传热系数计算 13
2.9 管壁温度计算 13
2.10 壳程压力降计算 13
2.11 管程压力降计算 14
第三章 换热器强度计算 16
3.1 换热管材料及规格选择和根数的确定 16
3.2 管子的排列方式 16
3.3 筒体内径的确定 17
3.4 筒体厚壁的确定 17
3.5 液压试验 18
3.6 壳程标准椭圆形封头厚度的计算 18
3.7 管程标准椭圆形封头厚度的计算 19
3.8 容器法兰的选择 20
3.8.1 接管法兰的选择 21
3.9 管板的设计 22
3.10 管相短节壁厚的计算 24
3.11 拉杆和定距管的确定 25
3.12 折流板的选择 26
3.12.1 选型 26
3.12.2 折流板尺寸 26
3.12.3 换热管无支撑跨距或折流板间距 26
3.12.4 折流板厚度 26
3.12.5 折流板直径 26
3.12.6 折流板管孔直径 26
3.13 防冲板尺寸的确定 27
3.14 接管及开孔补强 27
3.14.1 管箱接管开孔补强计算 27
3.14.2 壳体接管开孔补强计算 29
3.15 分程隔板厚度选取 30
第四章 支座的设计及选择 31
4.1 支座的选择 31
参考文献 36
致谢 37
温馨提示:
1、题目前面的备注【字母数字编号】为本站整理分类的编号,与课题内容无关,请选题时忽视;
2、若题目上备注三维,则表示文件里包含三维源文件,由于三维组成零件数量较多,为保证预览截图的简洁性,本站将三维文件夹进行了打包。三维及CAD预览截图,均为本站电脑打开软件进行截图的,保证能够打开,下载原件超高清,下载后解压即可;
3、本站所有资源如无特殊说明,都需要本地电脑安装Office2007。图纸软件为AutoCAD,PROE,UG,SolidWorks,CATIA等;
4、本站所有图文资料仅供用户学习参考,不作为任何商用或其他用途;
5、本站不保证下载资源的准确性、安全性和完整性, 不包修改,不支持退换,同时也不承担用户因使用这些下载资源对自己和他人造成任何形式的伤害或损失;
6、 下载文件中如有侵权或不适当内容,请与我们联系,我们立即纠正。