

作品包括:
word版设计说明书一份,共81页,约23000字
CAD版本图纸,共9张
毕业设计任务书
毕业论文题目:桥式转载机的设计
毕业论文专题题目:
毕业论文主要内容和要求:
设计参数:
出厂长度(m) 25
输送量 t/h1100
刮板链速 m/s 1
额定功率( ) 160
减速器速比 30.67
爬坡角度(°) 10°
要求:
(1)查阅有关资料,完成桥式转载机总体方案的设计。
(2)完成总体传动及结构设计, 大功率减速器整体设计。
(3)传动主要部件、组件、零件图设计
(4)编写完成设计计算说明书。
桥式转载机
桥式转载机是综合机械化采煤工作面运输系统配套设备中的重要组成部分,在工作面运输巷中接受工作面刮板输送机卸下的煤流,不停顿地转运到可伸缩带式输送机上去.桥式转载机与工作面刮板输送机机头部同步推移,保证工作面采煤机连续采煤,实现综采工作面的高产高效作业.
桥式转载机是一种特殊结构的刮板输送机,其动力传动系统及驱动装置与刮板输送机相似,其机身有一个坡道段和一段拱桥结构,可在带式输送机机尾段上面搭接.在后退式采煤工作面运输巷中,当转载机推移到其拱桥段全部与带式输送机机尾段搭接叠的极限位置时,可伸缩带式输送机缩短一个搭接长度,带式输送机的机发展部移置到转载机卸载机头下方,转载机又可随工作面的推进而向前推移.
转载机是与大型综采工作面设备配套使用的顺槽输送、转载设备,完成把工作面输送机送来的煤输送、转运到后续皮带输送设备上的任务,并提供相应的连接手段。设计要求与ZY2300 皮带机自移机尾配套,以实现在2.3 米范围内整体移动而不必拆移皮带机。与ZY2300 皮带机自移机尾配合可更方便地调节皮带机,增强了皮带机与转载机配合的协调性。本转载机与SGZ1000/3000 型输送机配套使用,运量可达4000 吨/小时,技术先进,工作可靠,是大型综采配套设备的优秀机型。
目 录
1 概述1
1.1转载机的发展概况1
1.2国内外转载机的技术特点及趋势1
1.3转载机组成3
1.4 限矩型液力联轴器的选择6
1.4.1液力联轴器的工作液体7
2总体方案的确定7
2.1结构与传动系统7
2.1.1主要技术参数10
2.2电动机的选择10
2.3总传动比及传动比的分配10
2.3.1总传动比的确定11
2.3.2传动比的分配11
3 传动系统的设计11
3.1 各级传动转速、功率、转矩的的确定11
3.2 第一级锥齿轮传动设计计算13
3.2.1 选择齿轮材料13
3.2.2 按齿根的弯曲疲劳强度设计计算14
3.2.3 齿面的接触疲劳强度校核16
3.2.4 齿轮几何尺寸的计算17
3.3 第二级直齿圆柱齿轮传动设计计算19
3.3.1 选择齿轮材料19
3.3.2 按齿根的弯曲疲劳强度设计计算21
3.3.3 齿面的接触疲劳强度校核24
3.3.4 齿轮几何尺寸的计算25
3.4第三级直齿圆柱齿轮传动设计计算25
3.4.1选择齿轮材料25
3.4.2 按齿根的弯曲疲劳强度设计计算27
3.4.3 齿面的接触疲劳强度校核30
3.4.4 齿轮几何尺寸的计算31
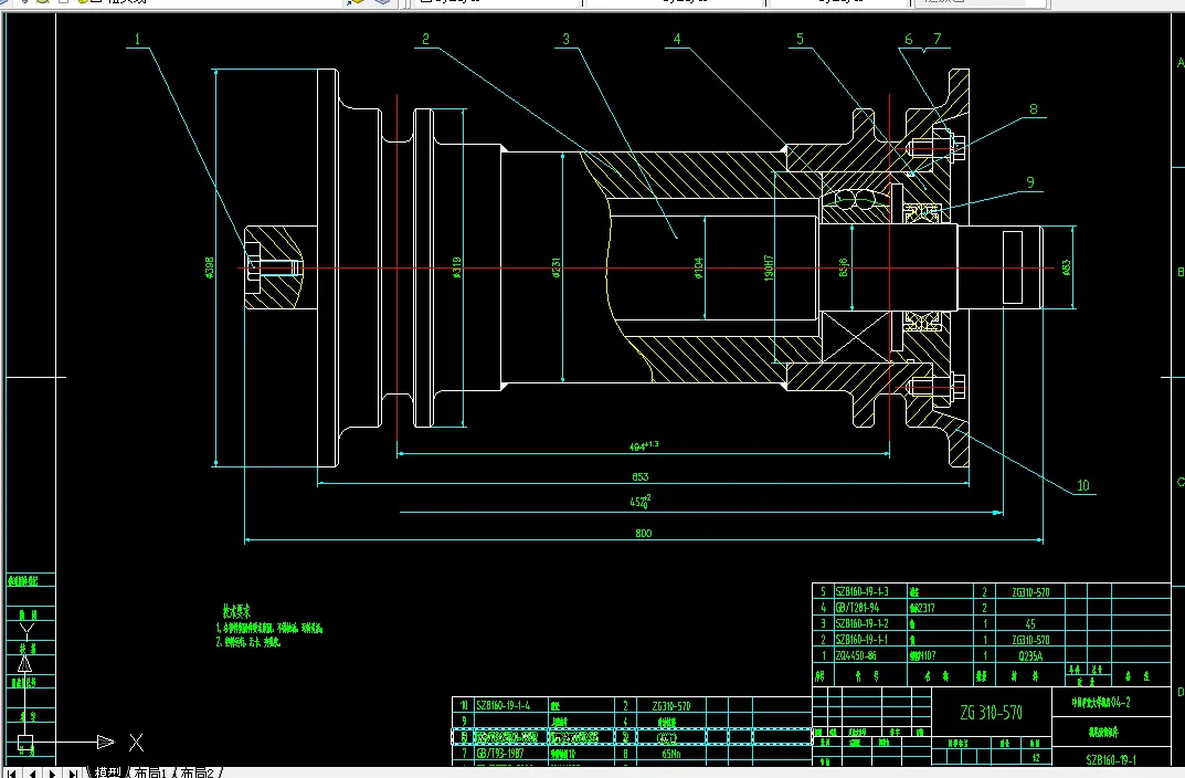
4 传动轴的结构设计与校核31
4.1 输入轴的结构设计33
4.1.1 确定轴的最小直径33
4.1.2减速器高速轴I的设计33
4.2 Ⅱ轴的结构设计38
4.2.1 确定轴的最小直径38
4.2.2 按轴向定位要求确定各轴段直径和长度38
4.3Ⅲ轴的结构设计42
4.3.1确定轴的最小直径42
4.3.2 按轴向定位要求确定各轴段直径和长度42
4.4输出轴的结构设计45
4.4.1 确定轴的最小直径45
4.4.2 按定位要求确定各轴段直径和长度45
5 键的校核48
5.1 Ⅰ轴键的校核48
5.2Ⅱ轴键的校核48
5.3Ⅲ轴键的校核49
5.4Ⅳ轴键的校核49
6 轴承的校核50
6.1验算Ⅰ轴承寿命50
6.2验算Ⅱ轴承寿命51
6.3验算Ⅲ轴承寿命51
6.4验算Ⅳ轴承寿命52
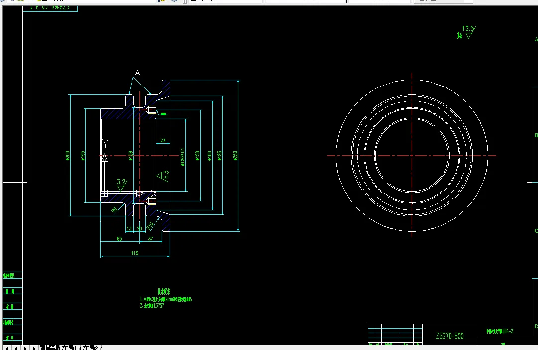
6.5箱体及附件的设计53
7 安装、使用和维护54
7.1 安装和拆卸54
7.1.1安装方法54
7.1.2拆卸方法55
7.2操作及运转55
参考文献57
外文翻译:58
英文原文:58
中文译文69
结 论77
致 谢78
温馨提示:
1、题目前面的备注【字母数字编号】为本站整理分类的编号,与课题内容无关,请选题时忽视;
2、若题目上备注三维,则表示文件里包含三维源文件,由于三维组成零件数量较多,为保证预览截图的简洁性,本站将三维文件夹进行了打包。三维及CAD预览截图,均为本站电脑打开软件进行截图的,保证能够打开,下载原件超高清,下载后解压即可;
3、本站所有资源如无特殊说明,都需要本地电脑安装Office2007。图纸软件为AutoCAD,PROE,UG,SolidWorks,CATIA等;
4、本站所有图文资料仅供用户学习参考,不作为任何商用或其他用途;
5、本站不保证下载资源的准确性、安全性和完整性, 不包修改,不支持退换,同时也不承担用户因使用这些下载资源对自己和他人造成任何形式的伤害或损失;
6、 下载文件中如有侵权或不适当内容,请与我们联系,我们立即纠正。