

作品包括:
word版设计说明书一份,共76页,约30000字
任务书一份
翻译一份
CAD版本图纸,共10张
毕业设计任务书
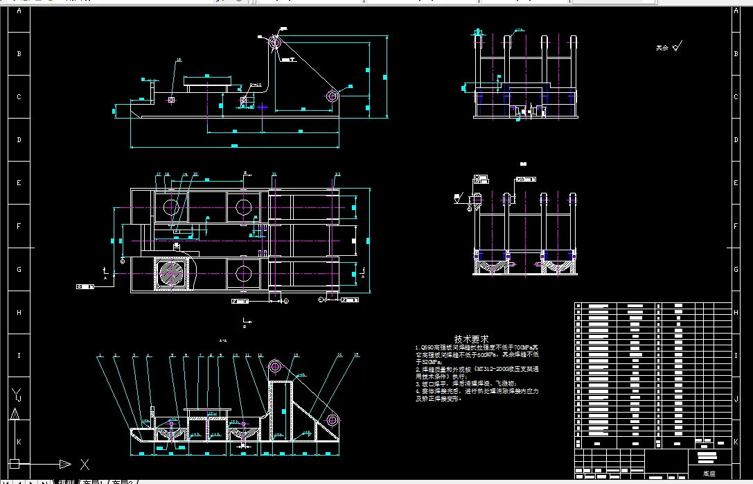
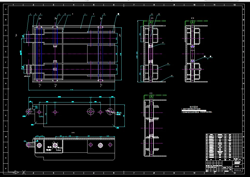
毕业设计题目:中厚煤层支撑掩护式液压支架设计
毕业设计专题题目:
毕业设计主要内容和要求:
主要内容:
支撑掩护式液压支架的设计:
1、液压支架的绪论、原理、发展等;
2、根据围岩性质、煤层赋存条件、初选配套设备的相关尺寸,确定支架基本架型及支架结构;液压支架的基本参数确定及其尺寸计算;
3、液压支架的受力分析合强度校核 ;
4、液压支架的设计。
基本要求:
工作阻力4000KN,最小高度1.7m,最大高度3.5m,中心距1.5。完成主要部件、组件及主要零件工作图的设计,编写完成整机设计计算说明;设计图纸量折合成A0图纸不少于3张,并完成设计说明书,要求说明书正文不少于70页,要有英文相关文章的翻译,翻译成中文后不少于3000字。
摘 要
我课题的研究内容是中厚煤层支撑掩护式液压支架的总体设计。
现代长壁工作面采煤已经在开采区使用液压支架。液压支架不仅支撑顶板,推动刮板输送机工作面和自移式支架本身,而且还为相关的采煤设备提供一个安全的工作环境。因此正确的选择和应用液压支架是长壁工作面采煤成功的先决条件。此外,由于对液压支架需求数量很大,对液压支架的投资经常要占到长壁采煤工作面初始投资的一半以上。因此,从技术和经济两方面的观点看,液压支架是长壁采煤工作面设备中十分重要的一部分。
支撑掩护式液压支架结合了垛式液压支架和掩护式液压支架的特点。所以,支撑掩护式液压支架具有以上两者所具有的优点。
液压支架作为回采工作面的一种支护设备,液压支架在工作过程中能否取得良好的支护效果,取决于支架的架型,结构和相关参数。首先,通过计算机软件Visual Basic来进行四连杆机构优化设计编程来确定支架的四连杆机构各杆系的长度;然后,以力学模型为依据,分析了液压支架的顶梁、掩护梁上载荷的作用机理,得到了较为合理的支架载荷的计算公式;其次,结合设计的支架,从平面和空间两方面对支架主要结构件进行受力分析;最后对支架主要结构件、连接销轴进行强度效核,并画出所有的机械图。
关键词:支撑掩护式支架;顶梁;四连杆;双纽线;强度
目 录
1支撑掩护式液压支架概述…………………………………………………………1
1.1 液压支架的用途……………………………………………………………1
1.2液压支架的工作原理………………………………………………………1
1.2.1支架升降………………………………………………………… 1
1.2.2 支架移动和推移输送机………………………………………… 3
1.3 液压支架的分类……………………………………………………………4
1.4 液压支架的组成……………………………………………………………5
1.4.1 顶梁…………………………………………………………………6
1.4.2 底座…………………………………………………………………6
1.4.3 立柱…………………………………………………………………6
1.4.4 掩护梁………………………………………………………………6
1.4.5 活动侧护板………………………………………………………6
1.4.6 连杆…………………………………………………………………7
1.4.7操纵控制系统………………………………………………………7
1.5 液压支架的设计……………………………………………………………7
1.5.1 设计目的……………………………………………………………7
1.5.2 对液压支架的基本要求……………………………………………7
1.5.3 设计液压支架必需的基本参数……………………………………8
1.5.4坚硬顶板的液压支架设计…………………………………………8
1.6 液压支架的设计动向………………………………………………………9
1.7 液压支架的应用与研究现状…………………………………………… 11
1.7.1 国外液压支架现状………………………………………………11
1.7.2 国内液压支架现状………………………………………………12
1.8 液压支架的支护方式……………………………………………………13
1.9 液压支架的选型…………………………………………………………14
2 液压支架的结构设计……………………………………………………………15
2.1液压支架基本尺寸的确定………………………………………………15
2.1.1 支架高度的确定…………………………………………………15
2.1.2 支架的伸缩比和单位缸长行程的确定…………………………16
2.1.3 支架中心距的确定………………………………………………16
2.1.4 支架的宽度的确定………………………………………………17
2.1.5 底座长度的确定…………………………………………………17
2.1.6底座宽度的确定…………………………………………………17
2.2 支架整体机构尺寸确定…………………………………………………17
2.2.1四连杆机构的作用………………………………………………17
2.2.2四连杆机构的几何特征…………………………………………17
2.2.3四连杆机构的几何作图法………………………………………20
2.2.4确定顶梁的长度…………………………………………………23
2.3 液压支架的性能参数……………………………………………………24
2.3.1 液压支架的支护强度……………………………………………24
2.3.2 液压支架的工作阻力……………………………………………24
2.3.3 液压支架的初撑力………………………………………………25
2.3.4 液压支架的移架力和推溜力……………………………………25
2.3.5 覆盖率……………………………………………………………25
2.4 支架立柱的计算…………………………………………………………25
2.4.1 立柱布置…………………………………………………………25
2.4.2单伸缩立柱缸径的确定…………………………………………25
2.4.3泵站压力和立柱安全阀的调整压力……………………………26
2.4.4立柱初撑力的计算………………………………………………27
2.5推移装置…………………………………………………………………28
2.6 前梁千斤顶………………………………………………………………31
2.7护帮千斤顶…………………………………………………………………31
2.8底座接触比压的计算……………………………………………………31
3液压支架的受力分析及校核……………………………………………………36
3.1液压支架的整体受力分析………………………………………………36
3.2底板的支撑反力 及作用点的位置确定………………………………37
3.3强度条件…………………………………………………………………39
3.4顶梁的受力分析及强度校核……………………………………………40
3.4.1顶梁的受力情况…………………………………………………40
3.4.2 顶梁的强度计算…………………………………………………42
3.5掩护梁的受力分析及强度校核…………………………………………44
3.5.1 掩护梁的受力情况……………………………………………44
3.5.2掩护梁的强度计算……………………………………………45
3.6底座的受力分析及强度校核……………………………………………46
3.6.1 底座的受力情况…………………………………………………47
3.6.2 底座强度计算…………………………………………………48
3.7销轴及耳板的强度校核…………………………………………………54
3.7.1 顶梁与掩护梁连接处的强度校核………………………………54
3.7.2 前连杆与底座连接处的强度校核………………………………56
3.8立柱强度的计算…………………………………………………………57
3.8.1缸体与缸底焊缝强度验算………………………………………57
3.8.2油缸的稳定性验算………………………………………………57
3.8.3 验算活柱全部伸出并受最大同心纵向载荷的稳定性…………59
3.8.4 立柱活塞杆强度验算……………………………………………60
3.8.5缸体强度验算………………………………………………………62
4 液压支架的液压系统……………………………………………………………63
4.1 立柱和千斤顶……………………………………………………………64
4.2 支架液压阀………………………………………………………………65
4.3 液压系统安装调试………………………………………………………67
4.3.1 安装………………………………………………………………67
4.3.1.1液压管道的安装要求……………………………………67
4.3.1.2液压件安装要求…………………………………………69
4.3.2 调试………………………………………………………………70
5 液压支架的操作和维护…………………………………………………………71
5.1 液压支架的操作维护要求………………………………………………71
5.2 液压支架的操作管理事项………………………………………………71
5.3 液压支架维护和管理的具体内容………………………………………72
结 论………………………………………………………………………………74
参考文献……………………………………………………………………………75
英文原文……………………………………………………………………………76
中文译文……………………………………………………………………………80
致 谢…………………………………………………………………………………88
温馨提示:
1、题目前面的备注【字母数字编号】为本站整理分类的编号,与课题内容无关,请选题时忽视;
2、若题目上备注三维,则表示文件里包含三维源文件,由于三维组成零件数量较多,为保证预览截图的简洁性,本站将三维文件夹进行了打包。三维及CAD预览截图,均为本站电脑打开软件进行截图的,保证能够打开,下载原件超高清,下载后解压即可;
3、本站所有资源如无特殊说明,都需要本地电脑安装Office2007。图纸软件为AutoCAD,PROE,UG,SolidWorks,CATIA等;
4、本站所有图文资料仅供用户学习参考,不作为任何商用或其他用途;
5、本站不保证下载资源的准确性、安全性和完整性, 不包修改,不支持退换,同时也不承担用户因使用这些下载资源对自己和他人造成任何形式的伤害或损失;
6、 下载文件中如有侵权或不适当内容,请与我们联系,我们立即纠正。