

作品包括:
word说明书一份,共34页,约15000字
CAD版本图纸,共10张
目 录
摘 要 …………………………………………………………………1
第一章 概述 …………………………………………………3
1.1 物流知识 ……………………………………………………3
1.1.1 物流的定义 ……………………………………………………3
1.1.2 物流系统的组成 ……………………………………………… 3
1.1.3 常用输送机构及功能……………………………………………3
1.2 链传动双向伸出货叉 …………………………………………5
1.2.1 概述 …………………………………………………………5
1.2.2 链传动双向伸出货叉的技术现状 ……………………………5
1.2.3 链传动双向伸出货叉的应用情况 ……………………………6
1.2.4 链传动双向伸出货叉的发展趋势 ……………………………6
第二章 设计任务书 …………………………………………6
2.1 设计题目 ………………………………………………………6
2.2 设计背景 …………………………………………………………6
2.2.1题目简述 ………………………………………………………6
2.2.2使用状况 ………………………………………………………6
2.2.3生产状况 ………………………………………………………7
2.3 设计参数 ………………………………………………………7
2.4 设计任务 ………………………………………………………7
第三章 链传动双向伸出货叉的总体设计方案 ……………7
3.1 链传动双向伸出货叉的工作原理 ………………………………7
3.2 中叉传动方案的设计 ……………………………………………8
3.3 上叉传动方案的设计 ……………………………………………9
3.4 链轮张紧装置的设计………………………………………………9
3.5 中叉联结板的设计 ………………………………………………11
第四章 电机的选择与传动机构的设计计算 ……………12
4.1 电机的选择………………………………………………………12
4.2 主动链轮的设计计算……………………………………………13
4.3 下叉循环链中链条末端在中叉两点的确定……………………14
4.4 中叉链轮的设计计算 ……………………………………………15
第五章 传动轴及轴承的设计计算 ………………………16
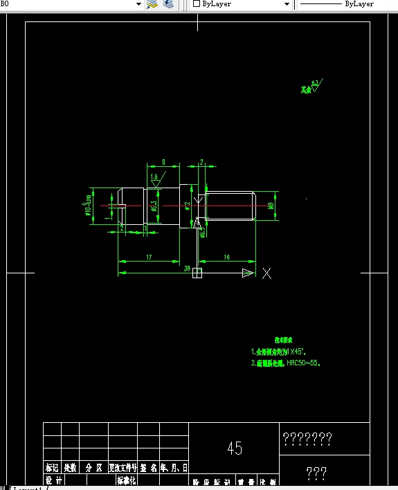
5.1 链轮轴的设计计算 …………………………………………16
5.1.1最小直径 …………………………………………………16
5.1.2 轴上零件的布置方案 …………………………………………17
5.1.3 轴的校核………………………………………………………17
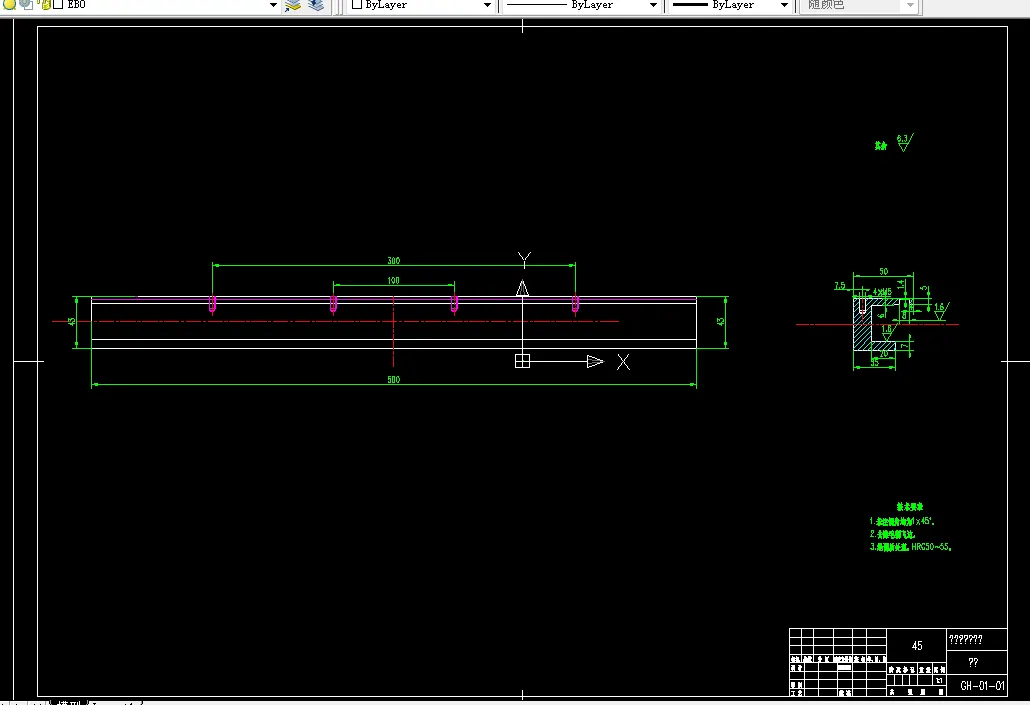
5.2 滚轮轴的设计计算………………………………………………18
5.2.1 最小直径………………………………………………………19
5.2.2 轴上零件的布置方案 …………………………………………19
5.2.3 轴的校核………………………………………………………19
5.3 轴承的校核 …………………………………………………20
5.3.1 链轮轴轴承的校核 ………………………………………20
5.4 货叉的强度计算……………………………………………21
5.4.1 货叉机构的受力分析……………………………………21
5.4.2 货叉的强度计算…………………………………………22
第六章 我国企业物流的现状及改进策略……………………24第七章 总结 ……………………………………………………27
参考文献 …………………………………………………………28
致谢 ………………………………………………………………29
摘 要
堆垛机货叉是现代物流装备的主要取物装置,一般应用于以标准托盘存取的集装化单元货物和货物体积、质量较大的场合。
现代产业物流管理中,产品和原材料采用现代化立体仓库周转储运是发展方向。现代储运立体仓库通常由固定的立体货架和自动化堆垛机2部分构成,由堆垛机实现物料自动化入库出库。而货叉是有轨巷道堆垛机装置中重要的存物取货机构。货叉下挠度,是堆垛机的一项非常重要的性能参数,直接关系到堆垛机是否能正常工作。因结构型式、材料及加工热处理工艺的限制,同等状况下,目前国内立体堆垛机的货叉下挠度要比国外大20%~30%。改进货叉结构,合理选材,提高工艺手段,是减少货叉下挠度,保证堆垛机工作性能的重要措施。
世界主要工业国家都把着眼点放在开发性能可靠的新产品和采用高新技术上,更加注重实用性和安全性。在堆垛机货叉方面,我们应当看到和世界发达国家的差距,总结经验,找出不足,打破传统思路,推出新的外形和更高性能的堆垛机。相信,通过我们的不断努力,必能设计出结构安全、可靠性能高的堆垛机货叉,为增强我国综合国力,为我国填补一分科技空白。
本次设计任务是设计纯链传动双向伸出货叉机构,要求在现有的基础上对其性能及效率进行改善,以便在物流产业发挥更重要的作用。本次设计的软件主要有二维软件CAXA和CAD。并在此基础上进行了必要的校核计算。
关键词:链传动 双向伸缩 三层货叉 直线差动
温馨提示:
1、题目前面的备注【字母数字编号】为本站整理分类的编号,与课题内容无关,请选题时忽视;
2、若题目上备注三维,则表示文件里包含三维源文件,由于三维组成零件数量较多,为保证预览截图的简洁性,本站将三维文件夹进行了打包。三维及CAD预览截图,均为本站电脑打开软件进行截图的,保证能够打开,下载原件超高清,下载后解压即可;
3、本站所有资源如无特殊说明,都需要本地电脑安装Office2007。图纸软件为AutoCAD,PROE,UG,SolidWorks,CATIA等;
4、本站所有图文资料仅供用户学习参考,不作为任何商用或其他用途;
5、本站不保证下载资源的准确性、安全性和完整性, 不包修改,不支持退换,同时也不承担用户因使用这些下载资源对自己和他人造成任何形式的伤害或损失;
6、 下载文件中如有侵权或不适当内容,请与我们联系,我们立即纠正。