

作品包括:
Word版说明书一份,共51页,约14000字
外文翻译一份
CAD版本图纸,共6张
带钢矫正机整机设计
摘 要
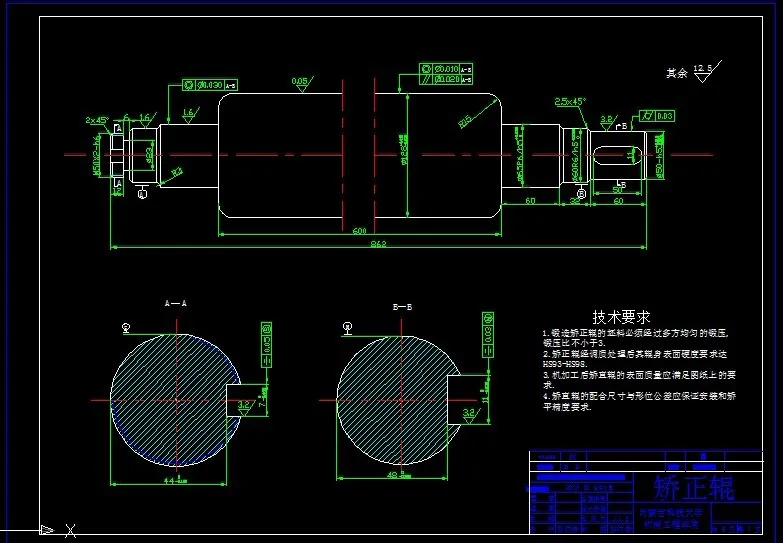
本文是针对9辊的辊式带钢矫正机的设计。其中有两个夹送辊,七个矫正辊。此设备主要用来矫正钢板的纵向弯曲、横向弯曲、边缘浪形和中间瓢曲和镰刀弯曲以及其他类型的复杂变形的机器。该机器利用钢板在轧辊间经过多次反向弯曲,使原始曲率的不均匀度逐渐减小,进而矫平。
本次设计主要是在给定的参数下对带钢矫正机进行了全方面的具体的设计。其中包括对动力源(电动机)、主减速器、高低速联轴器、分轴箱、滑块式万向接轴、液压压下装置和矫正机主体部分的设计。其中包括电机的选取,减速器的选取,分轴箱的设计,液压压下系统设计等。且对主体设计机器的传动形式;机器的组成结构;主要技术参数;各主要零部件的设计校核。进行了较为详细的说明。
关键词:矫正机:辊式:变形:主体部件
目录
摘 要 I
Abstract………………………………………………………………II
第一章 概 述 1
1.1 冷轧钢板、带材的简介及其工艺过程 1
1.1.1 板带材的重要性 1
1.1.2 钢板冷轧工艺过程 1
1.2 矫正机的分类 1
1.2.1 压力矫直机 2
1.2.2 管材、棒料矫正机 2
1.2.3拉伸矫正机 2
1.2.4拉伸弯曲矫正机组 2
1.2.5辊式矫正机 3
1.3辊式矫正机的型式 3
1.3.1平行辊列矫正机 3
1.3.2单倾斜矫正机 4
1.3.3双倾斜辊列矫正机 4
1.3.4改进型单倾斜列矫正机 5
1.3.5小变形矫正方案 5
1.3.6大变形矫正 5
1.3.7矫正机的结构及其工作原理 6
1.3.8设计方案的简介 7
第二章 带钢矫正机基本参数的计算 9
2.1 矫正机基本参数的确定 9
2.1.1 矫正机设计参数 9
2.1.2 辊距和辊径的确定 9
2.1.3 辊身长度的取定 10
2.2 矫正机力能参数确定 11
2.2.1 矫正力的确定 11
2.2.2 辊上的力矩确定 13
2.2.3 功率确定 14
第三章 电动机的选择 15
3.1 转速的确定 15
3.2 型号的选择 15
第四章 选择减速器 17
4.1 减速器型号的确定 17
4.2 公称输入功率校核…………………………………………………………………17
4.3 热功率的校核 18
4.4 减速器尺寸确定……………………………………………………………………18
第五章 联轴器的选用 19
5.1 高速联轴器的选用 19
5.2 低速联轴器的选用 20
第六章 分轴箱的设计 22
6.1 分轴箱的作用和结构选择 22
6.2 分轴箱中齿轮基本参数的确定 22
6.3 齿轮强度校核 24
6.4 轴承的选用 25
第七章 滑块式万向接轴的设计 26
7.1万向接轴材料和结构尺寸的确定 26
7.2万向接轴的校核 27
第八章 矫正机辊子的设计 30
8.1 辊子材料的选择 30
8.2 辊子的结构设计 30
8.3 辊子的强度矫核 31
8.4 键的选择和校核 35
8.5 滚动轴承的选择 36
第九章 矫正机压下装置的设计 38
9.1矫正机压下装置的类型及其结构………………………………………………….38
9.2 压下装置液压原理图的设计 39
9.3 液压缸的设计计算…………………………………………………………………41
9.3.1液压缸的内部结构分析…………………………………………………………..41
9.3.2液压缸的设计……………………………………………………………………..42
结束语………………………………………………………………………………………...44
参考书目……………………………………………………………………………………...45
温馨提示:
1、题目前面的备注【字母数字编号】为本站整理分类的编号,与课题内容无关,请选题时忽视;
2、若题目上备注三维,则表示文件里包含三维源文件,由于三维组成零件数量较多,为保证预览截图的简洁性,本站将三维文件夹进行了打包。三维及CAD预览截图,均为本站电脑打开软件进行截图的,保证能够打开,下载原件超高清,下载后解压即可;
3、本站所有资源如无特殊说明,都需要本地电脑安装Office2007。图纸软件为AutoCAD,PROE,UG,SolidWorks,CATIA等;
4、本站所有图文资料仅供用户学习参考,不作为任何商用或其他用途;
5、本站不保证下载资源的准确性、安全性和完整性, 不包修改,不支持退换,同时也不承担用户因使用这些下载资源对自己和他人造成任何形式的伤害或损失;
6、 下载文件中如有侵权或不适当内容,请与我们联系,我们立即纠正。