

作品包括:
Word版说明书一份,共41页,约18000字
专题小论文一份
实习报告一份
CAD版本图纸,共5张
摘 要
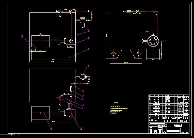
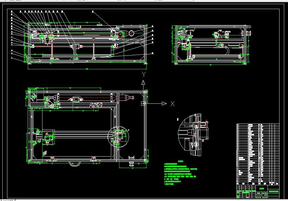
液压泵站是液压系统的动力源,它向系统提供一定压力、流量和清洁度的工作介质,是液压系统的重要组成部分。本液压泵站适用于主机与液压装置可分离的液压机械上,液压泵站主要由以下五个相对独立的单元组合而成,它们是:泵组、油箱组件、控温组件、蓄能器组件及过滤器组件。
本设计中的高性能液压站,其高性能表现在:高压31.5MPa,小流量40L/min,高过滤精度5um,油温控制15—40度,油液压力脉动小,带有故障监测,并联自动容错功能等。本设计中第一章主要介绍了液压的发展历程及趋势;第二章介绍了液压泵站的结构及组成;第三章介绍了泵站各部分的设计及选件;第四章对整个泵站的性能进行了验算校核,并给出了验算补全后整个系统的方法。
关键词:液压站 高性能 过滤精度 故障监测
目 录
绪论 3
第一章 我国液压行业发展概况 4
1.1发展历程 4
1.2 目前状况 5
1.3 液压气动技术发展趋势 6
1.3.1 影响发展的主要因素 6
1.3.2 今后发展走势 7
第二章 液压泵站的介绍 10
第三章 泵站的设计及元件和辅助件的选择 11
3.1 液压泵和电机的选择 11
3.1.1 液压泵的选择 11
3.1.2计算液压泵所需电动机的功率 12
3.1.3联轴器 13
3.1.4传动底座 13
3.2 油箱的设计 14
3.2.1油箱的作用及分类 14
3.2.2油箱容积的确定 15
3.2.3油箱的结构 16
3.3 管路的计算 17
3.3.1管子内径和壁厚的计算方法 17
3.3.2安装油管时的注意事项 18
3.4 阀板的设计 20
3.4.1阀板的设计步骤 20
3.4.2本设计中主要用阀 21
3.5 加热器的选择 24
3.6 冷却器的选择 25
3.7 蓄能器的选择 26
3.7.1蓄能器的用途 26
3.7.2蓄能器的类型和特点 26
3.7.3蓄能器的计算 27
3.7.4检查蓄能器充气压力的方法 29
3.8 过滤器的选择 30
3.9 自过滤系统 33
第四章验算系统的技术性能 35
4.1系统的压力损失计算 36
4.1.1管路的沿程压力损失△Pf 36
4.1.2局部压力损失△Pr 36
4.1.3阀类元件的压力损失△Pv 36
4.2液压冲击计算 37
4.2.1液压冲击的定义 37
4.2.2液压冲击的危害 37
4.2.3冲击波的传播速度 37
4.2.4液压冲击的最大压力升高值的计算 38
4.3液压系统的发热温升的计算 39
参考文献 40
致谢 41
温馨提示:
1、题目前面的备注【字母数字编号】为本站整理分类的编号,与课题内容无关,请选题时忽视;
2、若题目上备注三维,则表示文件里包含三维源文件,由于三维组成零件数量较多,为保证预览截图的简洁性,本站将三维文件夹进行了打包。三维及CAD预览截图,均为本站电脑打开软件进行截图的,保证能够打开,下载原件超高清,下载后解压即可;
3、本站所有资源如无特殊说明,都需要本地电脑安装Office2007。图纸软件为AutoCAD,PROE,UG,SolidWorks,CATIA等;
4、本站所有图文资料仅供用户学习参考,不作为任何商用或其他用途;
5、本站不保证下载资源的准确性、安全性和完整性, 不包修改,不支持退换,同时也不承担用户因使用这些下载资源对自己和他人造成任何形式的伤害或损失;
6、 下载文件中如有侵权或不适当内容,请与我们联系,我们立即纠正。